1901 Qu'appelle Boulevard Unit# 125, Kamloops, British Columbia V2E 0C9

Listed for:
$608,900
4 beds
4 baths
Listed 20 days ago
Row / Townhouse for rent: 1901 Qu'appelle Boulevard Unit# 125, Kamloops, British Columbia V2E 0C9

View all 51 photos

About

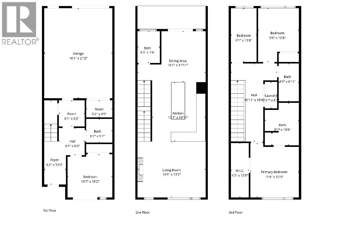
Lovely Juniper Ridge three level townhome with 4 bedrooms, beautiful bright open living space and an oversized single garage. Enter this nearly new townhome and you will find a good sized main entry. This level consists of a bedroom with siliding glass doors to a patio and could be a home office, family room or additional bedroom. There is a storage/mud room space which then leads to the single oversized garage (16’1x21.2) with EV charging. To finish it off there is a 2 piece bathroom. Ascend to the main living space where you will find a great room open floor plan with modern kitchen featuring stone counters, modern appliances including a gas stove, a dining room which leads to a large south facing deck with BBQ hook up and living room with huge picture window and electric fireplace. There is a 2 piece bathroom on this level. The top level includes 3 bedrooms, the primary bedroom has a nice sized ensuite with double sinks and custom walk in closet with built in organizers. There is laundry on the top floor with linen storage and an additional 4 piece bathroom to compliment the 2 additional bedrooms. Bonus 2 outside parking spaces plus street parking 3+ parking total!! This complex itself is located steps to hiking trails, the Juniper Bike Ranch, playground and park, dog park and community market. It is a great area for families, downsize or first timers! There is something here for the whole family. Quick possession possible. (id:27476)

Property Highlights

MLS® Number
10379049
Type
Single Family
Community Name
THE RIDGE AT JUNIPER WEST
Maintenance Fee
279.23
Ownership Type
Strata
Land Size
under 1 acre
Parking Space Total
3

Building

Building Type
Row / Townhouse
Storeys
3.00
Square Footage
1825 sqft
Bathrooms Total
4
Bedrooms Total
4
Amenities
Public Transit, Park, Recreation, Schools, Shopping
Exterior Finish
Stone, Other
Fireplace Present
Yes
Basement Type
Basement Features
Building Heating Type
Forced air, See remarks
Heating Fuel
Building Cooling Type
Central air conditioning

Utilities

Water
Municipal water
Utility Sewer
Municipal sewage system

Room Layout

4pc Bathroom
Second level
Measurements not available
5pc Ensuite bath
Second level
Measurements not available
Laundry room
Second level
2'11'' x 6'3''
Bedroom
Second level
6'1'' x 12'8''
Bedroom
Second level
9'8'' x 12'8''
Primary Bedroom
Second level
11'6'' x 12'9''
2pc Bathroom
Basement
Measurements not available
Mud room
Basement
6'1'' x 6'2''
Bedroom
Basement
10'7'' x 10'2''
Foyer
Basement
5'2'' x 19'9''
Living room
Main level
16'1'' x 13'2''
Dining room
Main level
16'1'' x 11'11''
Kitchen
Main level
12'7'' x 13'11''
2pc Bathroom
Main level
Measurements not available

Location

Learn more about this property
Listing provided by:
Century 21 Assurance Realty Ltd
MLS® number:
10379049
Agent:
Kevin Bamsey
*Indicates required field
Name is required
Email is required
Please enter a valid phone number (e.g., 416-111-1111).

Street Spotlight - For sale