367 Mcauley Place, Kamloops, British Columbia V2C 5R6

Listed for:
$819,900
5 beds
3 baths
Listed 8 days ago
House for rent: 367 Mcauley Place, Kamloops, British Columbia V2C 5R6

View all 76 photos

About

Tucked away on a quiet cul-de-sac in Dallas, this home is all about space, privacy, and unforgettable summers. Set on a huge lot with a beautifully maintained yard, the standout feature is the large outdoor pool — imagine long summer days with the kids, weekend BBQs, and evenings spent unwinding in your own private oasis. Picture gathering around the fire pit under the stars, while the yard offers plenty of space to play, garden, and truly enjoy the outdoors. A charming garden shed adds extra storage and functionality for all your tools and hobbies. Inside, you’ll find a spacious layout with approximately 5 bedrooms and 3 bathrooms, offering flexibility for families of all sizes. The level-entry design makes everyday living easy, and the home is filled with warmth and character throughout, complemented by some thoughtful updates over the years. Enjoy year-round comfort with central air conditioning and the added convenience of central vacuum. The lower level features a large rec room complete with a full media setup — projector, screen, and stereo equipment included — creating the perfect space for movie nights, game days, and entertaining. There’s also an opportunity here to continue updating and make it your own over time, adding even more value in an already incredible setting. If you’ve been waiting for the perfect family home with a dream backyard — this is it. (id:27476)

Property Highlights

MLS® Number
10380241
Type
Single Family
Ownership Type
Freehold
Land Size
0.38 ac|under 1 acre

Building

Building Type
House
Storeys
2.00
Square Footage
2704 sqft
Bathrooms Total
3
Bedrooms Total
5
Fireplace Present
No
Basement Type
Basement Features
Building Heating Type
Forced air, See remarks
Heating Fuel
Building Cooling Type
Central air conditioning

Utilities

Water
Municipal water
Utility Sewer
Municipal sewage system

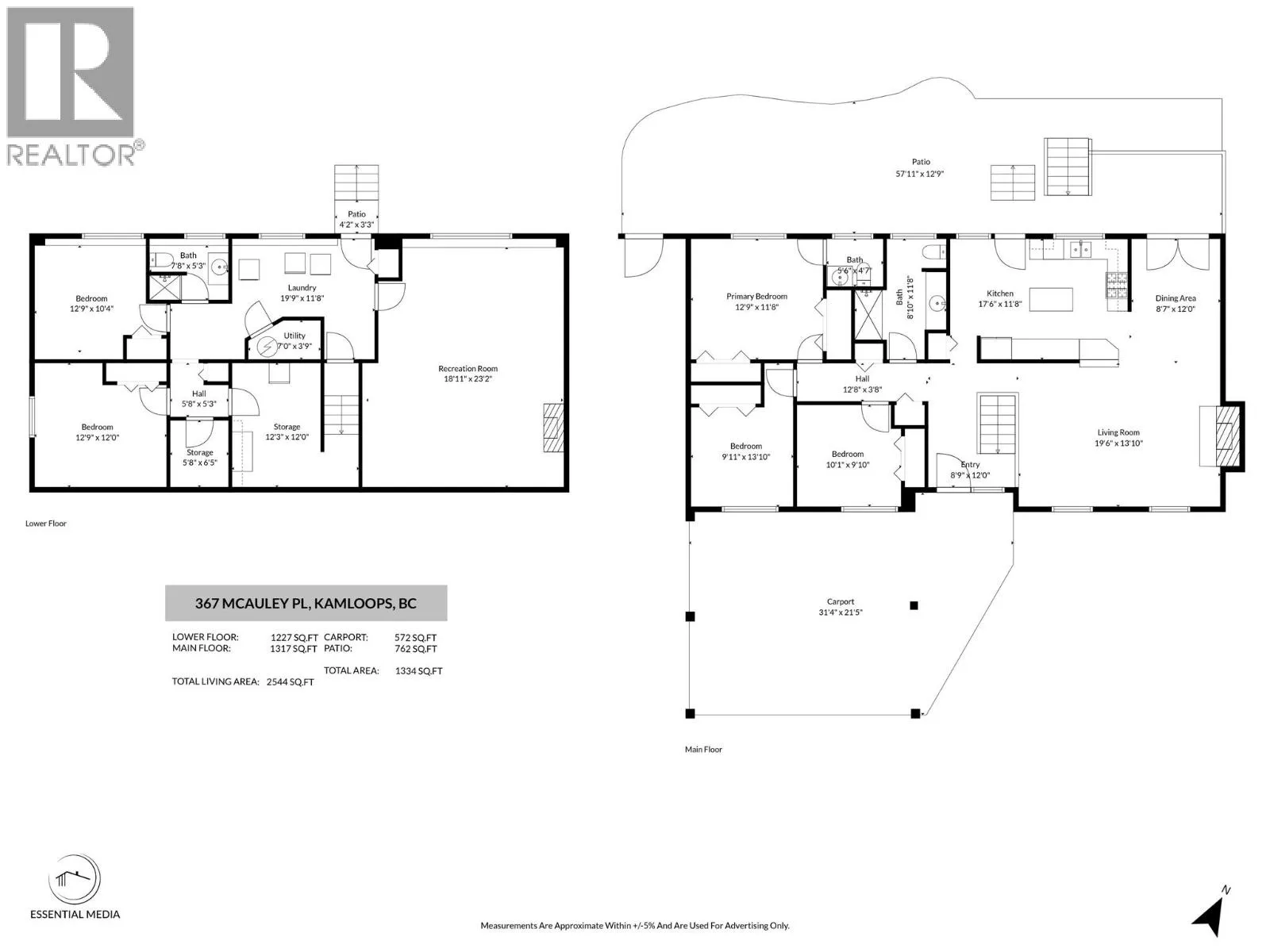
Room Layout

Storage
Basement
9' x 12'
Laundry room
Basement
13'8'' x 8'
Recreation room
Basement
17' x 23'
Bedroom
Basement
11'6'' x 12'
Bedroom
Basement
11'7'' x 12'
3pc Bathroom
Basement
Measurements not available
Bedroom
Main level
9'8'' x 10'5''
Bedroom
Main level
9'8'' x 9'6''
Primary Bedroom
Main level
12' x 13'
Living room
Main level
14' x 20'
Dining room
Main level
12' x 10'8''
Kitchen
Main level
11'10'' x 17'3''
2pc Ensuite bath
Main level
Measurements not available
3pc Bathroom
Main level
Measurements not available

Location

Learn more about this property
Listing provided by:
Royal LePage Westwin Realty
MLS® number:
10380241
Agent:
Natalie Husband
*Indicates required field
Name is required
Email is required
Please enter a valid phone number (e.g., 416-111-1111).