6833 Madrid Way Unit# 348, Kelowna, British Columbia V1Z 3R8

Listed for:
$627,700
2 beds
2 baths
Listed 181 days ago
House for rent: 6833 Madrid Way Unit# 348, Kelowna, British Columbia V1Z 3R8

View all 64 photos

Learn more about this property
Listing provided by:
Chamberlain Property Group
MLS® number:
10347908
Agent:
Mark Lockwood
*Indicates required field
Name is required
Email is required
Please enter a valid phone number (e.g., 416-111-1111).

About

Escape to the Okanagan dream with this stunning, newer, walk-out rancher nestled in the highly sought-after La Casa Lakeside Resort. This exceptional home offers the perfect blend of comfort, convenience, and resort-style living. This home boasts two bedrooms and two bathrooms in total, plus a versatile flex space ready to transform into an additional bedroom, home office, or family media room. Step inside and discover an open-concept kitchen, dining, and living room space, ideal for effortless entertaining and daily living. You will enjoy sweeping views overlooking the resort amenities and a partial lake view, creating a picturesque backdrop for your everyday. The bright and airy layout is further enhanced by the primary bedroom conveniently located on the main floor, offering ease and privacy. Location is everything! Situated right next to the vibrant resort amenities, La Casa's world class amenities include two outdoor swimming pools and three hot tubs, a private beach and marina access, recreational courts for tennis, pickleball, beach volleyball, mini-golf and playgrounds, hiking and ATV trails, dog beaches, and more. This gorgeous cottage offers an unparalleled opportunity to embrace the quintessential Okanagan lifestyle. Don't miss your chance to own a piece of paradise in this exceptional lakeside community! (id:27476)

Property Highlights

MLS® Number
10347908
Type
Single Family
Community Name
La Casa Lakeside Resort
Maintenance Fee
429.00
Ownership Type
Strata
Land Size
0.06 ac|under 1 acre
Parking Space Total
1

Building

Building Type
House
Storeys
2.00
Square Footage
1070 sqft
Bathrooms Total
2
Bedrooms Total
2
Fireplace Present
No
Basement Type
Basement Features
Building Heating Type
Forced air
Heating Fuel
Building Cooling Type
Central air conditioning

Utilities

Water
Community Water User's Utility
Utility Sewer
Municipal sewage system, Septic tank

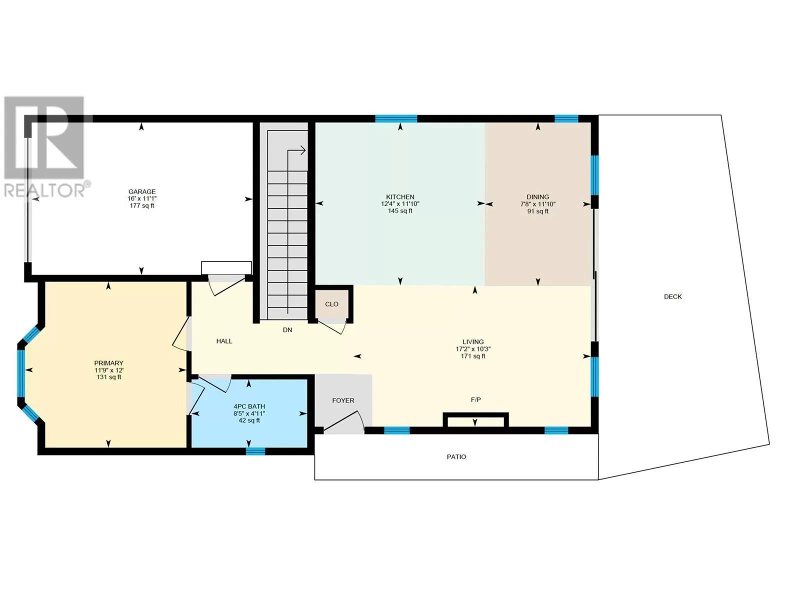
Room Layout

Den
Lower level
12' x 9'
Office
Lower level
8' x 9'
Bedroom
Lower level
10' x 11'
Full bathroom
Lower level
9' x 5'
Full bathroom
Main level
8' x 5'
Primary Bedroom
Main level
12' x 12'
Living room
Main level
17' x 10'
Kitchen
Main level
12' x 12'

Location