6857 Madrid Way Unit# 336, Kelowna, British Columbia V1Z 3R8

Listed for:
$699,500
3 beds
3 baths
Listed 60 days ago
House for rent: 6857 Madrid Way Unit# 336, Kelowna, British Columbia V1Z 3R8

View all 73 photos

Learn more about this property
Listing provided by:
Coldwell Banker Executives Realty
MLS® number:
10358842
Agent:
Maurice Greenwood
*Indicates required field
Name is required
Email is required
Please enter a valid phone number (e.g., 416-111-1111).

About

BRAND NEW Beautiful La Casa Cottage. . . 3 bed, 3 bath with LARGE COVERED DECK plus basement patio (roughed in for hot tub). Overlooking tennis courts & pool with Okanagan Lake beyond. . . Lots more Space inside than you would guess from the roadside. . . La Casa has a very strong VACATION RENTAL market & is EXEMPT from AIR BnB restrictions. HIGH CEILINGS throughout. Beautiful high quality Kitchen. . . Stone countertops throughout. . . Access to walk through from guest parking area. Amazing Primary En-suite with double vanity & large shower. . . Second en-suite off large second bedroom. Large walk in closets in both basement bedrooms. . . Main floor has Den/3rd Bedroom plus half bath. Access to the Bear Creek ATV Trail System. NO SPECULATION TAX applicable at La Casa.. . .La Casa Resort Amenities: Beaches, sundecks, Marina with 100 slips & boat launch, 2 Swimming Pools & 3 Hot tubs, 3 Aqua Parks, Mini golf course, Playground, 2 Tennis courts & Pickleball Courts, Volleyball, Fire Pits, Dog Beach, Upper View point Park and Beach area Fully Gated & Private Security, Owners Lounge, Owners Fitness/Gym Facility. Grocery/liquor store on site plus Restaurant. Boat taxi also picks up nearby. (id:27476)

Property Highlights

MLS® Number
10358842
Type
Single Family
Community Name
La Casa Resort
Maintenance Fee
429.42
Ownership Type
Strata
Land Size
0.05 ac|under 1 acre
Parking Space Total
4

Building

Building Type
House
Storeys
2.00
Square Footage
1038 sqft
Bathrooms Total
3
Bedrooms Total
3
Amenities
Cable TV, Clubhouse Airport, Park, Recreation
Exterior Finish
Other
Fireplace Present
Yes
Basement Type
Basement Features
Building Heating Type
Forced air, Heat Pump
Heating Fuel
Electric
Building Cooling Type
Central air conditioning, Heat Pump

Utilities

Water
Private Utility
Utility Sewer
Municipal sewage system

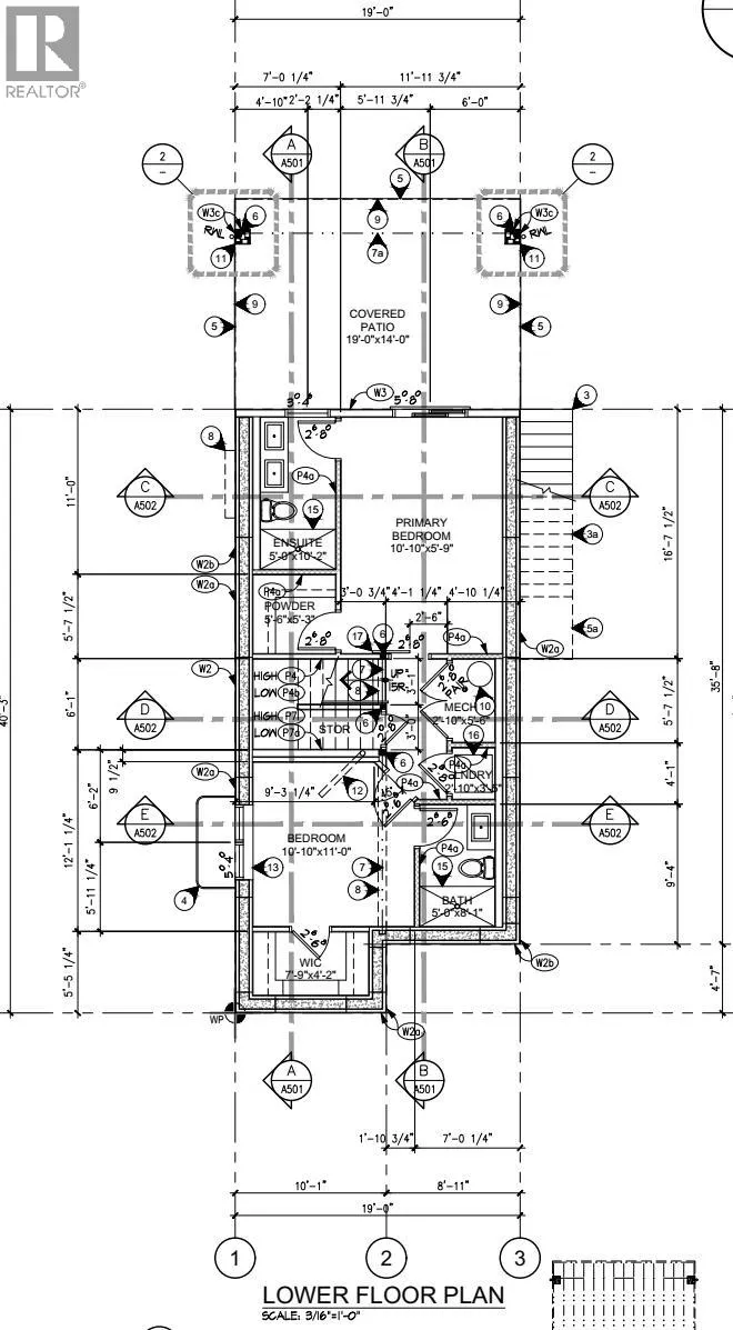
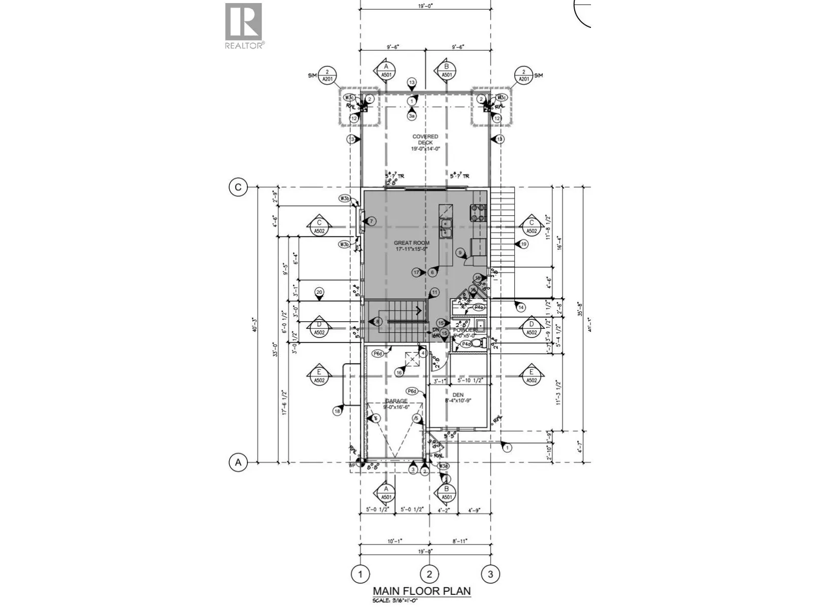
Room Layout

Bedroom
Basement
10'10'' x 11'
3pc Ensuite bath
Basement
10'2'' x 5'
4pc Bathroom
Basement
8'1'' x 5'
Primary Bedroom
Basement
10'10'' x 15'9''
Dining room
Main level
9' x 6'
Bedroom
Main level
10'9'' x 8'4''
2pc Bathroom
Main level
5' x 5'
Living room
Main level
12' x 11'6''
Kitchen
Main level
11' x 9'

Location