3409 Lakeshore Road Unit# Ph S607, Kelowna, British Columbia V1W 0G6

Listed for:
$1,299,950
3 beds
3 baths
Listed 12 days ago
Apartment for rent: 3409 Lakeshore Road Unit# Ph S607, Kelowna, British Columbia V1W 0G6

View all 71 photos

Learn more about this property
Listing provided by:
Century 21 Assurance Realty Ltd
MLS® number:
10371331
Agent:
Lisa Moldenhauer
*Indicates required field
Name is required
Email is required
Please enter a valid phone number (e.g., 416-111-1111).

About

NEW LUXURY PENTHOUSE at CABAN | $40,000 IN UPGRADES. Experience the best of Kelowna’s beachfront lifestyle in the Pandosy Village, in one of the city’s most sought-after developments. This stunning 3 bed, 2.5 bath Penthouse features numerous upgrades plus impressive 1,400 sf private rooftop patio w/ HOT TUB, OUTDOOR KITCHEN and LAKE VIEWS - ideal for entertaining or unwinding in total privacy. Inside, enjoy the renowned ‘Cressey Kitchen’ with integrated Italian cabinetry, European hardware, soft-close drawers, porcelain slab backsplash, Jennair appliances, gas cooktop, wall oven, upgraded wine fridge, and smart storage solutions. Oversized windows and soaring ceilings flood the home with natural light, creating seamless indoor-outdoor living. The primary suite offers custom built-ins and a spa-inspired ensuite w/ double vanity & fully tiled walk-in shower. A generous second bedroom w/ its own ensuite - perfect for guests - while the oversized flex room provides versatility as a third bedroom (closet/no window), office, or media room. Additional features incl keyless entry, digital concierge, two secured parking stalls (one EV-ready) + a storage locker. Residents enjoy resort-style amenities: pool, hot tub, fitness centre, Himalayan salt sauna, yoga studio, and private cabanas. Located across from Gyro Beach in the heart of the Pandosy corridor, w/ exceptional walkability to cafés, dining, boutiques, and waterfront recreation. Luxury beachfront living at its finest. Shows AAA+ (id:27476)

Property Highlights

MLS® Number
10371331
Type
Single Family
Community Name
CABAN
Maintenance Fee
762.10
Ownership Type
Strata
Land Size
under 1 acre
Parking Space Total
2

Building

Building Type
Apartment
Storeys
1.00
Square Footage
1401 sqft
Bathrooms Total
3
Bedrooms Total
3
Amenities
Clubhouse, Recreation Centre, Sauna, Whirlpool, Storage - Locker
Exterior Finish
Other
Fireplace Present
No
Basement Type
Basement Features
Building Heating Type
Forced air
Heating Fuel
Building Cooling Type
Central air conditioning

Utilities

Water
Municipal water
Utility Sewer
Municipal sewage system

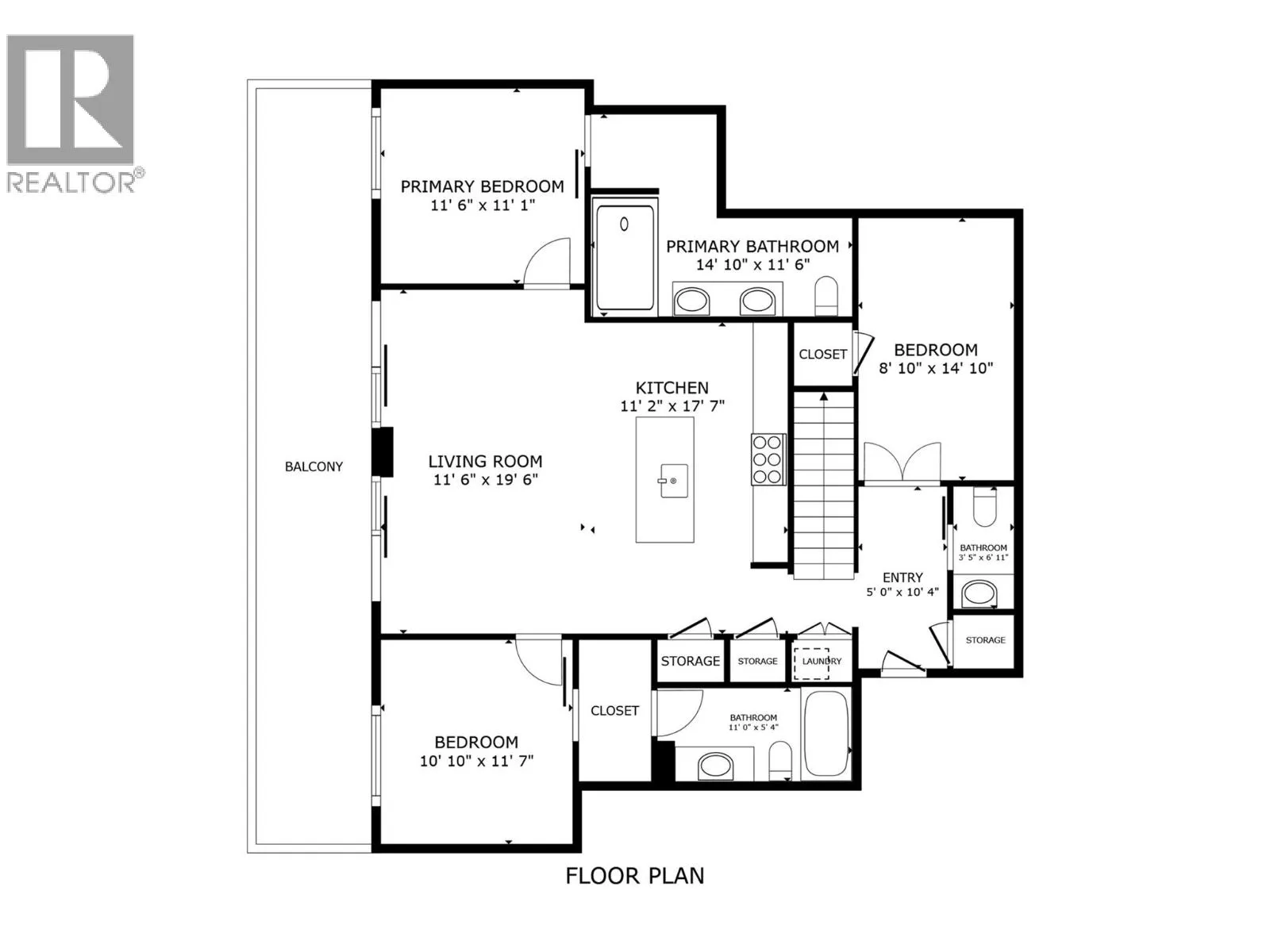
Room Layout

Living room
Main level
11'6'' x 19'6''
Other
Main level
5'0'' x 10'4''
2pc Bathroom
Main level
3'5'' x 6'11''
Bedroom
Main level
8'10'' x 14'10''
4pc Ensuite bath
Main level
11'0'' x 5'4''
Bedroom
Main level
10'10'' x 11'7''
4pc Ensuite bath
Main level
14'10'' x 11'6''
Primary Bedroom
Main level
11'6'' x 11'1''
Kitchen
Main level
11'2'' x 17'7''

Location

Street Spotlight - For sale