9020 Jim Bailey Road Unit# 148, Kelowna, British Columbia V4V 1E5

Listed for:
$315,000
2 beds
2 baths
Listed 27 days ago
Manufactured Home for rent: 9020 Jim Bailey Road Unit# 148, Kelowna, British Columbia V4V 1E5

View all 45 photos

About

Immaculate 2-Bedroom Home with Rail Trail Access Located at the end of a quiet no-thru road, this beautifully maintained 2-bedroom, 2-bathroom home offers the perfect mix of privacy and convenience. Enjoy direct access to the scenic rail trail, perfect for walking, biking, or simply taking in the natural surroundings. Inside, you’ll find a modern kitchen, updated bathrooms, and a bright, spacious living area. The private yard is ideal for relaxing, gardening, or entertaining. Some interior photos are virtually staged to show the home's potential. This community is extremely well cared for by park management (id:27476)

Property Highlights

MLS® Number
10378003
Type
Single Family
Maintenance Fee
804.00
Ownership Type
Leasehold/Leased Land
Land Size
under 1 acre
Parking Space Total
2

Building

Building Type
Manufactured Home
Storeys
1.00
Square Footage
1033 sqft
Bathrooms Total
2
Bedrooms Total
2
Exterior Finish
Vinyl siding
Fireplace Present
No
Basement Type
Basement Features
Building Heating Type
Forced air
Heating Fuel
Electric
Building Cooling Type
Central air conditioning

Utilities

Water
Well
Utility Sewer
Septic tank

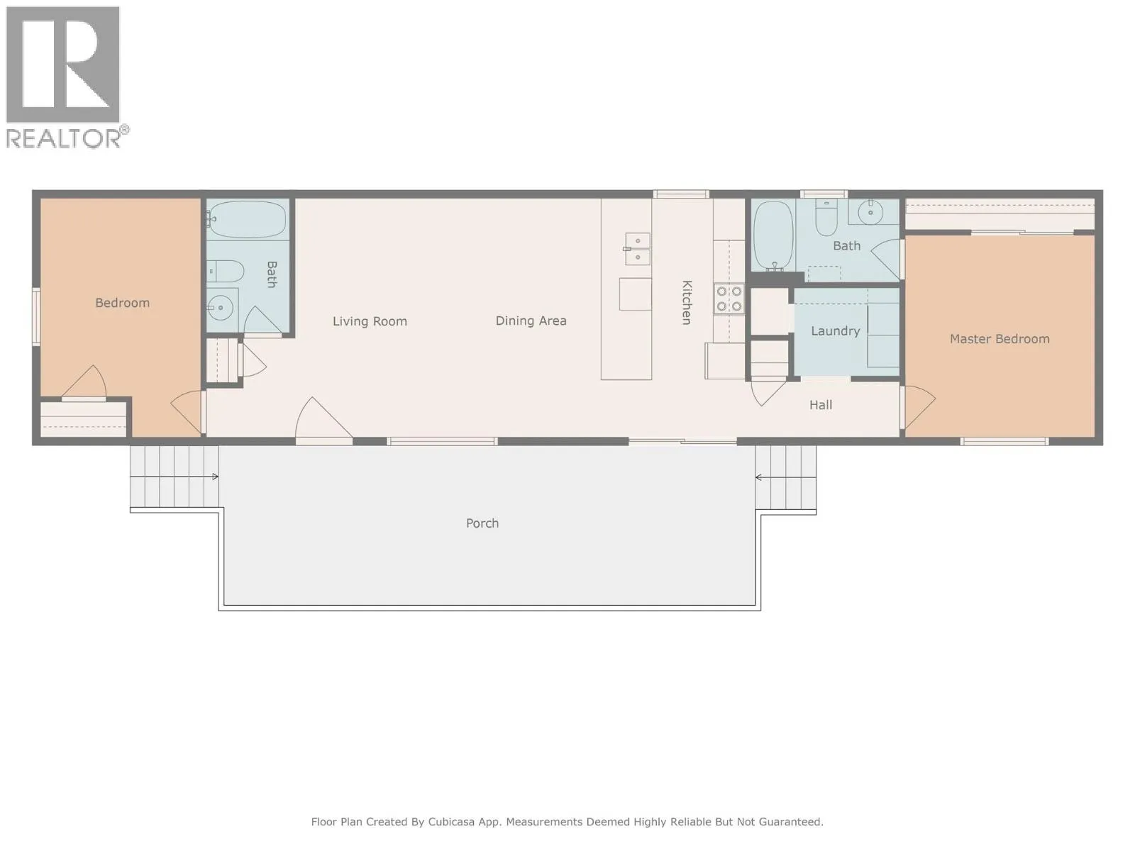
Room Layout

Laundry room
Main level
8'11'' x 5'4''
Full bathroom
Main level
4'11'' x 8'5''
Bedroom
Main level
9'10'' x 14'8''
4pc Ensuite bath
Main level
8'11'' x 5'4''
Primary Bedroom
Main level
11'4'' x 12'2''
Kitchen
Main level
9'1'' x 14'8''
Living room
Main level
19'2'' x 14'8''

Location

Learn more about this property
Listing provided by:
eXp Realty (Kelowna)
MLS® number:
10378003
Agent:
Blake Roberts
*Indicates required field
Name is required
Email is required
Please enter a valid phone number (e.g., 416-111-1111).

Street Spotlight - For sale