4842 Hamilton Road, Lac La Hache, British Columbia V0K 1T1

Listed for:
$789,000
0 beds
0 baths
Listed 77 days ago
4842 Hamilton Road, Lac La Hache, British Columbia V0K 1T1

View all 35 photos

Learn more about this property
Listing provided by:
RE/MAX Nyda Realty (Agassiz)
MLS® number:
C8069760
Agent:
Freddy Marks
*Indicates required field
Name is required
Email is required
Please enter a valid phone number (e.g., 416-111-1111).

About

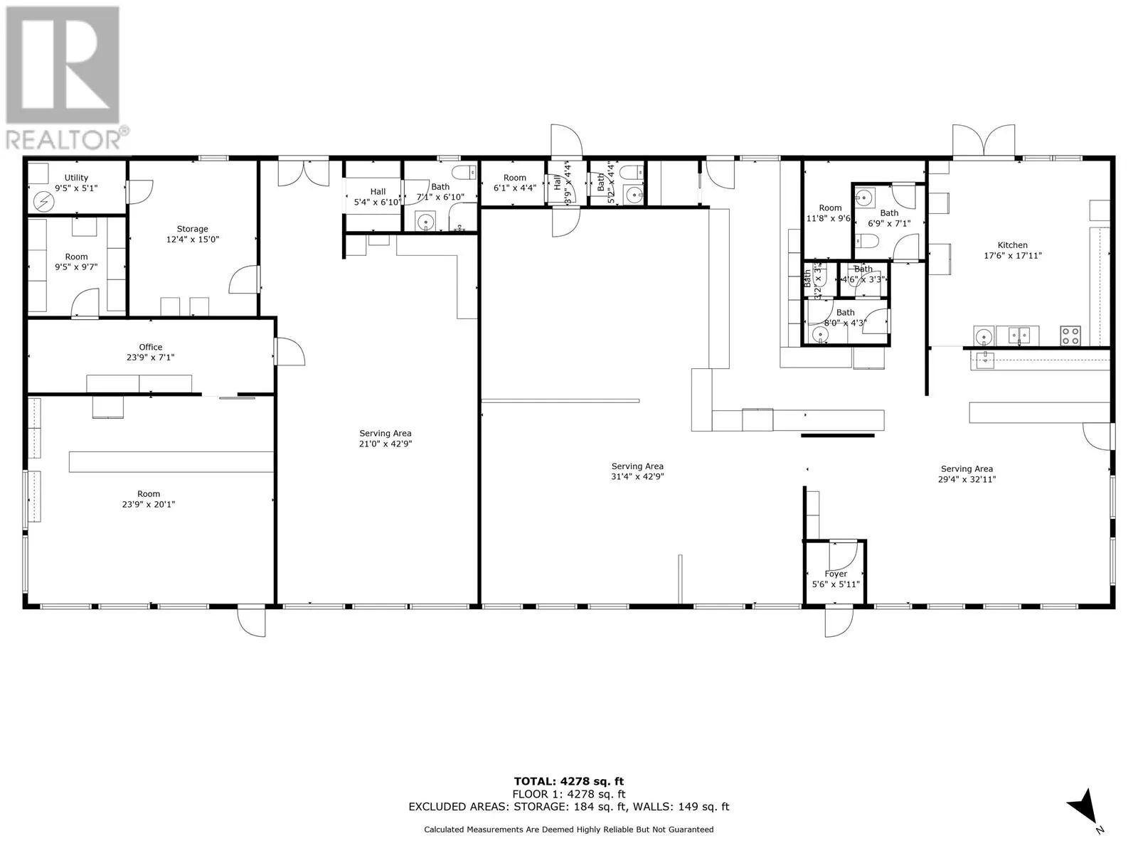
Commercial Opportunity in the Heart of the Cariboo! Here’s your chance to invest in a fully serviced commercial property located just off Highway 97 in the picturesque lakeside community of Lac La Hache—a vibrant hub along BC’s historic Gold Rush Trail. This attractive commercial strip mall is brimming with potential, whether you're an investor looking for stable returns or an entrepreneurial couple seeking a work-live lifestyle. Property Highlights • 4,278 square feet of commercial space • Full community services: water, sewer, and natural gas • A long-term cannabis retail tenant, managed and leased by the Williams Lake Indian Band • A licensed pub and bar that draws both locals and travellers • A pizza and coffee shop successfully operated by the Seller for over 25 years • A 1-bedroom apartment, perfect for a manager or rental income • Excellent parking and highway exposure. Whether you’re interested in leasing out all the units for steady cash flow, or running a family business here you have it all! (id:27476)

Property Highlights

MLS® Number
C8069760
Type
Business
Land Size
0.61 ac

Building

Square Footage
4611 sqft
Fireplace Present
No
Basement Type
Basement Features
Building Heating Type
Heating Fuel
Building Cooling Type

Location