5169 57 Street, Ladner, British Columbia V4K 3G2

Listed for:
$1,698,000
4 beds
4 baths
Listed 31 days ago
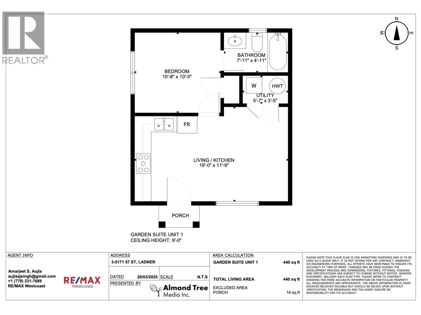
Duplex for rent: 5169 57 Street, Ladner, British Columbia V4K 3G2

View all 19 photos

Learn more about this property
Listing provided by:
RE/MAX Westcoast
MLS® number:
R3048489
Agent:
Amarjeet Aujla
*Indicates required field
Name is required
Email is required
Please enter a valid phone number (e.g., 416-111-1111).

About

NO STRATA FEES!! BRAND NEW 2 level Half-Duplex WITH 1 BED GARDEN SUITE! This stunning home combines modern design with ultimate functionality. The open-concept main floor features a bright living area, a premium kitchen with Stainless Steel appliances, and a spacious dining area. Upstairs, enjoy a serene master suite with a walk-in closet and en-suite, plus two additional bedrooms and a full bathroom, enjoy a very private covered Sun Deck connected to the Master Bedroom The Garden Suite suite with in-suite laundry offers rental potential or added flexibility. Separate utilities. With in-floor radiant heating, air conditioning, an EV-ready garage, and a prime location near Hawthorne Elementary,15 minutes to BC Ferries 20 Minutes to Richmond Ctr and YVR, this home has it all. (id:27476)

Property Highlights

MLS® Number
R3048489
Type
Single Family
Maintenance Fee
0.00
Ownership Type
Strata
Land Size
3456 sqft
Parking Space Total
3

Building

Building Type
Duplex
Square Footage
1999 sqft
Bathrooms Total
4
Bedrooms Total
4
Amenities
Laundry - In Suite Golf Course, Shopping
Fireplace Present
No
Basement Type
Unknown (Finished)
Basement Features
Unknown
Building Heating Type
Baseboard heaters, Radiant heat
Heating Fuel
Natural gas
Building Cooling Type
Air Conditioned

Location