6 2688 Mountain Highway, North Vancouver, British Columbia V7J 2N5

Listed for:
$1,348,000
3 beds
3 baths
Listed 51 days ago
Row / Townhouse for rent: 6 2688 Mountain Highway, North Vancouver, British Columbia V7J 2N5

View all 16 photos

Learn more about this property
Listing provided by:
RE/MAX Masters Realty
MLS® number:
R3068436
Agent:
Dez Tsourpi
*Indicates required field
Name is required
Email is required
Please enter a valid phone number (e.g., 416-111-1111).

About

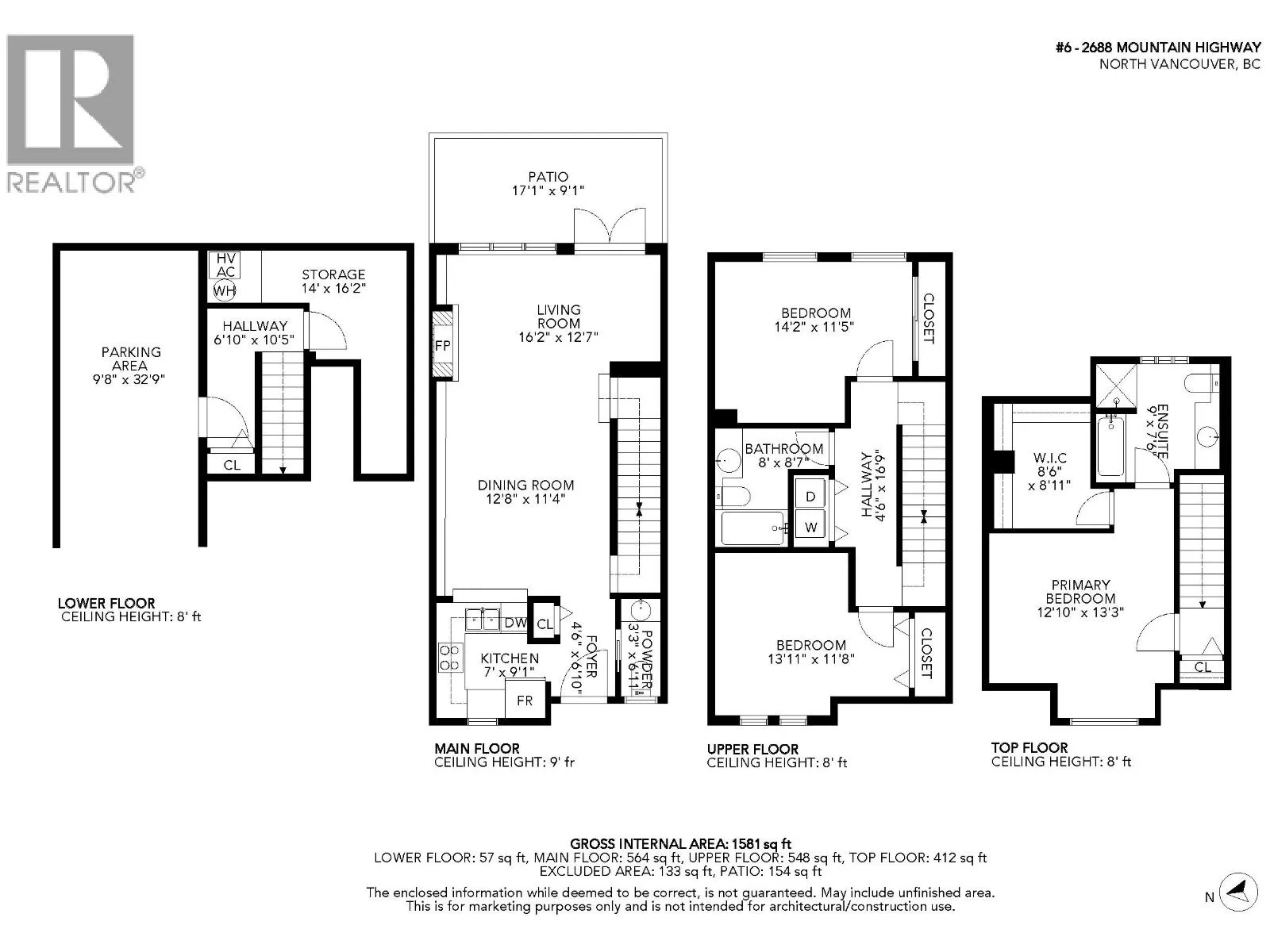
Award winning Craftsman Estates built by high quality Brody Builders! Bright open plan with 9' ceilings and 3 bedrooms up with the primary bedroom having its own private retreat, walk-in closet and full spa-like ensuite. Main level has room for full-size furniture and many built-ins for storage plus a gas fireplace to keep things cozy along with access to your own private patio! Perfect layout for families and empty nesters alike! Direct access to 2 parking stalls from bottom floor which also has a mudroom and tons of storage!! Located in the quiet back row of the complex with beautiful light from south exposure Walking distance to Lynn Valley Mall. Transit a block away. (id:27476)

Property Highlights

MLS® Number
R3068436
Type
Single Family
Maintenance Fee
516.28
Ownership Type
Strata
Parking Space Total
2

Building

Building Type
Row / Townhouse
Square Footage
1817 sqft
Bathrooms Total
3
Bedrooms Total
3
Amenities
Laundry - In Suite Recreation, Shopping, Ski hill
Fireplace Present
No
Basement Type
Unknown (Unknown)
Basement Features
Separate entrance
Building Heating Type
Baseboard heaters, Forced air
Heating Fuel
Natural gas
Building Cooling Type

Location

Street Spotlight - For sale