1625 Lions Gate Lane, North Vancouver, British Columbia V7P 0E2

Listed for:
$6,700,000
0 beds
0 baths
Listed 38 days ago
1625 Lions Gate Lane, North Vancouver, British Columbia V7P 0E2

View all 40 photos

Learn more about this property
Listing provided by:
Royal LePage Sussex
MLS® number:
C8074220
Agent:
Amir Ghaffari
*Indicates required field
Name is required
Email is required
Please enter a valid phone number (e.g., 416-111-1111).

About

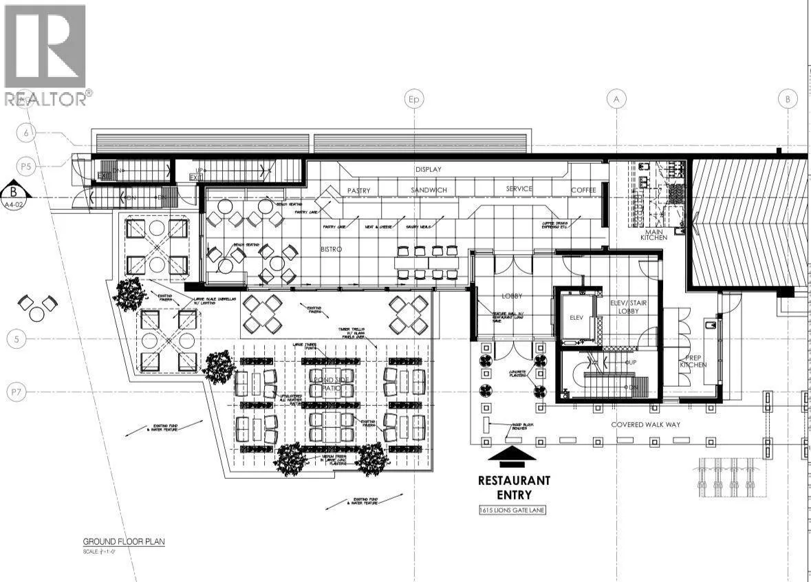
8800 sqft Retail area in one building; 2 story and basement for different business such as ; restaurant/ cafe,Medical clinic ,bank and other retails. brand new building located right on Marine Drive with maximum exposure from both Capilano Rd and Marine dr .opportunity to Lease or buy highly visible CRU at Park West, in the heart of Lions Gate Village to serve about 1800 new units for rent and residents around Capilano Village and more developments coming up .Individual building Not attached to other units and open roof top .Features included; individual disposal , water features , with an exclusive elevator and multiple patios. access to 80 commercial sub-surface visitor parking spaces. which makes this unit the most attractive retail spot. It is just minutes from downtown Vancouver, Lions Gate bridge as well as access from highway to Capilano Rd. Electrical: 650 Amp/3 Phase, 1,000 MBH Gas (395 KW) capped off in unit/CEILING HEIGHTS 14'-16' from.can operate two different food business in each floor. (id:27476)

Property Highlights

MLS® Number
C8074220
Type
Retail
Maintenance Fee
4150.00

Building

Square Footage
8800 sqft
Amenities
Balconies
Fireplace Present
No
Basement Type
Basement Features
Building Heating Type
Heating Fuel
Building Cooling Type

Location