5125 Indian River Drive, North Vancouver, British Columbia V7G 2T6

Listed for:
$6,788,888
5 beds
3 baths
Listed 131 days ago
House for rent: 5125 Indian River Drive, North Vancouver, British Columbia V7G 2T6

View all 40 photos

About

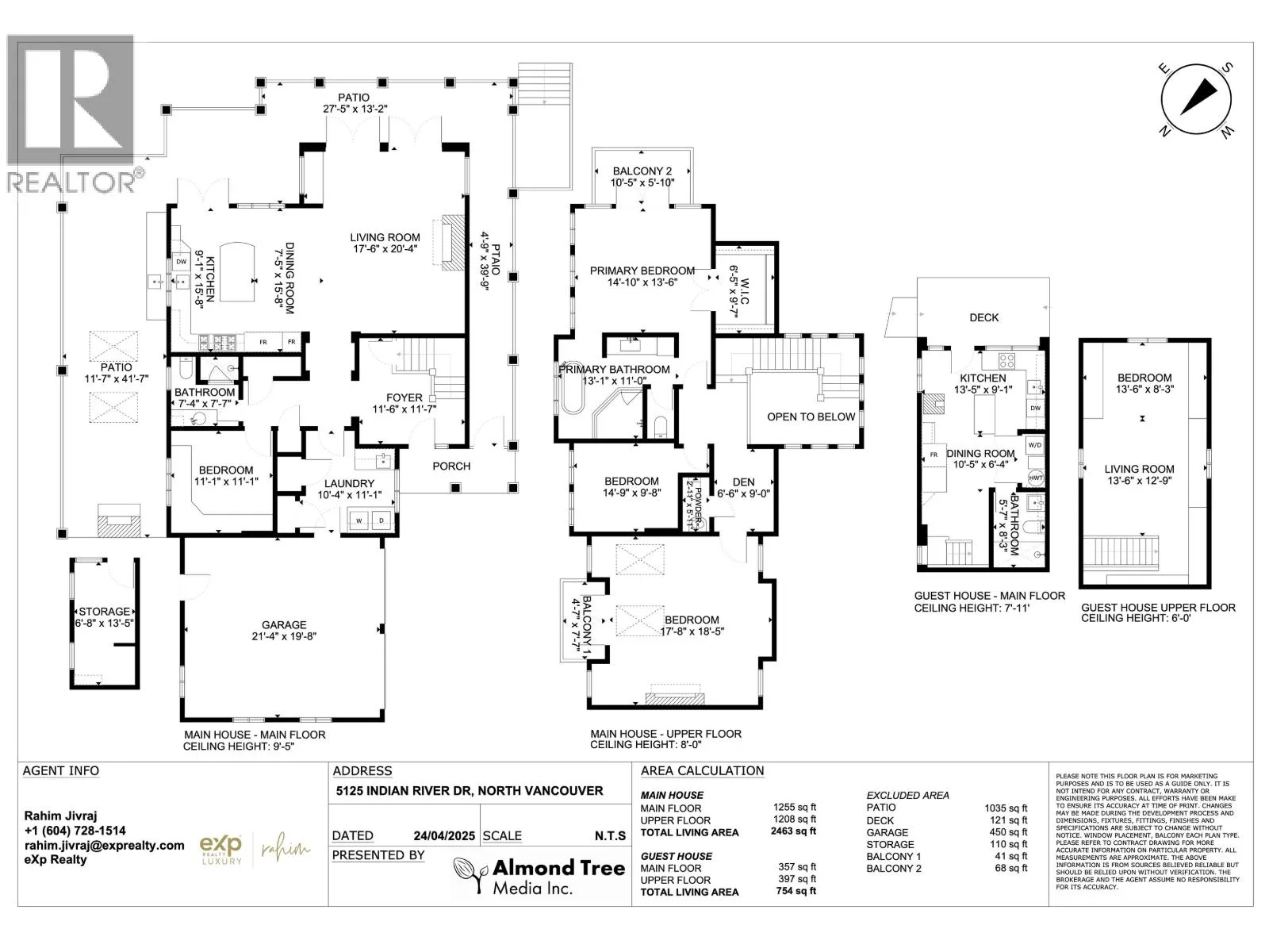
An extraordinary waterfront offering in the exclusive Woodlands/Deep Cove enclave of North Vancouver. This custom-built architectural home delivers rare deep-water access, complete privacy, and timeless West Coast craftsmanship. The main residence features 5 bedrooms and 3 baths, complemented by a fully self-contained 1-bedroom, 1-bath legal guest cottage-ideal for guests, multi-generational living, or passive income. A private 30-ft deep-water dock accommodates yachts and offers potential seaplane access, an exceptional North Shore rarity. Enjoy sweeping ocean views, expansive Trex decks, solid walnut flooring, and rich timber accents throughout. Thoughtfully designed with Euroline tilt-and-turn windows, a backup generator, and a 4-zone integrated sound system for effortless living. Arrive via a scenic, forested drive that feels worlds away, yet only minutes to amenities and approximately 30 minutes to downtown Vancouver. A generational waterfront estate rarely offered, privately shown. (id:27476)

Property Highlights

MLS® Number
R3076609
Type
Single Family
Ownership Type
Freehold
Land Size
23466 sqft
Parking Space Total
4

Building

Building Type
House
Square Footage
2463 sqft
Bathrooms Total
3
Bedrooms Total
5
Amenities
Guest Suite, Laundry - In Suite
Fireplace Present
Yes
Basement Type
Basement Features
Building Heating Type
Heat Pump
Heating Fuel
Electric, Propane
Building Cooling Type
Air Conditioned

Location

Learn more about this property
Listing provided by:
eXp Realty
MLS® number:
R3076609
Agent:
Rahim Jivraj
*Indicates required field
Name is required
Email is required
Please enter a valid phone number (e.g., 416-111-1111).

Street Spotlight - For sale