Lot 2 3091 Royal Avenue, North Vancouver, British Columbia V7K 1Y6

Listed for:
$1,679,000
0 beds
0 baths
Listed 28 days ago
Lot 2 3091 Royal Avenue, North Vancouver, British Columbia V7K 1Y6

View all 16 photos

About

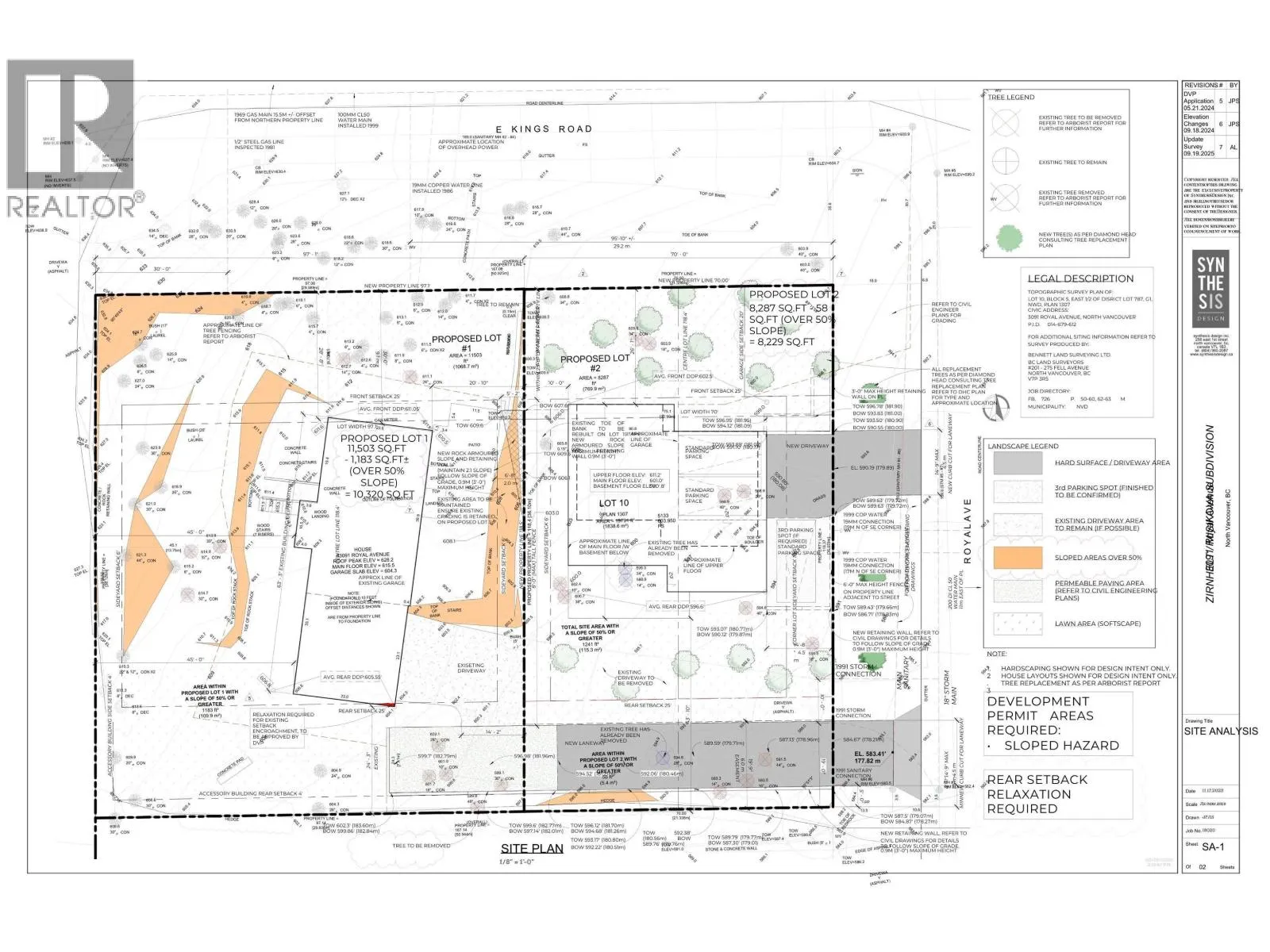
INVESTOR ALERT - CONDITIONALLY SUBDIVIDED. Rare opportunity to secure a prime corner lot nearing final subdivision approval, offering excellent street appeal & a bright building site. Approx. 8,287 square ft with 118 ft frontage and 70 ft depth, providing flexible design options for builders or custom home buyers. Arborist report complete, with selective tree removal creating a clean, ready-to-build slate so you can move quickly to construction. Condition letter with final items received and proposed build plans by SYNTHESIS DESIGN. Located between Lynn Valley and Upper Lonsdale, with easy access to downtown Vancouver, parks, trails, and shopping and located in the sought-after Boundary Elementary & Argyle Secondary catchments. Our team brings extensive custom-build experience and can connect buyers with trusted industry professionals. (id:27476)

Property Highlights

MLS® Number
R3088904
Type
Vacant Land
Ownership Type
Freehold
Land Size
8287 sqft

Building

Fireplace Present
No
Basement Type
Basement Features
Building Heating Type
Heating Fuel
Building Cooling Type

Location

Learn more about this property
Listing provided by:
Stilhavn Real Estate Services
MLS® number:
R3088904
Agent:
David Matiru
*Indicates required field
Name is required
Email is required
Please enter a valid phone number (e.g., 416-111-1111).