9400 115 Street Unit# 48, Osoyoos, British Columbia V0H 1V5

Listed for:
$499,000
2 beds
2 baths
Listed 78 days ago
Manufactured Home for rent: 9400 115 Street Unit# 48, Osoyoos, British Columbia V0H 1V5

View all 54 photos

About

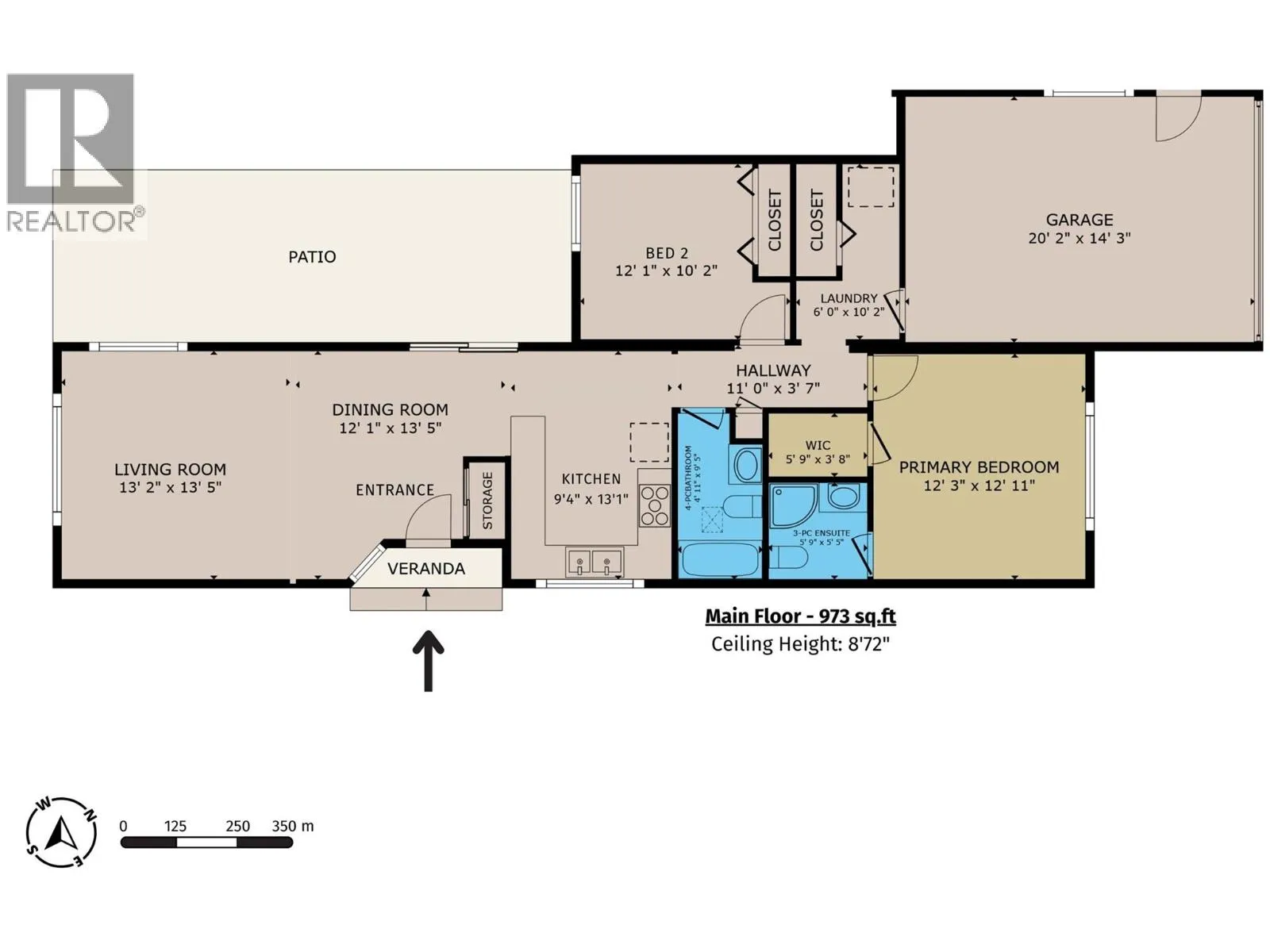
Walk in and be taken away by the beautiful views and vistas from this sweet and charming 2 bedroom in the gated Casita Del Sol adult community. This thoughtful layout captures the views from the large windows in the living room, which is open to the dining room and nice sized kitchen. Newer appliances, freshly painted and newer flooring make this a move in ready home, with generous sized rooms, 2 bathrooms, and a dry crawl space for extra storage. Complete with oversized single garage, and additional visitor parking nearby what more could you want! The outdoor space features a lovely English Style Garden with underground irrigation and easy to keep up or add your personal touches. This detached home is an affordable, low maintenance rancher ready to become your Osoyoos Oasis. *Measurements are taken from iGuide Floor Plans. Total square footage is taken from exterior measurements. All dimensions are approximate and subject to Buyer to verify independently if important.* (id:27476)

Property Highlights

MLS® Number
10372666
Type
Single Family
Community Name
Casitas Del Sol
Maintenance Fee
0.00
Ownership Type
Bare Land Condo/Strata
Land Size
0.08 ac|under 1 acre
Parking Space Total
1

Building

Building Type
Manufactured Home
Storeys
1.00
Square Footage
1036 sqft
Bathrooms Total
2
Bedrooms Total
2
Amenities
Clubhouse
Exterior Finish
Stucco, Vinyl siding
Fireplace Present
No
Basement Type
Crawl space
Basement Features
Building Heating Type
Forced air, See remarks
Heating Fuel
Building Cooling Type
Central air conditioning

Utilities

Water
Municipal water
Utility Sewer
Municipal sewage system

Room Layout

Foyer
Main level
4'10'' x 4'7''
3pc Ensuite bath
Main level
Measurements not available
4pc Bathroom
Main level
Measurements not available
Laundry room
Main level
10'0'' x 5'7''
Other
Main level
14'3'' x 20'0''
Primary Bedroom
Main level
13'0'' x 12'0''
Bedroom
Main level
10'0'' x 12'0''
Kitchen
Main level
9'11'' x 9'2''
Dining room
Main level
12'1'' x 13'5''
Living room
Main level
13'0'' x 18'8''

Location

Learn more about this property
Listing provided by:
RE/MAX Realty Solutions
MLS® number:
10372666
Agent:
Michelle Fritz
*Indicates required field
Name is required
Email is required
Please enter a valid phone number (e.g., 416-111-1111).