Pilot Mountain Road, Prince George, British Columbia V2K 5J3

Listed for:
$699,000
0 beds
0 baths
Listed 72 days ago
Pilot Mountain Road, Prince George, British Columbia V2K 5J3

View all 21 photos

Learn more about this property
Listing provided by:
Royal LePage Aspire Realty
MLS® number:
C8070208
Agent:
Rob Richard
*Indicates required field
Name is required
Email is required
Please enter a valid phone number (e.g., 416-111-1111).

About

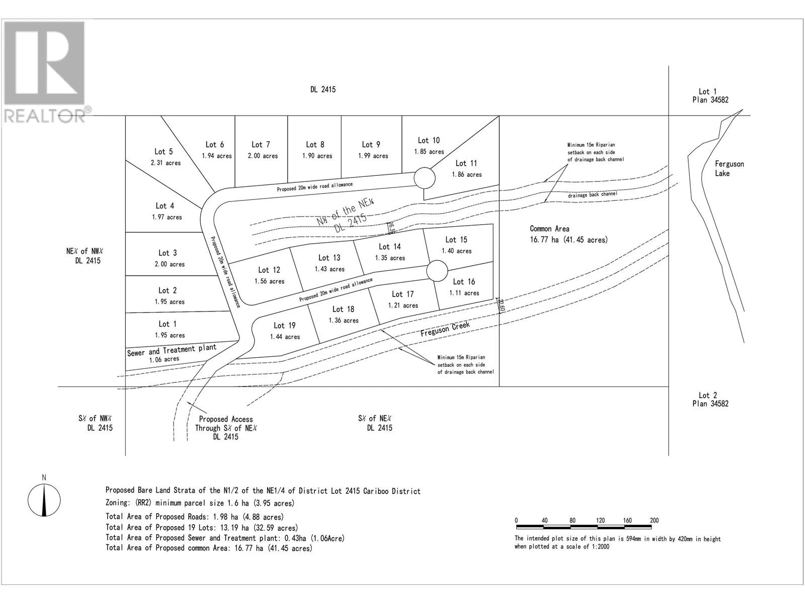
80 Acres, just off Pilot Mountain Road just steps away from and bordering the N/W corner of Ferguson Lake. This parcel is only a few minutes from Prince George and has versatile development opportunities. The parcel has RR2 zoning and is not in the ALR. Also available on Residential - see MLS# R3018236. (id:27476)

Property Highlights

MLS® Number
C8070208
Type
Vacant Land
Land Size
80 ac

Building

Fireplace Present
No
Basement Type
Basement Features
Building Heating Type
Heating Fuel
Building Cooling Type

Location