1655 Wyatt's Way, Qualicum Beach, British Columbia V9K 2S3

Listed for:
$1,277,000
6 beds
4 baths
Listed 16 days ago
House for rent: 1655 Wyatt's Way, Qualicum Beach, British Columbia V9K 2S3

View all 94 photos

About

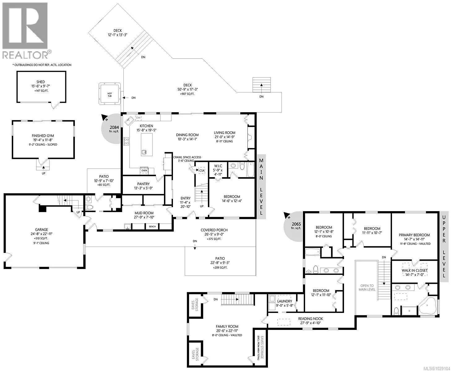
From the moment you turn onto Wyatt's Way down your driveway, you will love this home with a manicured yard and a family playground in the backyard. Its vast deck leads to your private, fresh water flowing, swimming pond (35mx25m and BC Wildlife permitted for trout). A 210 sq ft stand alone gym overlooks the pond, but could be used as a summer house, art studio etc. Inside are 5 bedrooms,4 bathrooms, a gourmet kitchen including enormous pantry. The great and family rooms are wired with surround sound. The main-floor nanny room has a walk-in closet and en-suite. Laundry is conveniently located on both floors. The master suite has 4 sky lights, a large walk-in closet and 5 piece en-suite (the tub has hot and cold jet therapy). There is a one bedroom carriage house currently rented. The larger of the two garages has 9' doors, 10' foot ceiling and even a half bathroom. For additional income there is an RV parking with full hook-up. This property is bare land strata, strata fees include garbage, storage space and water. (id:27476)

Property Highlights

MLS® Number
1029104
Type
Single Family
Maintenance Fee
210.00
Ownership Type
Strata
Land Size
0.92 ac
Parking Space Total
6

Building

Building Type
House
Square Footage
4844 sqft
Bathrooms Total
4
Bedrooms Total
6
Fireplace Present
Yes
Basement Type
Basement Features
Building Heating Type
Heat Pump
Heating Fuel
Electric
Building Cooling Type
Air Conditioned

Location

Learn more about this property
Listing provided by:
RE/MAX Anchor Realty (QU)
MLS® number:
1029104
Agent:
Candice Svrta
*Indicates required field
Name is required
Email is required
Please enter a valid phone number (e.g., 416-111-1111).