45 370 Westland Road, Quesnel, British Columbia V2J 6A7

Listed for:
$195,000
3 beds
1 baths
Listed 2 days ago
Manufactured Home/Mobile for rent: 45 370 Westland Road, Quesnel, British Columbia V2J 6A7

View all 24 photos

About

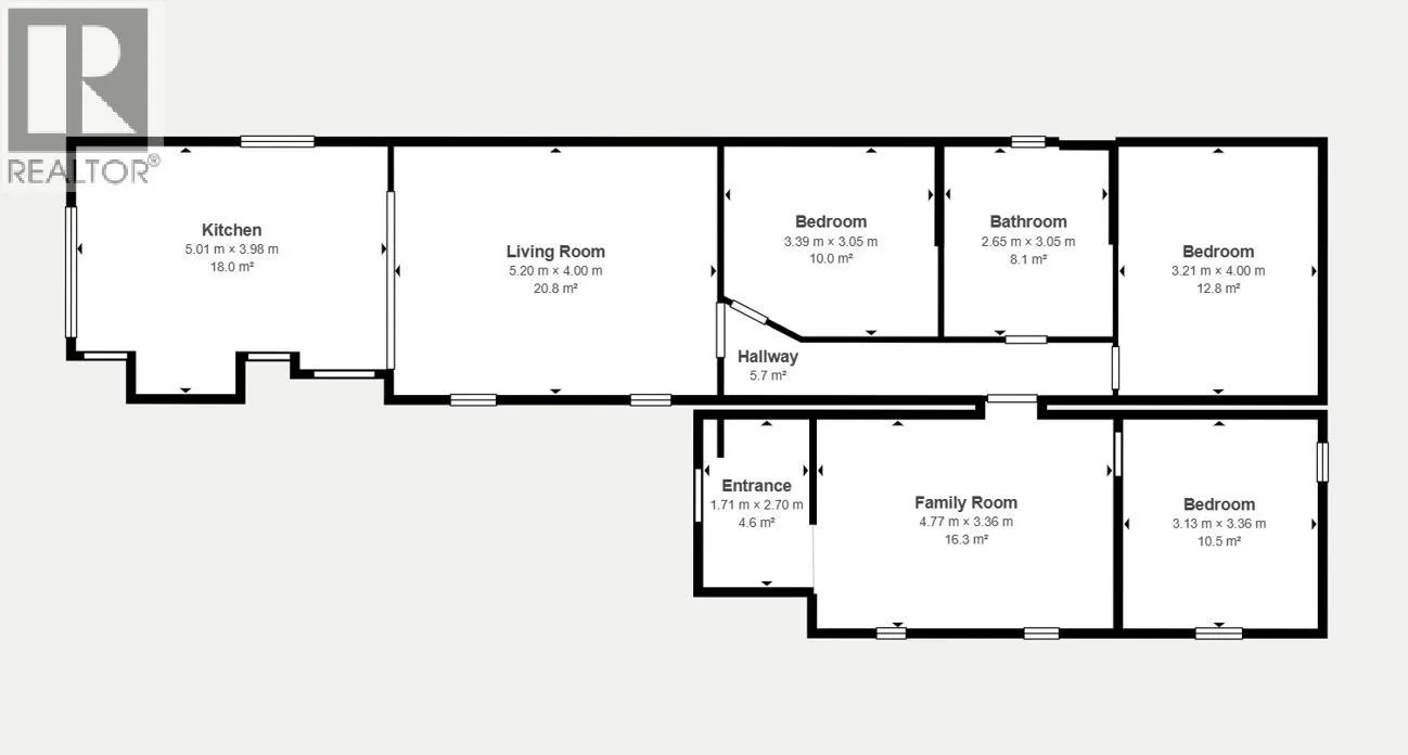
Bright and well-maintained 3 bed, 1 bath home in a family-friendly park! The spacious eat-in kitchen offers plenty of cabinets and a pantry, while the sun-filled living room features a cozy natural gas fireplace. A large addition provides a third bedroom, family room, and mudroom with access to the covered deck—perfect for year-round enjoyment. Keep your vehicle protected with the carport, plus enjoy extra storage with a shed at the back. Numerous updates over the years offer peace of mind. Conveniently located close to shopping, schools, and recreation. A great place to call home! (id:27476)

Property Highlights

MLS® Number
R3104875
Type
Single Family
Ownership Type
Leasehold
Land Size
0 x

Building

Building Type
Manufactured Home/Mobile
Storeys
1.00
Square Footage
1175 sqft
Bathrooms Total
1
Bedrooms Total
3
Exterior Finish
Vinyl siding
Fireplace Present
No
Basement Type
None
Basement Features
Building Heating Type
Forced air
Heating Fuel
Natural gas
Building Cooling Type

Utilities

Water
Municipal water

Room Layout

Kitchen
Main level
13 ft x 13 ft
Living room
Main level
17 ft x 13 ft
Bedroom 2
Main level
11 ft ,2 in x 10 ft
Primary Bedroom
Main level
13 ft x 10 ft ,6 in
Family room
Main level
15 ft ,5 in x 10 ft ,1 in
Bedroom 3
Main level
10 ft ,1 in x 10 ft ,2 in
Mud room
Main level
9 ft x 5 ft ,6 in

Location

Learn more about this property
Listing provided by:
Century 21 Energy Realty(Qsnl)
MLS® number:
R3104875
Agent:
Justine Pelletier
*Indicates required field
Name is required
Email is required
Please enter a valid phone number (e.g., 416-111-1111).