190 12122 Horseshoe Way, Richmond, British Columbia V7A 4V1

Listed for:
$2,250,000
0 beds
0 baths
Listed 231 days ago
190 12122 Horseshoe Way, Richmond, British Columbia V7A 4V1

View all 24 photos

About

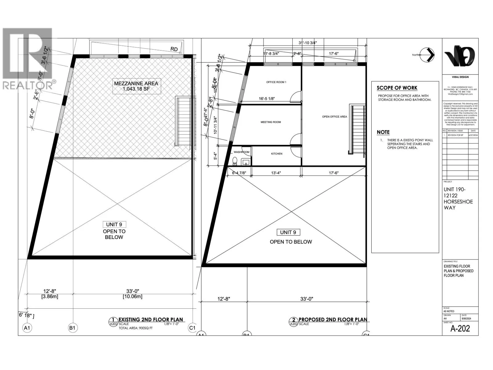
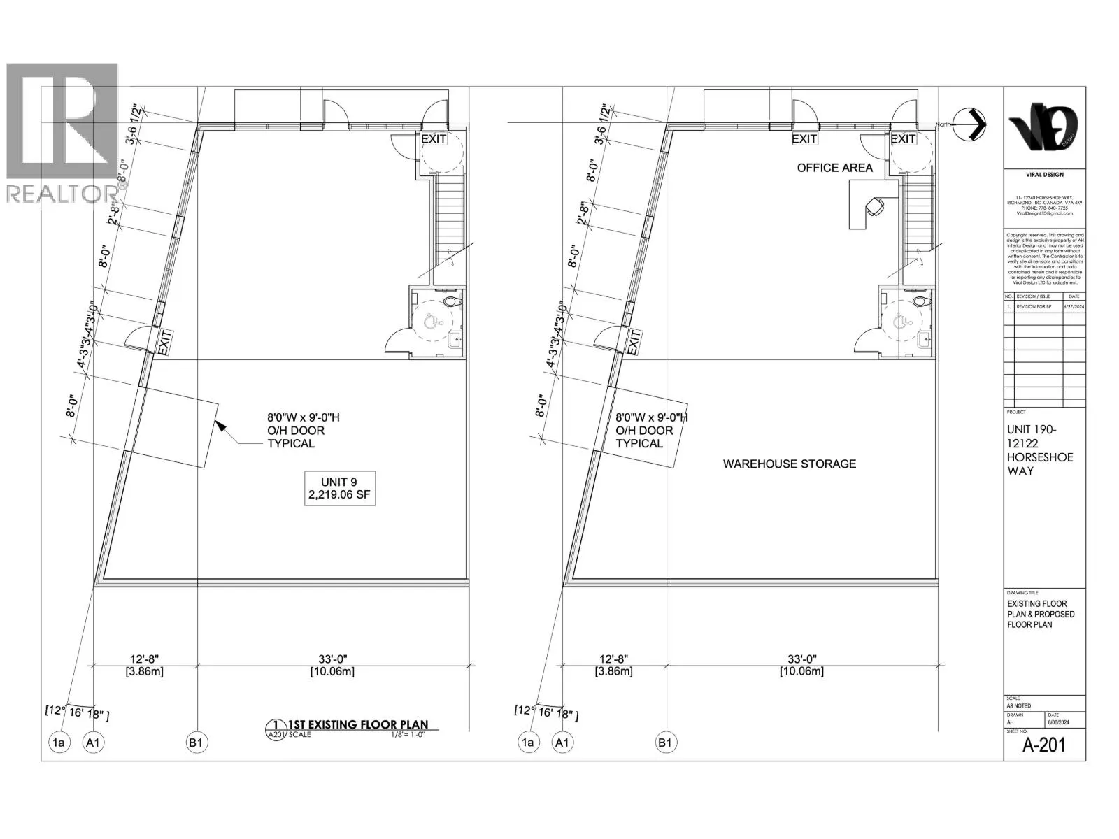
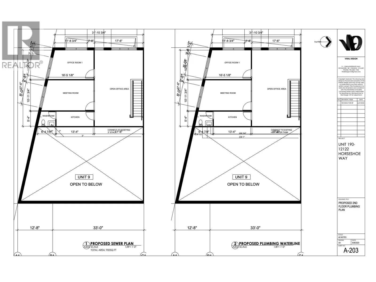
Completed in 2024, this 3,262 sq. ft. industrial strata unit at Ironwood Landing in South Richmond offers a highly functional and modern workspace. The property includes 2,219 sq. ft. of warehouse space and a 1,043 sq. ft. mezzanine office, built with concrete tilt-up construction. Features include glazed grade-level loading doors, 23' clear ceiling height, built-in storage racks, and forklift power outlets. The modern office area is equipped with automated blinds, CCTV security, smart locks, and intelligent lighting control, with separate access for convenience. IB-1 zoning permits a wide range of business uses, complemented by ample parking and excellent access to Hwy 99 and Vancouver International Airport. This property is an ideal location for warehousing, logistics, office, education, or other compatible business operations. (id:27476)

Property Highlights

MLS® Number
C8071426
Type
Industrial
Maintenance Fee
673.34

Building

Square Footage
3262 sqft
Fireplace Present
No
Basement Type
Basement Features
Building Heating Type
Heating Fuel
Building Cooling Type

Location

Learn more about this property
Listing provided by:
Youlive Realty
MLS® number:
C8071426
Agent:
Jacky Wu
*Indicates required field
Name is required
Email is required
Please enter a valid phone number (e.g., 416-111-1111).

Street Spotlight - For sale