222 Temple Street Unit# 1, Sicamous, British Columbia V0E 2V0

Listed for:
$579,000
3 beds
3 baths
Listed 20 days ago
Row / Townhouse for rent: 222 Temple Street Unit# 1, Sicamous, British Columbia V0E 2V0

View all 42 photos

About

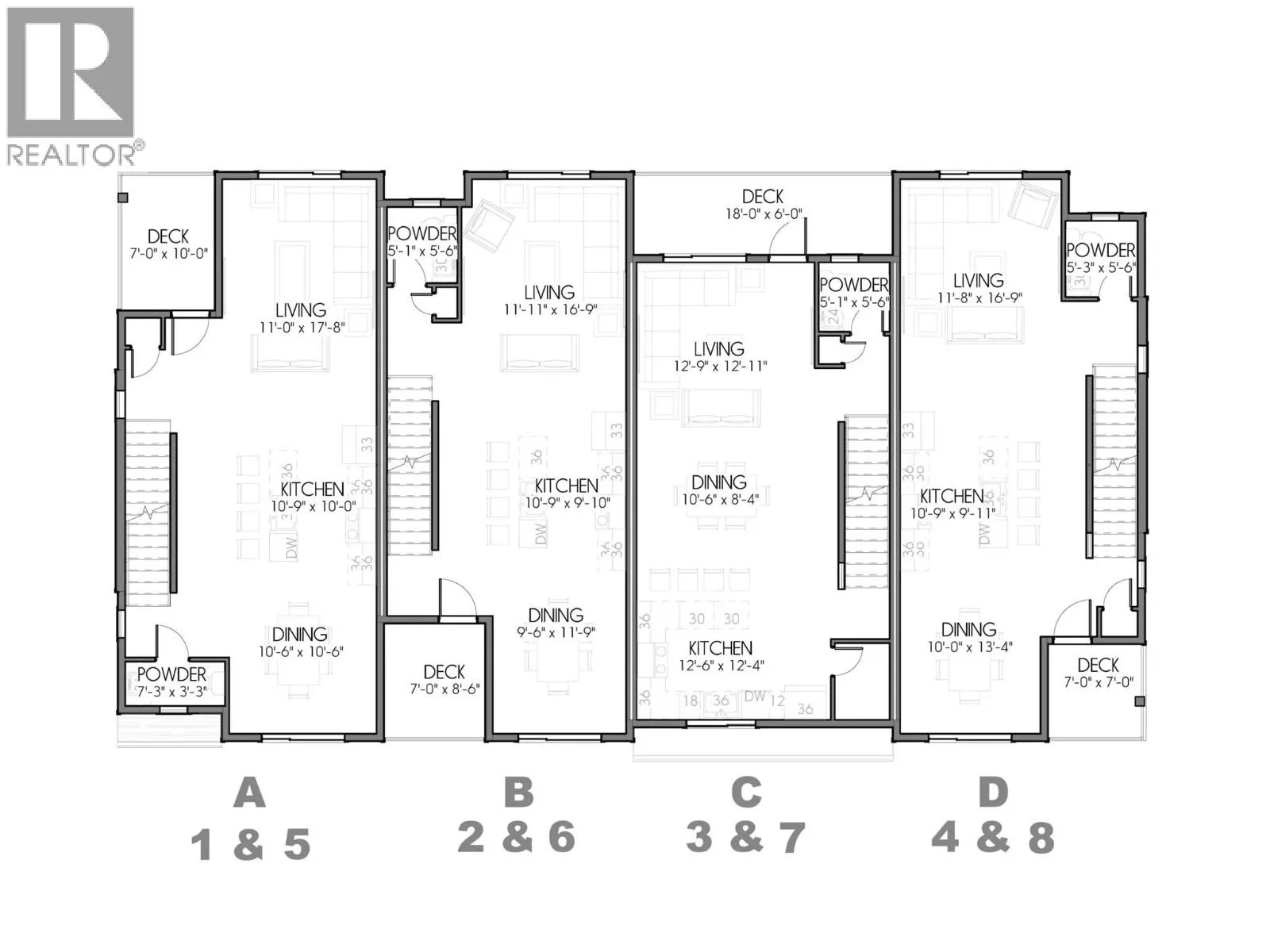
Welcome to #1 at MaraVista in Sicamous. This rare corner unit offers exceptional privacy with only 1 shared wall, making it one of the most desirable locations in the complex. Enjoy 1,582 sq.ft. of modern living plus a large 663 sq.ft. garage w/ 8’ overhead door & 39’ deep x 19.5’ wide —ideal for vehicles, lake toys, bikes, snowmobiles & storage. The open-concept main floor is bright & functional, featuring a stylish kitchen with eating bar, electric fireplace, dining area, powder room, & access to a 7’ x 8.5’ deck for relaxing & entertaining. Upstairs offers 2 spacious bedrooms + den, with both bedrooms featuring private ensuites, plus a full walk-in closet in the primary & convenient upper-floor laundry. Finished with quartz countertops throughout, white wood grained cabinetry, matte black hardware, neutral vinyl plank flooring, & enhanced soundproofing. The exterior includes durable HardiePlank siding, energy-efficient windows, & a high-efficiency mini-split A/C system for year-round comfort. A fully fenced yard adds bonus outdoor space for pets and children. Located in a prime walkable Sicamous location close to downtown, parks, the beach, schools, & everyday amenities. Prewired for fibre optic internet . Only 5% down + $5,000 appliance credit available for first 4 units sold. Low strata fee $356.11/month. Pet restrictions apply. Second of the four season destination only 22 minutes to Salmon Arm, 45 minutes to Revelstoke and 50 Minutes to Vernon. Possession spring 2026. (id:27476)

Property Highlights

MLS® Number
10372764
Type
Single Family
Community Name
MaraVista Sicamous BC
Maintenance Fee
356.11
Ownership Type
Strata
Land Size
under 1 acre
Parking Space Total
3

Building

Building Type
Row / Townhouse
Storeys
3.00
Square Footage
1551 sqft
Bathrooms Total
3
Bedrooms Total
3
Amenities
Clubhouse
Exterior Finish
Other
Fireplace Present
Yes
Basement Type
Basement Features
Building Heating Type
Heat Pump
Heating Fuel
Electric
Building Cooling Type
Heat Pump

Utilities

Water
Municipal water
Utility Sewer
Municipal sewage system

Room Layout

Other
Second level
7' x 10'
Partial bathroom
Second level
7'3'' x 3'3''
Dining room
Second level
10'6'' x 10'6''
Living room
Second level
11' x 17'8''
Kitchen
Second level
10'9'' x 10'
Full bathroom
Third level
10'4'' x 5'4''
Other
Third level
7'3'' x 5'7''
Full ensuite bathroom
Third level
8'6'' x 7'3''
Bedroom
Third level
7'5'' x 9'2''
Bedroom
Third level
10'5'' x 12'3''
Primary Bedroom
Third level
10'6'' x 12'
Other
Main level
39' x 19'5''

Location

Learn more about this property
Listing provided by:
eXp Realty (Sicamous)
MLS® number:
10372764
Agent:
Jessica Klikach
*Indicates required field
Name is required
Email is required
Please enter a valid phone number (e.g., 416-111-1111).