222 Temple Street Unit# 2, Sicamous, British Columbia V0E 2V0

Listed for:
$549,000
3 beds
3 baths
Listed 20 days ago
Row / Townhouse for rent: 222 Temple Street Unit# 2, Sicamous, British Columbia V0E 2V0

View all 25 photos

About

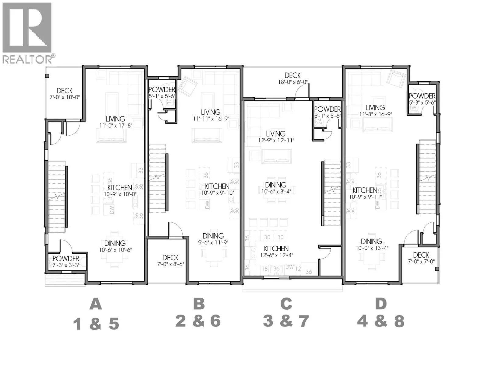
Now offered at a newly reduced price, welcome to #2 at MaraVista Sicamous. A thoughtfully designed 1,436 sq.ft. townhome that blends style, comfort, & functionality in one of Sicamous’ most exciting new developments. This is the one for Couples OR Singles with 2 Primary Bedrooms & features an oversized garage with an 8’ overhead door, measuring 39’ deep x 18’ wide—offering exceptional space for vehicles, storage, tools, & all your recreational gear. Inside, you’ll find a welcoming entry with coat closet, leading upstairs to a bright, open-concept main floor with 9’ ceilings. Designed for entertaining, the layout offers a large eating bar, electric fireplace, dining area, powder room, & a 7’ x 8.5’ outdoor deck for fresh air & summer BBQs. Upstairs, the first primary bedroom is ideally positioned at the back of the home for privacy & quiet, complete with a full ensuite & an enhanced walk-in closet with impressive storage & organization potential. A second Primary bedroom also features its own ensuite, while a versatile den provides flexible space for an office or hobby room. Modern finishings include quartz countertops throughout, white cabinetry, matte black hardware, neutral vinyl plank flooring, off-white walls & trim, plus enhanced soundproofing. The exterior showcases Hardy Plank siding, energy-efficient windows, & a high-efficiency mini-split A/C system for year-round comfort. Fully fenced yard. With only 5% down, Low strata fees at $356.11/month. (id:27476)

Property Highlights

MLS® Number
10372813
Type
Single Family
Community Name
MaraVista
Maintenance Fee
356.11
Ownership Type
Strata
Land Size
under 1 acre
Parking Space Total
3

Building

Building Type
Row / Townhouse
Storeys
3.00
Square Footage
1463 sqft
Bathrooms Total
3
Bedrooms Total
3
Amenities
Clubhouse
Exterior Finish
Other
Fireplace Present
Yes
Basement Type
Basement Features
Building Heating Type
Heat Pump
Heating Fuel
Electric
Building Cooling Type
Heat Pump

Utilities

Water
Municipal water
Utility Sewer
Municipal sewage system

Room Layout

Other
Second level
7'0'' x 8'6''
Dining room
Second level
9'6'' x 11'9''
Partial bathroom
Second level
5'1'' x 5'6''
Living room
Second level
11'11'' x 16'9''
Kitchen
Second level
10'9'' x 9'10''
Other
Third level
5'9'' x 6'5''
Full bathroom
Third level
9'5'' x 5'0''
Bedroom
Third level
7'9'' x 9'11''
Bedroom
Third level
9'2'' x 10'6''
Full ensuite bathroom
Third level
6'0'' x 9'4''
Primary Bedroom
Third level
11'2'' x 12'0''

Location

Learn more about this property
Listing provided by:
eXp Realty (Sicamous)
MLS® number:
10372813
Agent:
Jessica Klikach
*Indicates required field
Name is required
Email is required
Please enter a valid phone number (e.g., 416-111-1111).