11815 Grant Avenue Unit# 103, Summerland, British Columbia V0H 1Z8

Listed for:
$649,000
3 beds
3 baths
Listed 56 days ago
Duplex for rent: 11815 Grant Avenue Unit# 103, Summerland, British Columbia V0H 1Z8

View all 5 photos

Learn more about this property
Listing provided by:
Royal LePage Locations West
MLS® number:
10362332
Agent:
Wes Stewart
*Indicates required field
Name is required
Email is required
Please enter a valid phone number (e.g., 416-111-1111).

About

Introducing this stylish half duplex in the heart of Summerland—a brand new, under-construction strata home offering modern comfort and convenience. Spanning 1,485 sqft across two storeys, this thoughtfully designed residence features a ductless heat pump system for efficient heating and cooling. The main floor boasts an open-concept layout with living, dining, and kitchen areas plus a 2-piece bath—perfect for everyday living and entertaining. Upstairs, you'll find the primary bedroom with a private 3-piece ensuite, two additional bedrooms, a 4-piece bath, and laundry conveniently located on the same floor. 4ft crawl space creates room for lots of extra storage! With a $225/month strata fee, one parking stall, and pet-friendly bylaws (with restrictions), this property offers low-maintenance living just minutes from downtown Summerland, schools, and parks. No age restrictions make it ideal for a range of buyers—don’t miss out on this exciting opportunity! Property is under construction with estimated completion Winter 2025. Contact the listing agent for details! BONUS - the seller is offering a $10K credit for all closing costs! Contact the listing agent for details! (id:27476)

Property Highlights

MLS® Number
10362332
Type
Single Family
Community Name
.
Maintenance Fee
225.00
Ownership Type
Strata
Land Size
under 1 acre
Parking Space Total
1

Building

Building Type
Duplex
Storeys
2.00
Square Footage
1485 sqft
Bathrooms Total
3
Bedrooms Total
3
Amenities
Park, Recreation, Schools, Shopping
Exterior Finish
Other
Fireplace Present
No
Basement Type
Crawl space
Basement Features
Building Heating Type
Heat Pump
Heating Fuel
Electric
Building Cooling Type
Heat Pump

Utilities

Water
Municipal water
Utility Sewer
Municipal sewage system

Room Layout

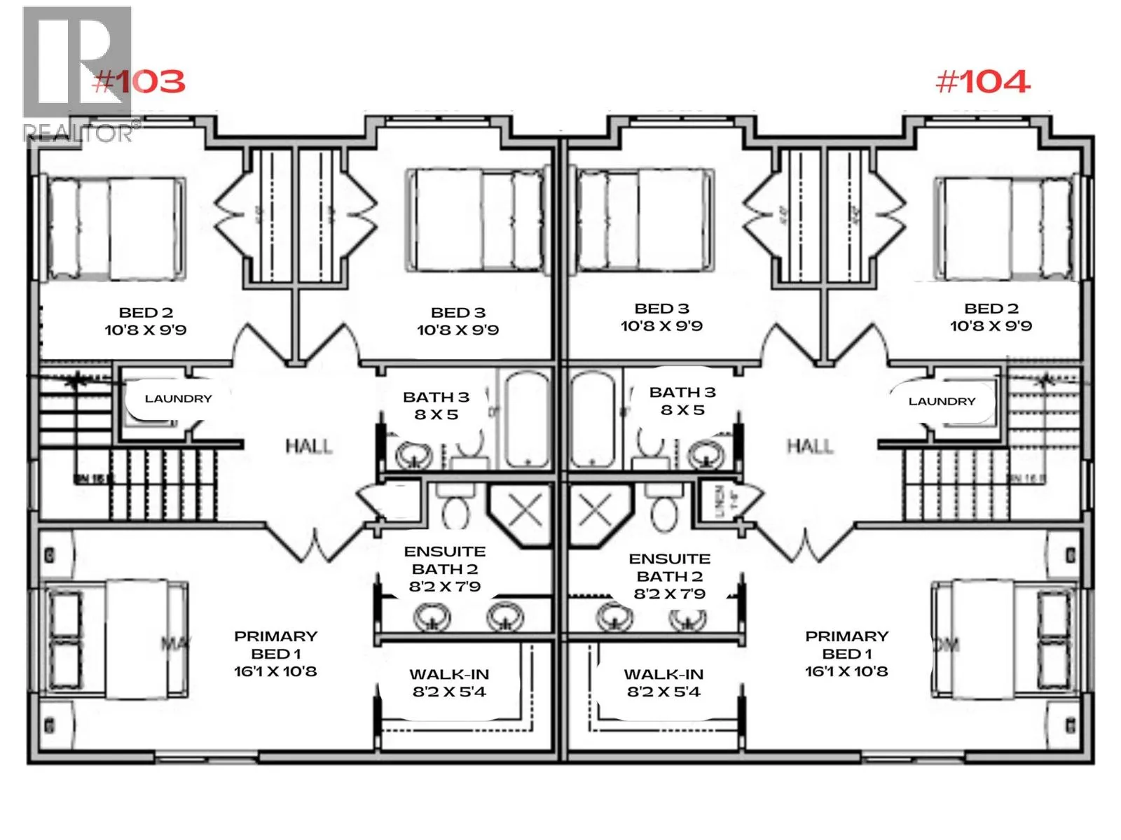
4pc Bathroom
Second level
Measurements not available
Primary Bedroom
Second level
16'1'' x 10'8''
3pc Ensuite bath
Second level
8'2'' x 7'9''
Bedroom
Second level
10'8'' x 9'9''
Bedroom
Second level
10'8'' x 9'9''
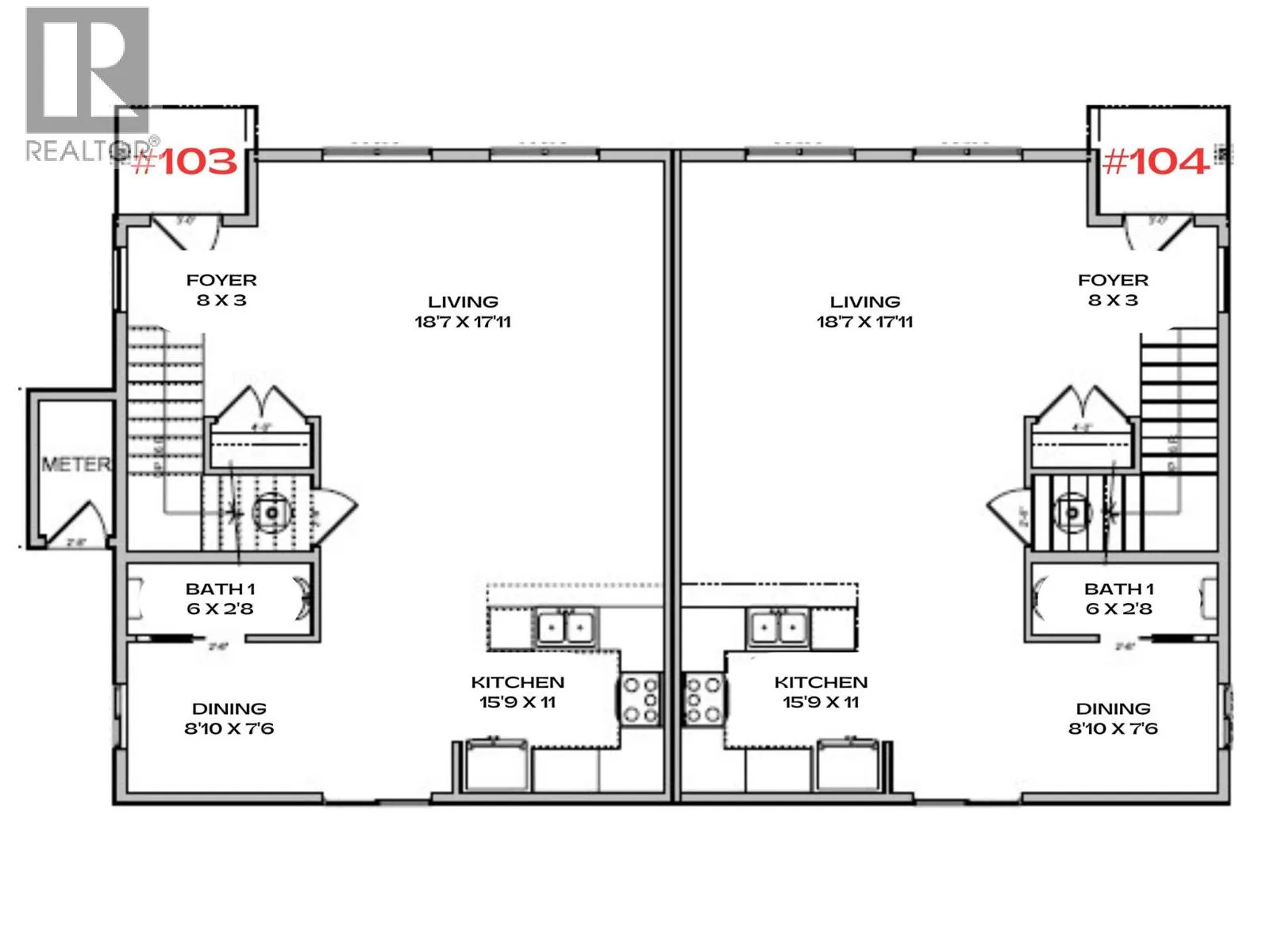
Foyer
Main level
8' x 3'
Living room
Main level
18'7'' x 17'11''
Dining room
Main level
8'10'' x 7'6''
Kitchen
Main level
15'9'' x 11'
2pc Bathroom
Main level
6' x 2'8''

Location