103 4638 Orca Way, Tsawwassen, British Columbia V4M 0C2

Listed for:
$1,125,000
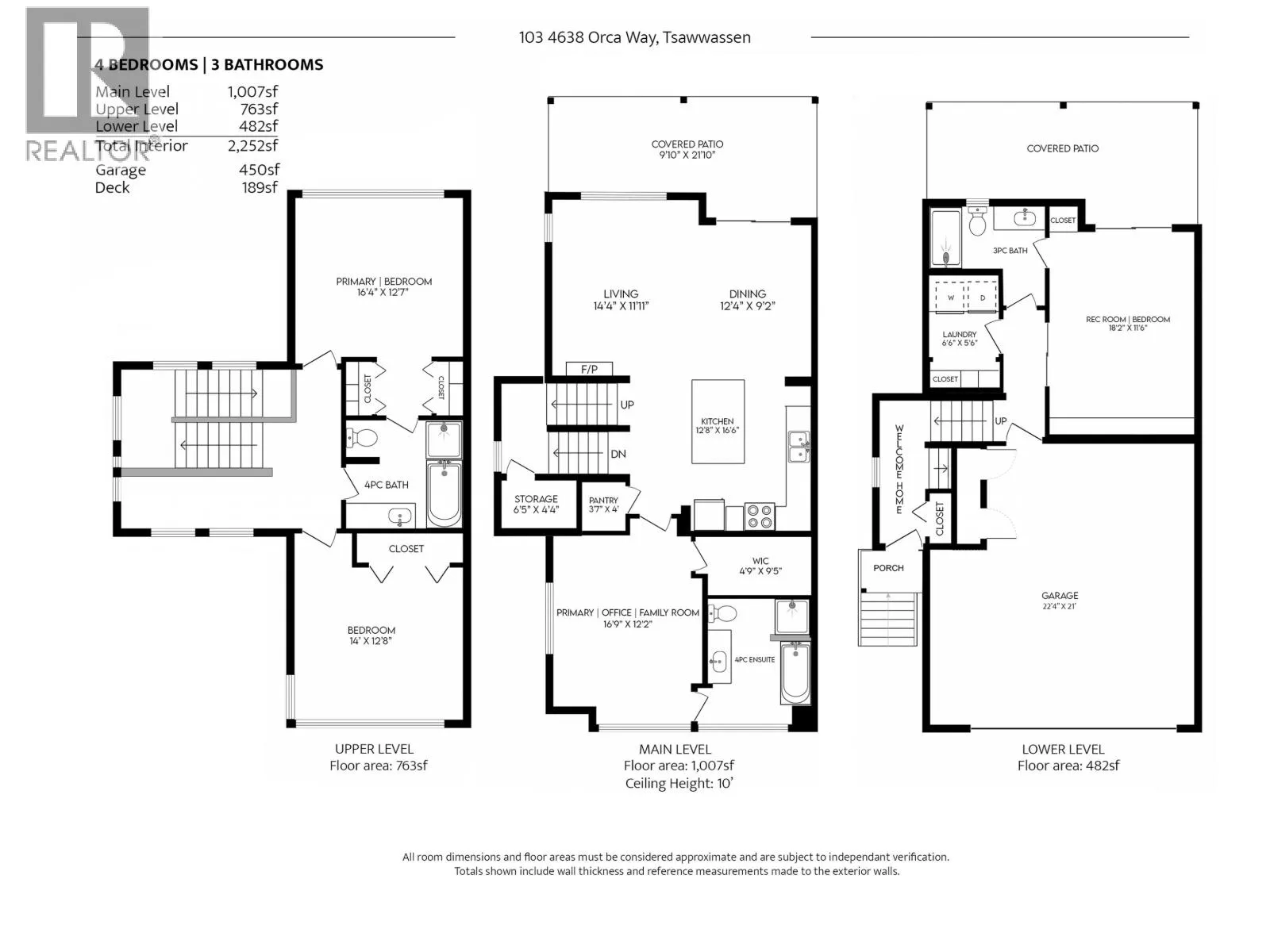
4 beds
3 baths
Listed 16 days ago
Duplex for rent: 103 4638 Orca Way, Tsawwassen, British Columbia V4M 0C2

View all 40 photos

Learn more about this property
Listing provided by:
Stilhavn Real Estate Services
MLS® number:
R3063564
Agent:
Maria Senajova
*Indicates required field
Name is required
Email is required
Please enter a valid phone number (e.g., 416-111-1111).

About

You will love everything about Seaside - more sun, beach & ocean near by, Tsw Mills Mall down the street, Tsawwassen Springs Golf Course, Nat's Cafe & Newman´s fine foods in walking distance and a 10,000 sf Clubhouse with outdoor pool, gym, beautiful lounge & games room. 4-bed Duplex style home with private yard, double garage & flexible layout - Primary bedroom, family room or a grand office on the main, guest/teenager's room with full bathroom downstairs for privacy & 2 bedrooms up. Light filled main level with 10 ft ceilings, XL kitchen, 7 ft island. Living & dining seamlessly connects to a large covered deck, where you can live al fresco in all seasons. Windows on 3 sides allow for a beautiful symphony of light throughout the day. Exceptionally clean and shows like almost new. Downsizers will love the house sized rooms, families will love to see & hear their kids in your own sunny yard. This one just might be the one! No speculation & vacancy tax. OPEN HOUSE: SUN NOV 16th | 1 - 4PM (id:27476)

Property Highlights

MLS® Number
R3063564
Type
Single Family
Maintenance Fee
654.87
Ownership Type
Leasehold Condo/Strata
Parking Space Total
3

Building

Building Type
Duplex
Square Footage
2252 sqft
Bathrooms Total
3
Bedrooms Total
4
Amenities
Exercise Centre, Laundry - In Suite, Recreation Centre Playground
Fireplace Present
No
Basement Type
Basement Features
Building Heating Type
Baseboard heaters
Heating Fuel
Electric
Building Cooling Type

Location

Street Spotlight - For sale