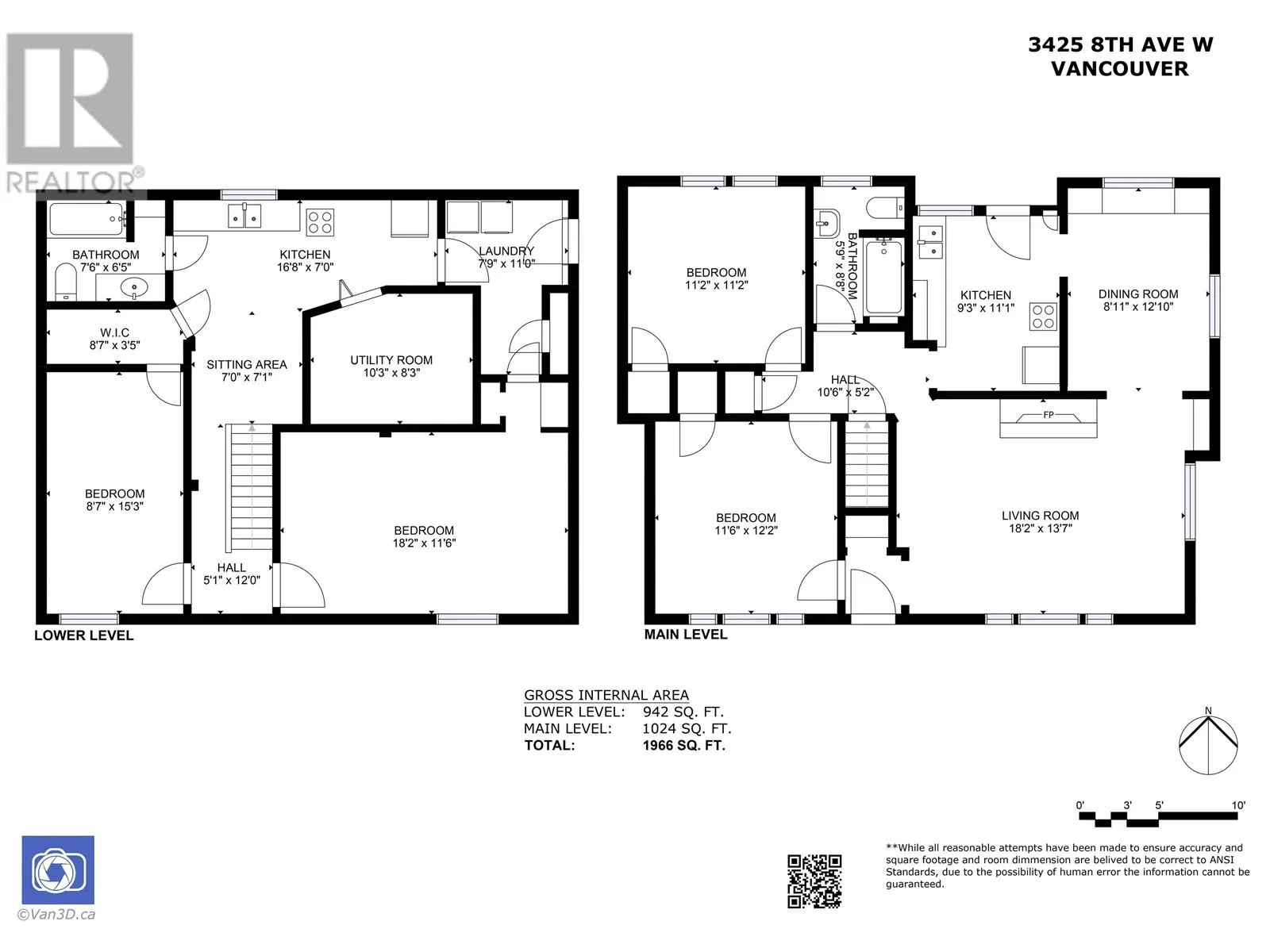
3425 W 8th Avenue, Vancouver, British Columbia V6R 1Y6

Listed for:
$2,999,800
4 beds
2 baths
Listed 35 days ago
House for rent: 3425 W 8th Avenue, Vancouver, British Columbia V6R 1Y6

View all 40 photos

Learn more about this property
Listing provided by:
RE/MAX City Realty
MLS® number:
R2964628
Agent:
Naomi Wang
*Indicates required field
Name is required
Email is required
Please enter a valid phone number (e.g., 416-111-1111).

About

Discover the charm of 3425 W 8th Avenue, a beautifully upgraded home in Vancouver's desirable Kitsilano area. This cozy residence boasts extensive renovations including a new roof, high-efficiency furnace, instant water heating system, and complete rewiring. Enjoy new Vinyl flooring, freshly painted interiors, and refurbished cabinets. Outside, a newly rebuilt deck, refreshed garden, and fine gravel driveway enhance the home's appeal. Benefit from advanced waterproofing concrete new foundation and a modernized plumbing system. Located within walking distance to cafes, shops, and a world-class beach.Easy to show.Must see! (id:27476)

Property Highlights

MLS® Number
R2964628
Type
Single Family
Ownership Type
Freehold
Land Size
4631.62 sqft
Parking Space Total
2

Building

Building Type
House
Square Footage
1966 sqft
Bathrooms Total
2
Bedrooms Total
4
Amenities
Recreation, Shopping
Fireplace Present
Yes
Basement Type
Unknown (Partially finished)
Basement Features
Separate entrance
Building Heating Type
Heating Fuel
Natural gas
Building Cooling Type

Location

Street Spotlight - For sale