Sl22 6808 Ash Street, Vancouver, British Columbia V6P 3K4

Listed for:
$2,699,000
2 beds
3 baths
Listed 8 days ago
Row / Townhouse for rent: Sl22 6808 Ash Street, Vancouver, British Columbia V6P 3K4

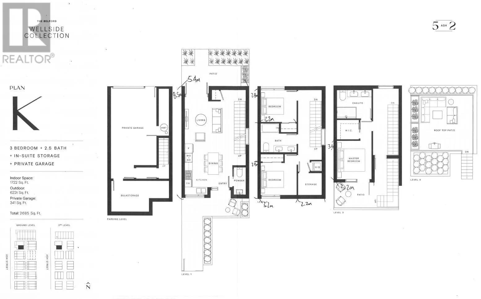
View all 9 photos

Learn more about this property
Listing provided by:
Luxmore Realty
MLS® number:
R3007135
Agent:
Shirley Wu
*Indicates required field
Name is required
Email is required
Please enter a valid phone number (e.g., 416-111-1111).

About

Assignment of Contract- The most RARE and luxurious layout in the Revive community. 1722SF of lavish and spacious living with 3 bedrooms + den, multiple outdoor patios and your own ROOFTOP garden for private enjoyment. This home boasts a private GATED parking and storage unit for your use only. Revive blends the elegant simplicity of Japanese & Scandinavian design. Its distinct appeal is influenced by its location, interiors, and courtyards. First project in Vancouver to be built with a cold formed steel frame. Beautifully located on Cambie Corridor, less than 10 mins to Canada Line, dining, entertainment, & leisure. Accessible to Downtown Vancouver & Richmond. Call for more details! (id:27476)

Property Highlights

MLS® Number
R3007135
Type
Single Family
Maintenance Fee
0.00
Ownership Type
Strata
Parking Space Total
2

Building

Building Type
Row / Townhouse
Square Footage
1722 sqft
Bathrooms Total
3
Bedrooms Total
2
Amenities
Laundry - In Suite Golf Course, Recreation, Shopping
Fireplace Present
No
Basement Type
Basement Features
Building Heating Type
Forced air
Heating Fuel
Building Cooling Type
Air Conditioned

Location

Street Spotlight - For sale