4508 Knight Street, Vancouver, British Columbia V5N 3M9

Listed for:
$2,249,000
5 beds
1 baths
Listed 159 days ago
House for rent: 4508 Knight Street, Vancouver, British Columbia V5N 3M9

View all 7 photos

Learn more about this property
Listing provided by:
Grand Central Realty
MLS® number:
R3015211
Agent:
Gary Paul
*Indicates required field
Name is required
Email is required
Please enter a valid phone number (e.g., 416-111-1111).

About

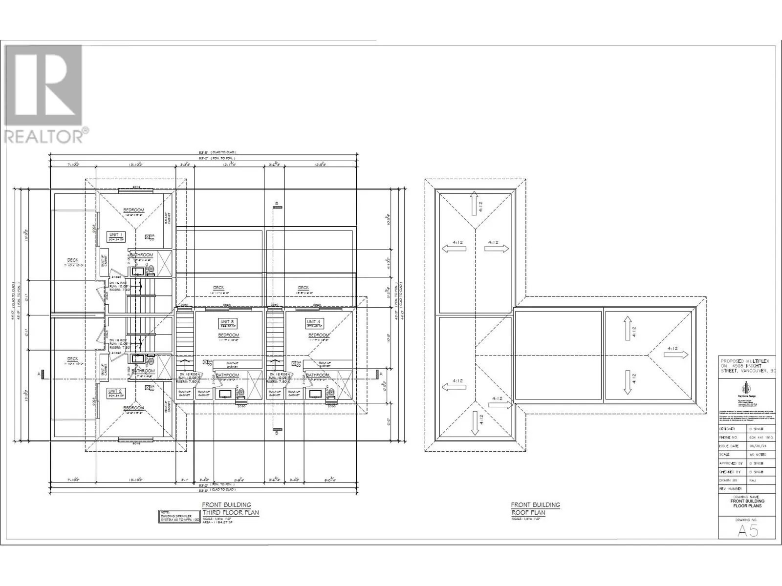
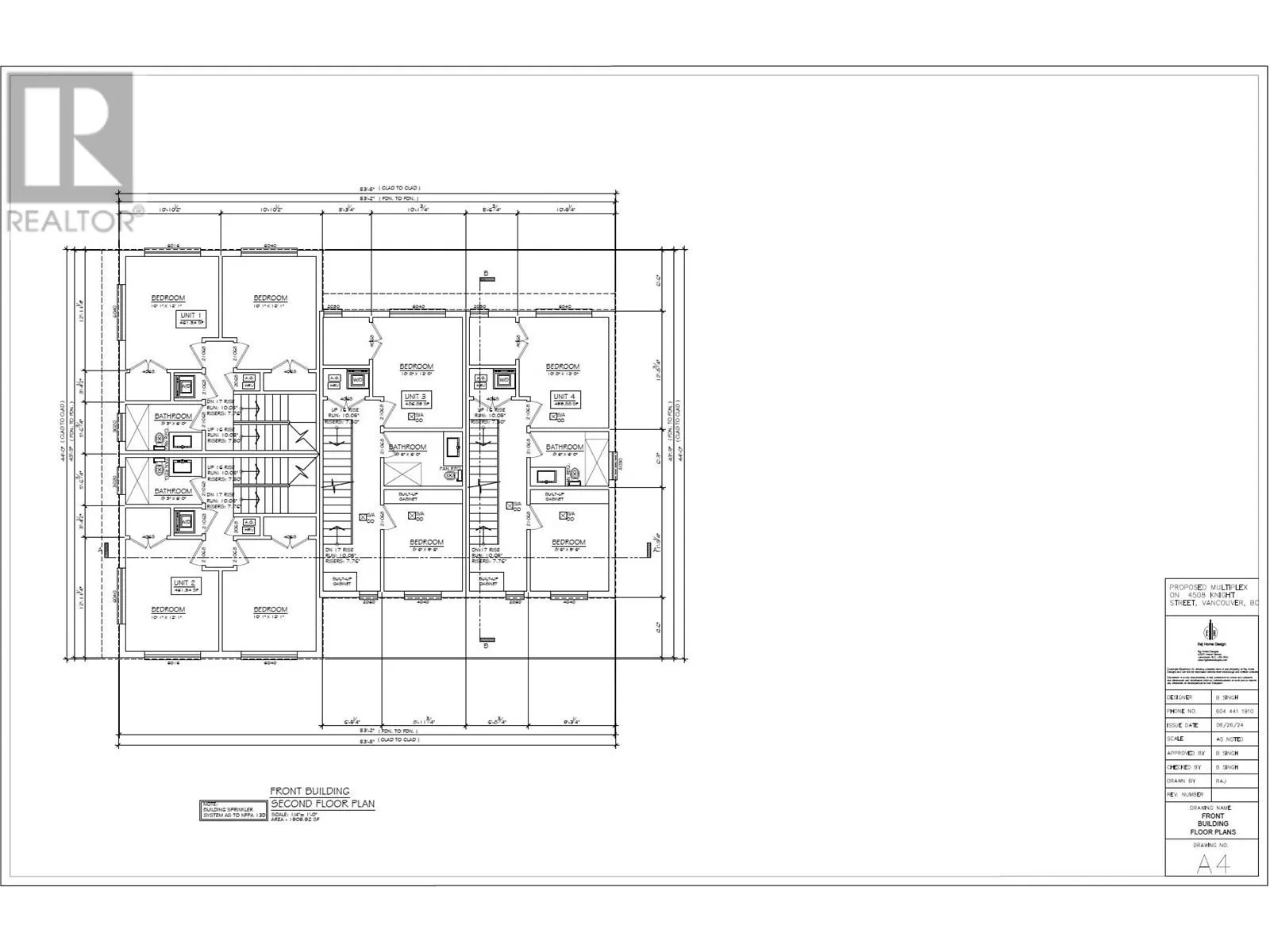
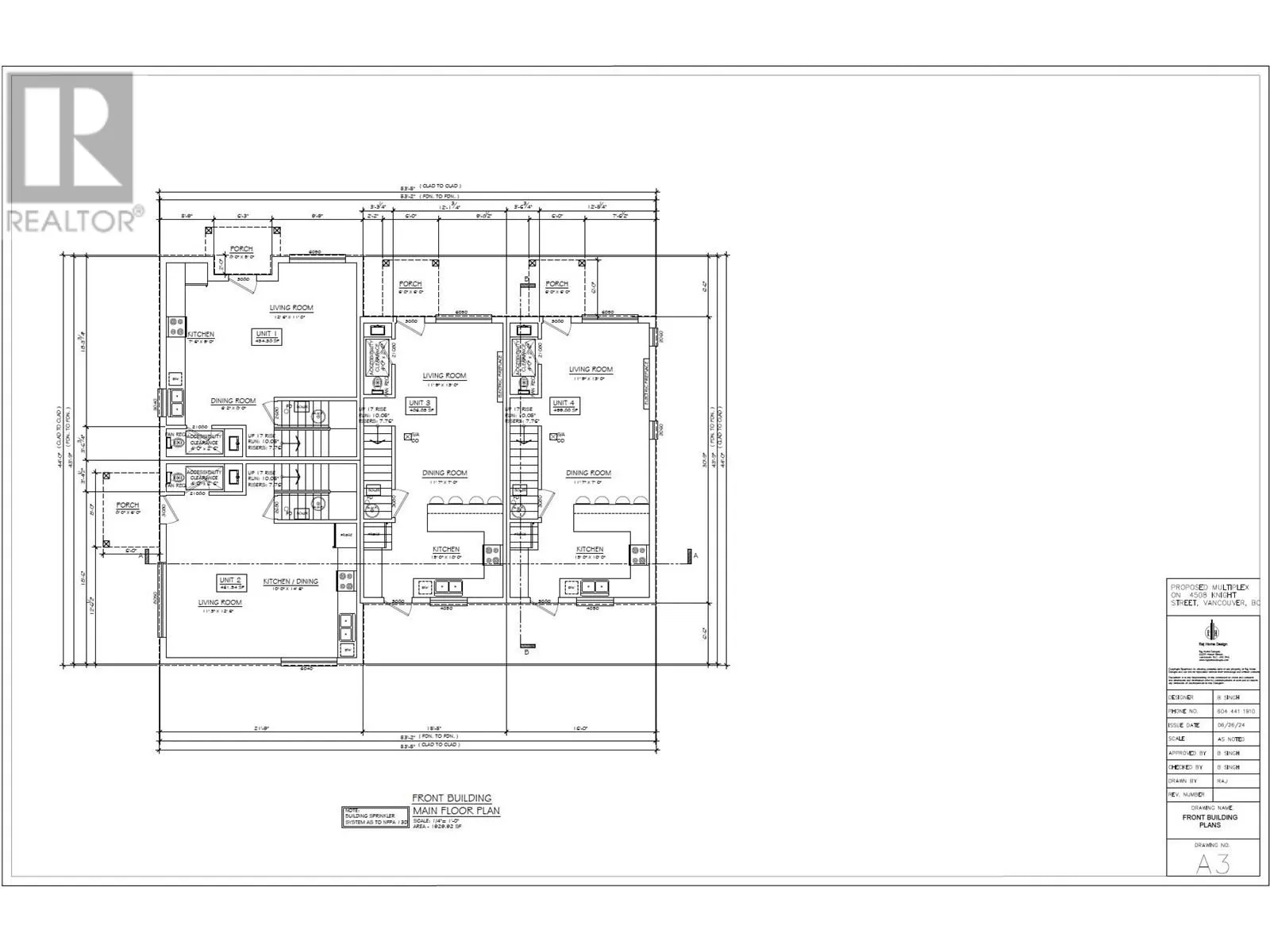
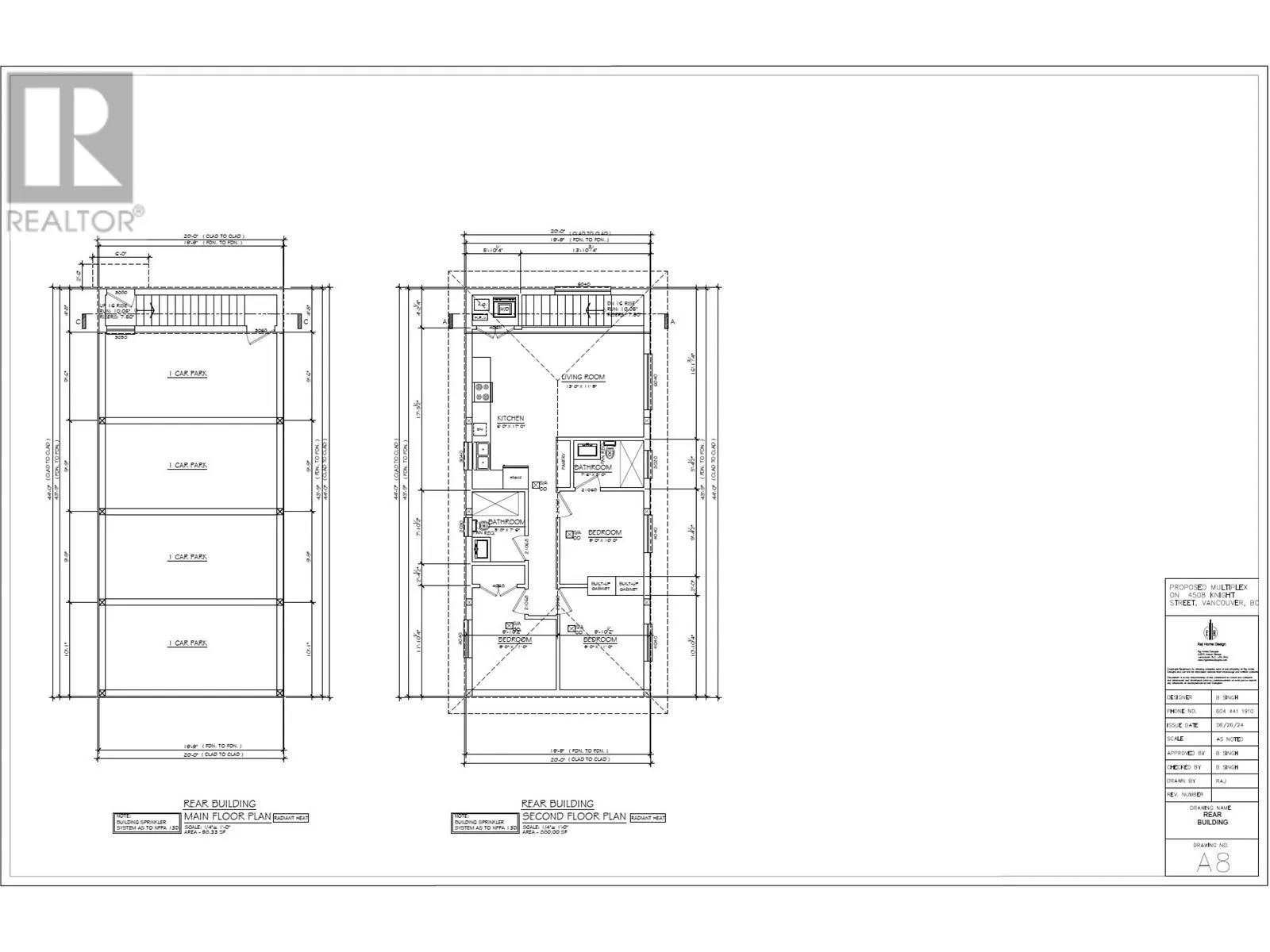
ATTENTION DEVELOPERS!!! Located in highly sought-after Cedar Cottage neighbourhood, this large 52 x 113 (5,879 SqFt) corner lot with lane access comes with ready-to-go plans for a 5-unit development totaling 5,913 SqFt. Each proposed unit features three bedrooms with separate entrances, offering flexibility for end-users or investors alike. Permit applications are already underway. Perfect for a developer to capitalize immediately. School Catchment: Lord Selkirk Elem. & Gladstone Sec.; French Immersion: Laura Secord Elem. & Van Tech Sec. Walkable access to transit (33 to UBC), groceries (Save-On-Foods, T&T), restaurants (White Spot, Golden Swan), and recreation (QE Park, Hillcrest & Kensington CC). A rare, shovel-ready opportunity in one of East Vancouver´s most vibrant communities. (id:27476)

Property Highlights

MLS® Number
R3015211
Type
Single Family
Ownership Type
Freehold
Land Size
5879.36 sqft
Parking Space Total
1

Building

Building Type
House
Square Footage
1920 sqft
Bathrooms Total
1
Bedrooms Total
5
Amenities
Golf Course, Recreation, Shopping
Fireplace Present
Yes
Basement Type
Unknown (Finished)
Basement Features
Unknown
Building Heating Type
Hot Water
Heating Fuel
Building Cooling Type

Location

Street Spotlight - For sale