2207 4815 Eldorado Mews, Vancouver, British Columbia V5R 0B2

Listed for:
$769,000
2 beds
2 baths
Listed 54 days ago
Apartment for rent: 2207 4815 Eldorado Mews, Vancouver, British Columbia V5R 0B2

View all 30 photos

Learn more about this property
Listing provided by:
Nu Stream Realty Inc.
MLS® number:
R3019560
Agent:
Tracy Niu
*Indicates required field
Name is required
Email is required
Please enter a valid phone number (e.g., 416-111-1111).

About

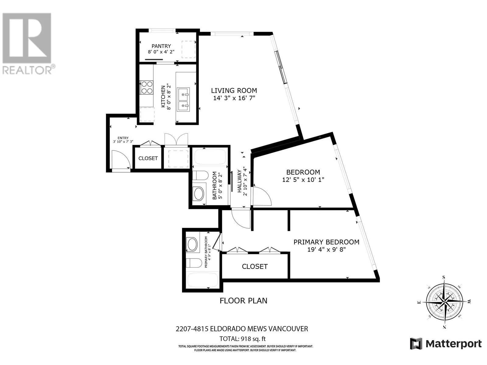
Central Location with Stunning Views! Just a 5-minute walk to T&T Supermarket, and close to Shoppers Drug Mart, banks, restaurants, shops, and bus stations - everything you need is right at your doorstep! This well-maintained 2-bedroom, 2-bathroom home offers over 900 square ft of comfortable living space with a bright open kitchen layout. Enjoy the spectacular city and mountain views from your oversized L-shaped balcony - perfect for soaking in the sun or watching English Bay fireworks nights from the comfort of home. Spacious bedrooms and bathrooms, and plenty of natural light throughout make this a true gem in the city. (id:27476)

Property Highlights

MLS® Number
R3019560
Type
Single Family
Maintenance Fee
708.73
Ownership Type
Strata
Parking Space Total
1

Building

Building Type
Apartment
Square Footage
918 sqft
Bathrooms Total
2
Bedrooms Total
2
Amenities
Exercise Centre, Laundry - In Suite Shopping
Fireplace Present
No
Basement Type
Basement Features
Building Heating Type
Baseboard heaters
Heating Fuel
Electric
Building Cooling Type

Location

Street Spotlight - For sale