3a 1500 Alberni Street, Vancouver, British Columbia V6G 3C9

Listed for:
$1,280,000
2 beds
2 baths
Listed 17 days ago
Apartment for rent: 3a 1500 Alberni Street, Vancouver, British Columbia V6G 3C9

View all 20 photos

Learn more about this property
Listing provided by:
Macdonald Realty
MLS® number:
R3027620
Agent:
Anne Marie Chan
*Indicates required field
Name is required
Email is required
Please enter a valid phone number (e.g., 416-111-1111).

About

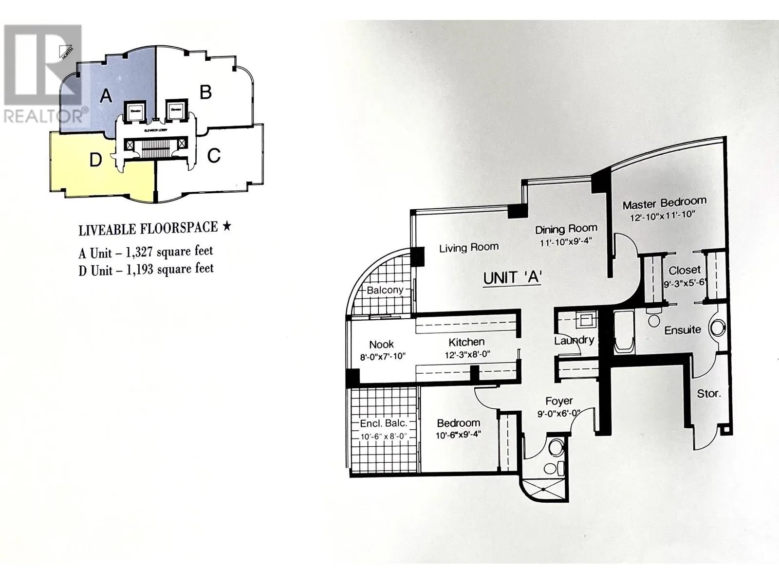
Quality built sought after 1500 Alberni. Renovated two bedroom 2 bath and office corner unit. Tile floors, 9 foot ceiling and in ceiling radiant heat. Well managed and proactive strata with 24/7. Concierge services. Elegant lobby and fitness Centre. Garden and Gazebo. Master bedroom boasts two spacious closets. Bonus two side-by-side parking stalls 56 +57 and storage locker. (id:27476)

Property Highlights

MLS® Number
R3027620
Type
Single Family
Maintenance Fee
1183.10
Ownership Type
Strata
Parking Space Total
2

Building

Building Type
Apartment
Square Footage
1347 sqft
Bathrooms Total
2
Bedrooms Total
2
Amenities
Exercise Centre, Laundry - In Suite Recreation, Shopping
Fireplace Present
No
Basement Type
Basement Features
Building Heating Type
Radiant heat
Heating Fuel
Building Cooling Type

Location

Street Spotlight - For sale