2802 E 45th Avenue, Vancouver, British Columbia V5R 3C4

Listed for:
$2,580,000
7 beds
5 baths
Listed 49 days ago
House for rent: 2802 E 45th Avenue, Vancouver, British Columbia V5R 3C4

View all 31 photos

About

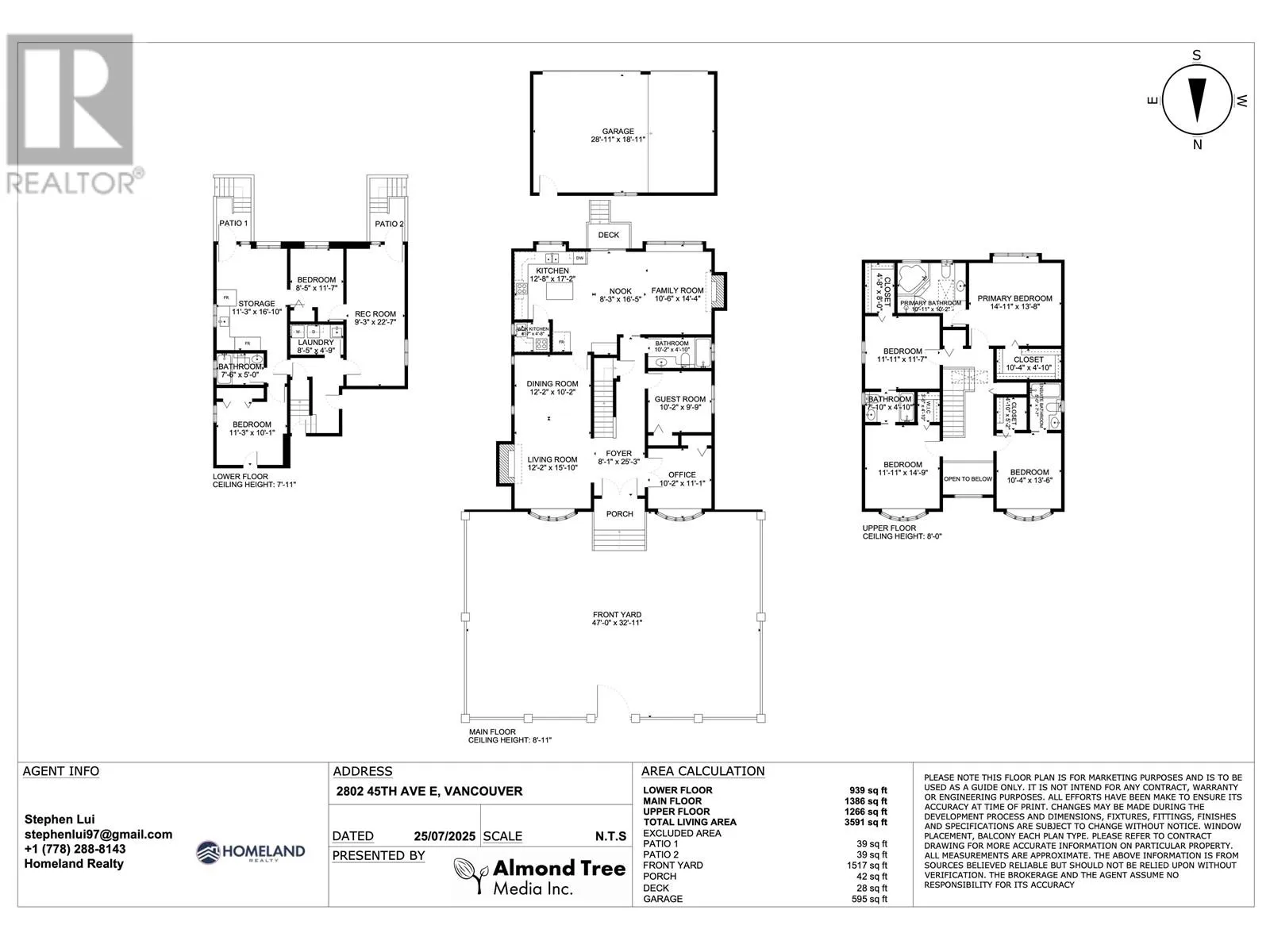
Well-maintained custom built home in the desirable Killarney neighborhood! Situated on a 48.8 x 122 ft (5,954 sqft) lot with lane access, offers 7-bed & 5-bath, and excellent flexibility for large families or investors. The functional layout provides potential to convert into two separate suites (subject to approval from the authority), perfect for rental income or extended family living. Enjoy RV or boat parking & explore the possibility of adding a laneway house for even more value. Just steps to Killarney Park & Community Centre, with easy access to transit, shopping, and amenities. This is a rare opportunity to own a large lot with endless potential in one of East Vancouver's most family-friendly communities! Video: https://youtu.be/_ps4xFTvdbo?si=_ibH Open House Jan 11 (Sun) 2-4 pm. (id:27476)

Property Highlights

MLS® Number
R3031190
Type
Single Family
Ownership Type
Freehold
Land Size
5954.83 sqft
Parking Space Total
5

Building

Building Type
House
Square Footage
3591 sqft
Bathrooms Total
5
Bedrooms Total
7
Amenities
Recreation
Fireplace Present
Yes
Basement Type
Unknown (Finished)
Basement Features
Unknown
Building Heating Type
Radiant heat
Heating Fuel
Building Cooling Type

Location

Learn more about this property
Listing provided by:
Homeland Realty
MLS® number:
R3031190
Agent:
Stephen Lui
*Indicates required field
Name is required
Email is required
Please enter a valid phone number (e.g., 416-111-1111).

Street Spotlight - For sale