550 E 55th Avenue, Vancouver, British Columbia V5X 1N5

Listed for:
$1,868,800
6 beds
3 baths
Listed 105 days ago
House for rent: 550 E 55th Avenue, Vancouver, British Columbia V5X 1N5

View all 40 photos

About

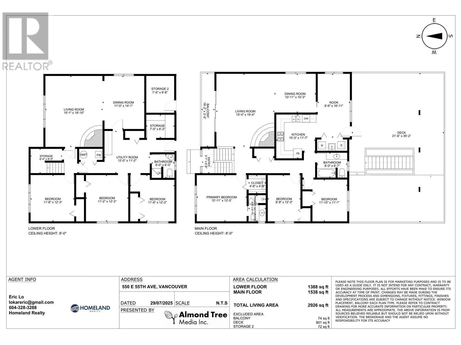
Solid 2926 sq. ft. European built home with 6 bedrooms (each over 100 sq. ft.) and 3 bathrooms located in South Vancouver on a 49.5x108 lot. Schools, public transportation, community center, grocery stores and restaurants are just minutes away. This spacious split level home features two unique and beautiful curved stone fireplaces up and down, with a vaulted ceiling made of gorgeous cedar in the living room. Large downstairs rec room is great for multi-use purposes. The large 901 sq. ft. South facing deck, which covers a 3 car carport, is perfect for leisure, entertaining and/or can be a gardener's delight. This home comes with ample storage space, both inside and out. Lots of potential - a must see. Video: https://youtu.be/9s3uyJ5itFo (id:27476)

Property Highlights

MLS® Number
R3032955
Type
Single Family
Ownership Type
Freehold
Land Size
5346 sqft
Parking Space Total
3

Building

Building Type
House
Square Footage
2926 sqft
Bathrooms Total
3
Bedrooms Total
6
Amenities
Recreation, Shopping
Fireplace Present
Yes
Basement Type
Unknown (Finished)
Basement Features
Unknown
Building Heating Type
Forced air
Heating Fuel
Building Cooling Type

Location

Learn more about this property
Listing provided by:
Homeland Realty
MLS® number:
R3032955
Agent:
Eric Lo
*Indicates required field
Name is required
Email is required
Please enter a valid phone number (e.g., 416-111-1111).

Street Spotlight - For sale