229 E 11th Avenue, Vancouver, British Columbia V5T 2C4

Listed for:
$949,000
2 beds
2 baths
Listed 81 days ago
Row / Townhouse for rent: 229 E 11th Avenue, Vancouver, British Columbia V5T 2C4

View all 27 photos

Learn more about this property
Listing provided by:
RE/MAX Select Properties
MLS® number:
R3041474
Agent:
Telf Maynard
*Indicates required field
Name is required
Email is required
Please enter a valid phone number (e.g., 416-111-1111).

About

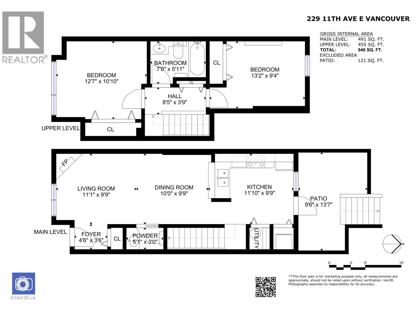
Welcome to Tala Vera in Mount Pleasant, steps from the Main Street corridor. This 2-bed, 2-bath end-unit townhome offers a sunny south-facing street-level private entrance and a generous north-facing patio in the secure interior courtyard. Built in 1999 by award-winning Cascadia, it has been well cared for and features hardwood floors, an open-plan living/dining/kitchen with gas fireplace, and abundant windows for natural light and airflow. Both bedrooms are full sized, with the second enjoying a glimpse of the mountains. On a quiet tree-lined street close to cafés, shops, parks, and transit, this home blends comfort, character, and convenience. (id:27476)

Property Highlights

MLS® Number
R3041474
Type
Single Family
Maintenance Fee
446.14
Ownership Type
Strata
Parking Space Total
1

Building

Building Type
Row / Townhouse
Square Footage
946 sqft
Bathrooms Total
2
Bedrooms Total
2
Amenities
Shopping
Fireplace Present
No
Basement Type
Basement Features
Building Heating Type
Baseboard heaters
Heating Fuel
Building Cooling Type

Location

Street Spotlight - For sale