22 W 14th Street, Vancouver, British Columbia V5Y 1W6

Listed for:
$1,079,500
2 beds
1 baths
Listed 74 days ago
House for rent: 22 W 14th Street, Vancouver, British Columbia V5Y 1W6

View all 3 photos

Learn more about this property
Listing provided by:
RE/MAX Select Properties
MLS® number:
R3043457
Agent:
Patrick Weeks
*Indicates required field
Name is required
Email is required
Please enter a valid phone number (e.g., 416-111-1111).

About

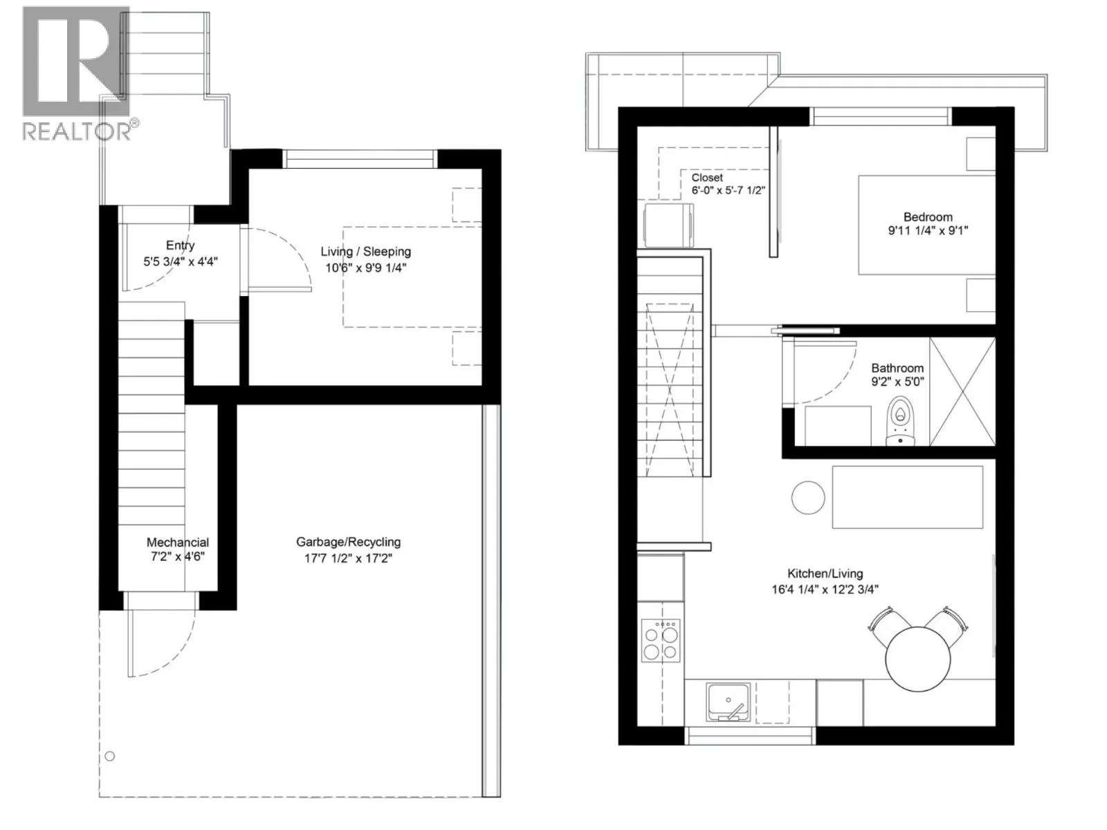
A rare chance to own a fully detached Net Zero coach house in Mount Pleasant-one of Canada´s best neighbourhoods. This 2 bed, 1 bath, 770 square ft home features a reverse floorplan with bedrooms below and open living above for maximum light and privacy. Built for sustainability, it´s solar powered with airtight construction for year-round comfort and ultra-low energy bills. Interiors include panel-ready Miele appliances, dual 24" fridge/freezer, Dekton counters, custom cabinetry, and Blum hardware. The spa bath offers Porcelanosa tile, custom vanity, and curbless Hansgrohe shower. Solid wood doors, Olivari brass hardware, finished closets, blinds, and stacked Miele laundry reflect quality throughout. Smart home features, landscape lighting, and just 800mto the new SkyTrain. (id:27476)

Property Highlights

MLS® Number
R3043457
Type
Single Family
Ownership Type
Freehold
Land Size
3267 sqft

Building

Building Type
House
Square Footage
771 sqft
Bathrooms Total
1
Bedrooms Total
2
Amenities
Laundry - In Suite Recreation, Shopping
Fireplace Present
No
Basement Type
Basement Features
Building Heating Type
Heat Pump
Heating Fuel
Electric
Building Cooling Type
Air Conditioned

Location

Street Spotlight - For sale