2970 E 7th Avenue, Vancouver, British Columbia V5M 1V3

Listed for:
$1,675,000
3 beds
4 baths
Listed 98 days ago
Duplex for rent: 2970 E 7th Avenue, Vancouver, British Columbia V5M 1V3

View all 29 photos

Learn more about this property
Listing provided by:
Royal LePage Westside
MLS® number:
R3047896
Agent:
Nick Parente
*Indicates required field
Name is required
Email is required
Please enter a valid phone number (e.g., 416-111-1111).

About

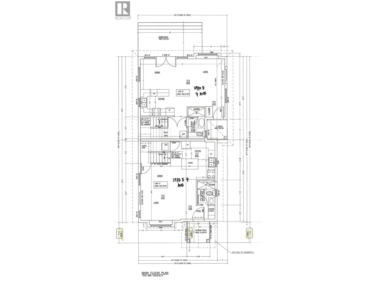
View! Craftsman Style Custom rear duplex on a wonderful full bloom "Cherry Blossom" street. Great location for all & young families alike. Schools, Shopping, Bus, Skytrain w/in 10 minute walk! Open concept main living area gives versatility for personal interior design with access to a huge (19'x10') sunny rear view deck w/gas hook up. Much thoughtful detailing is evident throughout the three levels with a bonus of 549sf of storage (crawl space) not included in sq.ft. Home offers 3 lrg bedrooms, accommodates regular size furniture & 4 full washrooms! Top lvl. bedroom showcases captivating-unobstructed 180 degree views! Fine features; Private yard, quartz counters, heat pump, designer tiles, custom mill work, B/I entertainment units. This home has a lot to offer in this great city of ours! (id:27476)

Property Highlights

MLS® Number
R3047896
Type
Single Family
Maintenance Fee
0.00
Ownership Type
Strata
Land Size
4026 sqft
Parking Space Total
1

Building

Building Type
Duplex
Square Footage
1461 sqft
Bathrooms Total
4
Bedrooms Total
3
Amenities
Laundry - In Suite Recreation, Shopping
Fireplace Present
No
Basement Type
Crawl space (Unknown)
Basement Features
Unknown
Building Heating Type
Heat Pump, Hot Water, Radiant heat
Heating Fuel
Building Cooling Type
Air Conditioned

Location

Street Spotlight - For sale