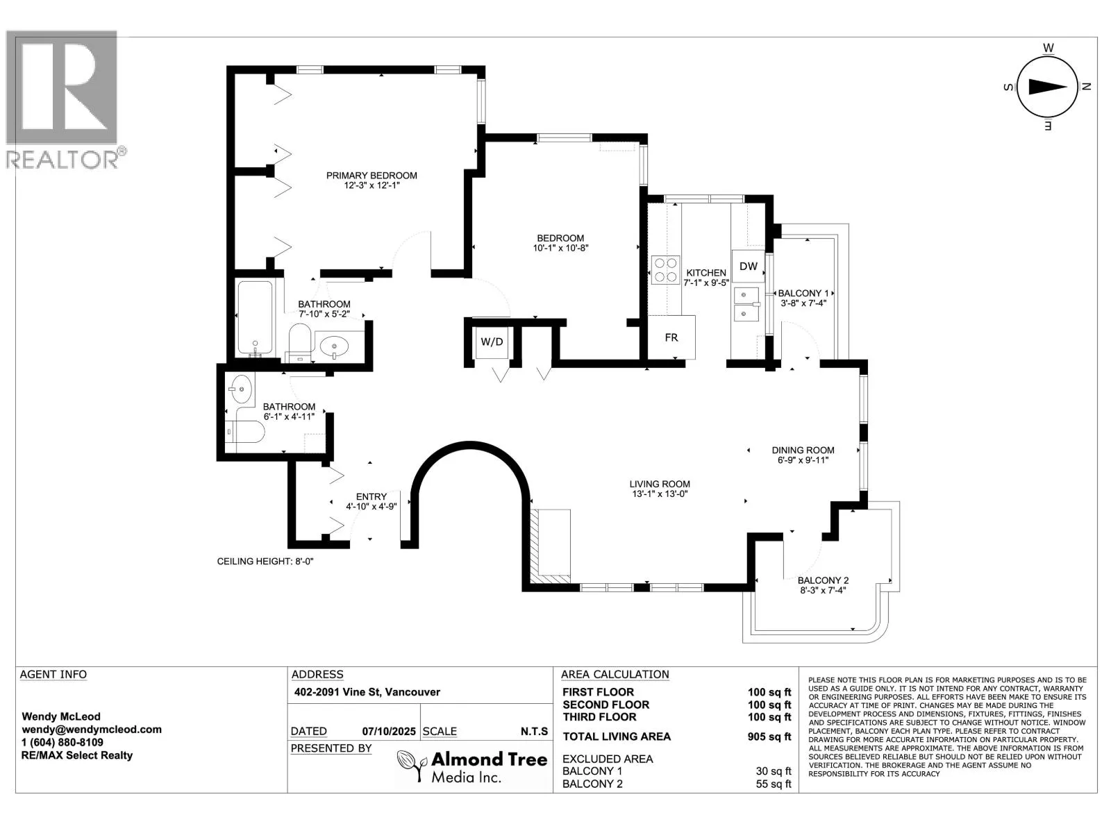
402 Ph2 2091 Vine Street, Vancouver, British Columbia V6K 4P7

Listed for:
$948,000
2 beds
2 baths
Listed 43 days ago
Apartment for rent: 402 Ph2 2091 Vine Street, Vancouver, British Columbia V6K 4P7

View all 19 photos

Learn more about this property
Listing provided by:
RE/MAX Select Realty
MLS® number:
R3056466
Agent:
Wendy Mcleod
*Indicates required field
Name is required
Email is required
Please enter a valid phone number (e.g., 416-111-1111).

About

PENTHOUSE Living in the Heart of Kits! Experience boutique penthouse living on a beautiful tree-lined street, just steps to the best of Kitsilano-cafés, restaurants, shops, grocery stores, Kits Beach, and the upcoming Broadway Subway line. This bright and spacious 2-bed, 1.5 bath home offers large rooms, oversized closets, and airy layout streaming with natural light. Enjoy North Shore mountain views from your generous living area and cozy up by the gas fireplace on cool evenings. The bright kitchen and dining area have two private balconies, perfect for morning coffee or sunset views. Situated in a rainscreened 8-unit building, offering a true sense of community. Complete with 2 parking stalls and 1 storage locker. A perfect home for upsizers or downsizers alike-penthouse living at its best (id:27476)

Property Highlights

MLS® Number
R3056466
Type
Single Family
Maintenance Fee
881.61
Ownership Type
Strata
Parking Space Total
2

Building

Building Type
Apartment
Square Footage
905 sqft
Bathrooms Total
2
Bedrooms Total
2
Amenities
Laundry - In Suite Shopping
Fireplace Present
No
Basement Type
Basement Features
Building Heating Type
Baseboard heaters
Heating Fuel
Electric
Building Cooling Type

Location

Street Spotlight - For sale