4666 Earles Street, Vancouver, British Columbia V5R 3R2

Listed for:
$2,388,888
7 beds
6 baths
Listed 42 days ago
House for rent: 4666 Earles Street, Vancouver, British Columbia V5R 3R2

View all 21 photos

Learn more about this property
Listing provided by:
Royal Pacific Tri-Cities Realty
MLS® number:
R3056462
Agent:
Rekha R Raman
*Indicates required field
Name is required
Email is required
Please enter a valid phone number (e.g., 416-111-1111).

About

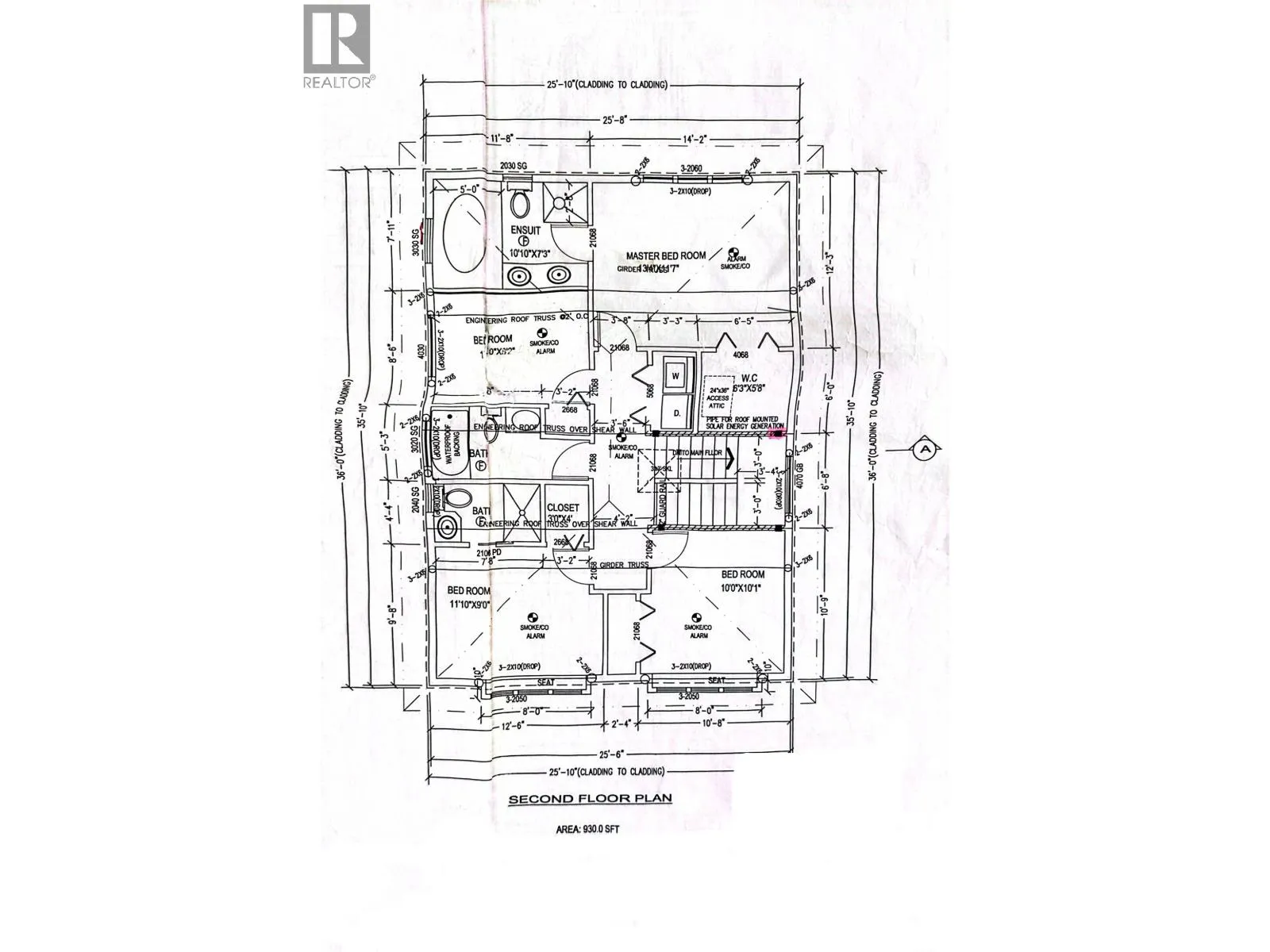
Best location! Steps from 29th skytrain station, Windermere Secondary and Norquay Elementary, this 7bdrm,6bth like new, home comes with a large backyard and spice kitchen! Above floor has 4bdrm 3bth, laundry, and sweeping mountain, city and sunset views. Spacious living room on main floor, 1 full bath with open concept kitchen and dining room spills into the large patio that leads to fenced backyard ready for gardening, playing etc. It has a separate 3bdrm, 2bth mortgage helper. Priced to sell! Its a must see. "Seller is motivated - bring your offer!" OPEN HOUSE SATURDAY NOV 16 from 2 to 4PM (id:27476)

Property Highlights

MLS® Number
R3056462
Type
Single Family
Ownership Type
Freehold
Land Size
4389 sqft
Parking Space Total
2

Building

Building Type
House
Square Footage
2677 sqft
Bathrooms Total
6
Bedrooms Total
7
Amenities
Laundry - In Suite Recreation, Shopping
Fireplace Present
Yes
Basement Type
Full (Finished)
Basement Features
Separate entrance
Building Heating Type
Radiant heat
Heating Fuel
Electric
Building Cooling Type
Air Conditioned

Location