406 3050 Kingsway, Vancouver, British Columbia V5R 5J7

Listed for:
$709,900
2 beds
2 baths
Listed 132 days ago
Apartment for rent: 406 3050 Kingsway, Vancouver, British Columbia V5R 5J7

View all 32 photos

About

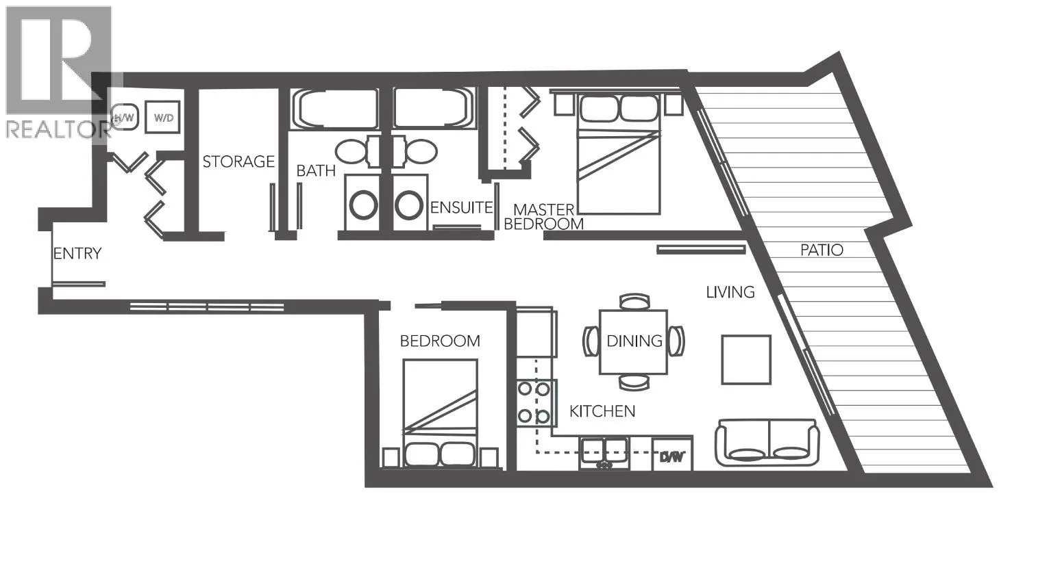
Welcome to RUPERT by Kaval, in the heart of vibrant Collingwood. This top-floor, end-unit, true corner home offers the perfect combination of modern comfort and everyday convenience. Featuring 2 bedrooms and a den, it´s ideal for a home office, kids´ playroom, or creative space. The sleek, contemporary design includes designer paint colours, stainless steel appliances, quartz countertops, and over-height ceilings, creating a bright and open atmosphere. Located steps away from schools, shopping, cafes, banks, grocery stores, and restaurants, with easy access to Joyce SkyTrain and major bus routes, you´ll enjoy seamless connectivity throughout Vancouver. Experience boutique living at its best-modern design, unbeatable location, and a home that truly stands out. (id:27476)

Property Highlights

MLS® Number
R3060344
Type
Single Family
Maintenance Fee
208.71
Ownership Type
Strata
Parking Space Total
1

Building

Building Type
Apartment
Square Footage
729 sqft
Bathrooms Total
2
Bedrooms Total
2
Amenities
Laundry - In Suite Recreation, Shopping
Fireplace Present
No
Basement Type
Basement Features
Building Heating Type
Baseboard heaters
Heating Fuel
Electric
Building Cooling Type

Location

Learn more about this property
Listing provided by:
Royal LePage Global Force Realty
MLS® number:
R3060344
Agent:
Harman Johal
*Indicates required field
Name is required
Email is required
Please enter a valid phone number (e.g., 416-111-1111).

Street Spotlight - For sale