17 1861 Beach Avenue, Vancouver, British Columbia V6G 1Z1

Listed for:
$7,200,000
3 beds
3 baths
Listed 31 days ago
Apartment for rent: 17 1861 Beach Avenue, Vancouver, British Columbia V6G 1Z1

View all 40 photos

Learn more about this property
Listing provided by:
Oakwyn Realty Ltd.
MLS® number:
R3064264
Agent:
Henrietta Tan
*Indicates required field
Name is required
Email is required
Please enter a valid phone number (e.g., 416-111-1111).

About

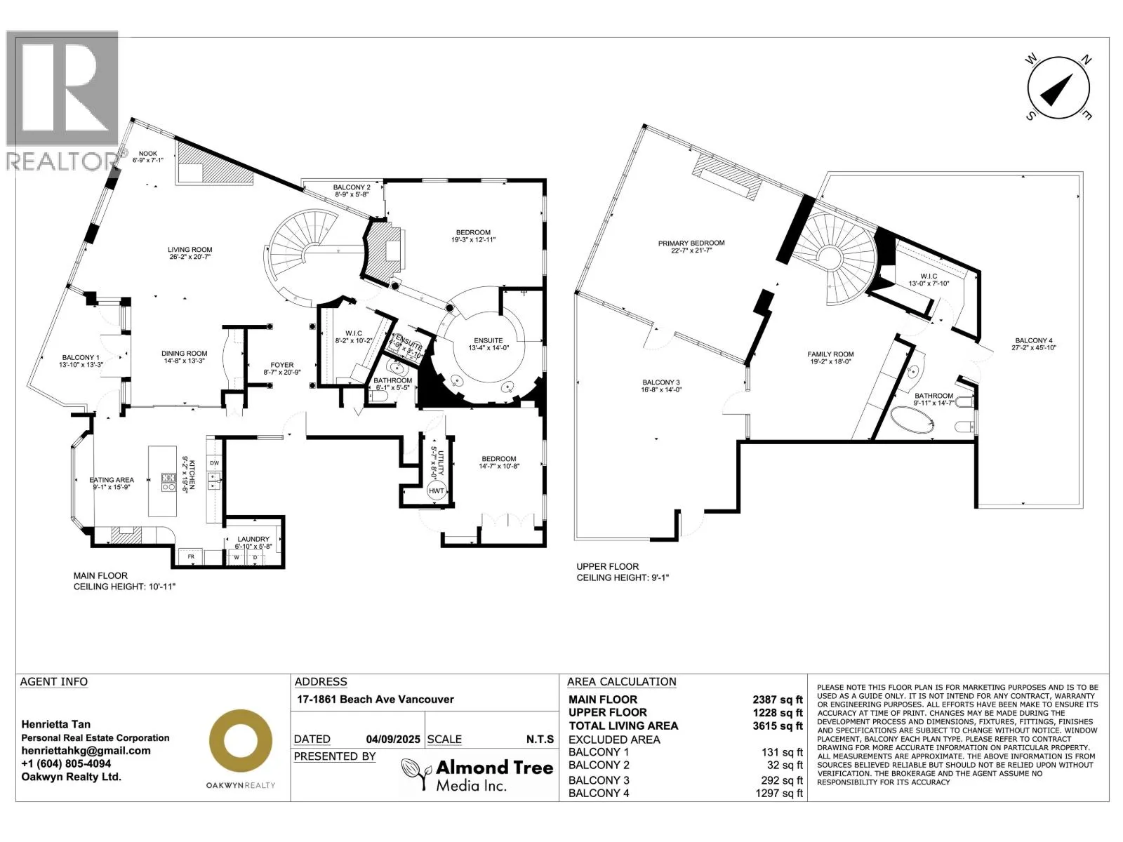
Penthouse perfection in English Bay - This massive 3,621 square ft 2-level Waterfront Penthouse in Vancouver´s iconic Sylvia Tower offers unmatched luxury. With 1 suite per floor and private elevator access, this residence features a timeless, functional layout, floor-to-ceiling windows, soaring ceilings, and expansive terraces for seamless indoor-outdoor living. Enjoy jaw-dropping, Unobstructed Panoramic Ocean, mountain, and city views-plus front-row seats for fireworks & Magnificent Sunset. Comes with 2 parking stalls and storage. Matterport: https://www.almondtreemedia.ca/17-1861-beach-ave-vancouver.html Book your private viewing now! (id:27476)

Property Highlights

MLS® Number
R3064264
Type
Single Family
Maintenance Fee
2312.19
Ownership Type
Strata
Parking Space Total
2

Building

Building Type
Apartment
Square Footage
3621 sqft
Bathrooms Total
3
Bedrooms Total
3
Fireplace Present
No
Basement Type
Basement Features
Building Heating Type
Baseboard heaters
Heating Fuel
Building Cooling Type

Location

Street Spotlight - For sale