305 505 W 30th Avenue, Vancouver, British Columbia V5Z 0G4

Listed for:
$1,540,000
1 beds
2 baths
Listed 32 days ago
Apartment for rent: 305 505 W 30th Avenue, Vancouver, British Columbia V5Z 0G4

View all 29 photos

Learn more about this property
Listing provided by:
RA Realty Alliance Inc.
MLS® number:
R3064842
Agent:
Calvin Cheng
*Indicates required field
Name is required
Email is required
Please enter a valid phone number (e.g., 416-111-1111).

About

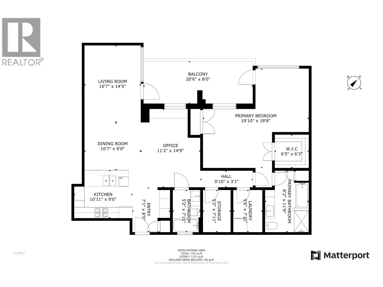
Welcome to 305-505 W 30th Ave, a rare gem in Vancouver´s prestigious Empire at QE Park by Intergulf. This home is the only unit with this custom layout in the building, was custom designed by the developer by combining 2 bedrooms+den to this Luxury and spacious 1 bedroom+den 1,251 sqft residence.It offers an expansive floorplan with a spacious master suite, spa-inspired ensuite, and oversized den. Spectacular N/W-facing views of DT and North Shore mountains through floor-to-ceiling windows. Chef´s kitchen boasts integrated Miele appliances, stone countertops, and a gas cooktop. Additional features include central A/C, hardwood floors,2 parkings, & access to premium amenities. Steps from Queen Elizabeth Park, Hillcrest Centre, Canada Line and top schools-urban living at its finest. (id:27476)

Property Highlights

MLS® Number
R3064842
Type
Single Family
Maintenance Fee
985.43
Ownership Type
Strata
Parking Space Total
2

Building

Building Type
Apartment
Square Footage
1251 sqft
Bathrooms Total
2
Bedrooms Total
1
Amenities
Exercise Centre, Laundry - In Suite Playground
Fireplace Present
No
Basement Type
Basement Features
Building Heating Type
Forced air, Heat Pump
Heating Fuel
Building Cooling Type
Air Conditioned

Location

Street Spotlight - For sale