312 1503 West 65th Avenue, Vancouver, British Columbia V6P 6Y8

Listed for:
$499,000
1 beds
1 baths
Listed 13 days ago
Apartment for rent: 312 1503 West 65th Avenue, Vancouver, British Columbia V6P 6Y8

View all 25 photos

Learn more about this property
Listing provided by:
Nu Stream Realty Inc.
MLS® number:
R3065658
Agent:
Tracy Niu
*Indicates required field
Name is required
Email is required
Please enter a valid phone number (e.g., 416-111-1111).

About

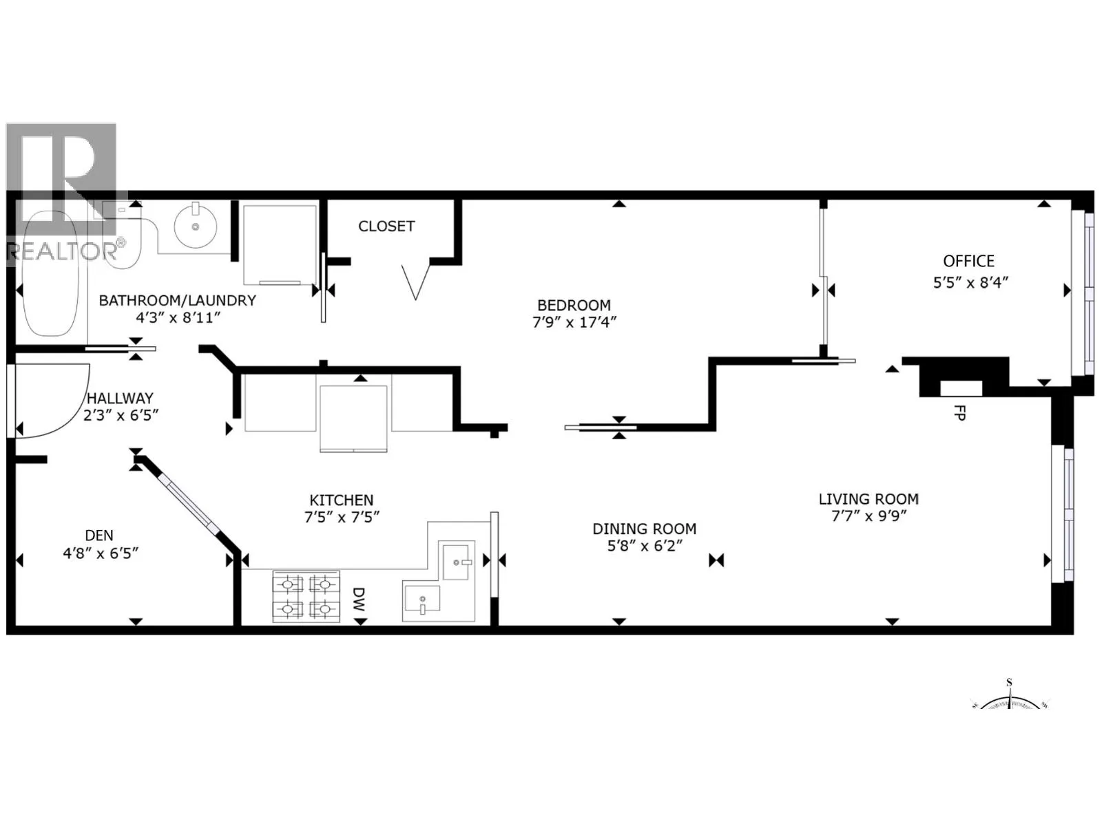
LOCATION! Welcome to The Soho, a boutique low-rise in Vancouver´s desirable Westside. This well-maintained 1 Bedroom + Den+Office unit offers a functional layout with a peaceful quiet street outlook, ideal for comfortable urban living. The open-concept living and dining area features oversized windows for ample natural light. Separated spacious den&office room is perfect for a home office or extra storage. Enjoy the included 1 secured parking stall. Owner did new paint in 2025. Located steps from bus, shopping, parks, and amenities. Easy access to UBC, Langara College, Downtown & Richmond. Perfect for first-time buyers or investors! Catchment schools:Elementary- Dr. R.E. McKechnie Elementary, Secondary- Magee Secondary, French Immersion -Sir Winston Churchill Secondary (id:27476)

Property Highlights

MLS® Number
R3065658
Type
Single Family
Maintenance Fee
0.00
Ownership Type
Strata

Building

Building Type
Apartment
Square Footage
589 sqft
Bathrooms Total
1
Bedrooms Total
1
Fireplace Present
No
Basement Type
Full (Unknown)
Basement Features
Unknown
Building Heating Type
Baseboard heaters
Heating Fuel
Building Cooling Type

Location