8088 Laurel Street, Vancouver, British Columbia V6P 3V1

Listed for:
$1,993,700
6 beds
5 baths
Listed 2 days ago
Duplex for rent: 8088 Laurel Street, Vancouver, British Columbia V6P 3V1

View all 20 photos

Learn more about this property
Listing provided by:
RE/MAX Crest Realty
MLS® number:
R3067960
Agent:
Cedric Zhang
*Indicates required field
Name is required
Email is required
Please enter a valid phone number (e.g., 416-111-1111).

About

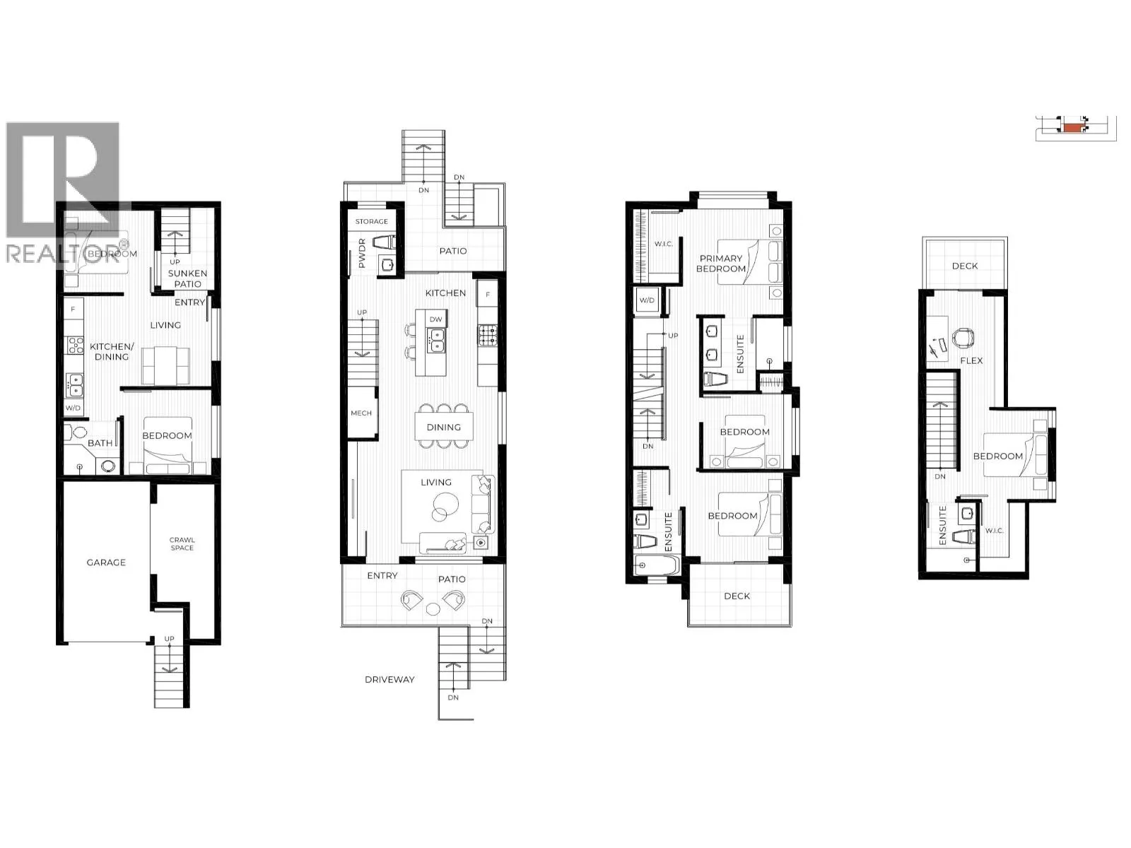
Nov 22&23 Open House 2-4 pm. Sat+Sun. NO strata fee! a Curated collection of bespoke Duplex homes on Vancouver's tree-lined Marpole neighbourhood. Impeccable space design enables spacious interiors for living. Smart Home system equipped entire community, together with spa-like bathrooms, air Conditioner and floor heating and more. Show by appointment. (id:27476)

Property Highlights

MLS® Number
R3067960
Type
Single Family
Maintenance Fee
0.00
Ownership Type
Strata
Land Size
5360.68 sqft
Parking Space Total
1

Building

Building Type
Duplex
Square Footage
2140 sqft
Bathrooms Total
5
Bedrooms Total
6
Amenities
Guest Suite, Laundry - In Suite Golf Course, Recreation, Shopping
Fireplace Present
No
Basement Type
Unknown (Finished)
Basement Features
Unknown
Building Heating Type
Heat Pump, Radiant heat
Heating Fuel
Electric
Building Cooling Type
Air Conditioned

Location

Street Spotlight - For sale