312 2118 W 15th Avenue, Vancouver, British Columbia V6K 2Y5

Listed for:
$1,599,000
2 beds
2 baths
Listed 21 days ago
Apartment for rent: 312 2118 W 15th Avenue, Vancouver, British Columbia V6K 2Y5

View all 38 photos

Learn more about this property
Listing provided by:
TRG The Residential Group Realty
MLS® number:
R3073201
Agent:
Ana Domingos
*Indicates required field
Name is required
Email is required
Please enter a valid phone number (e.g., 416-111-1111).

About

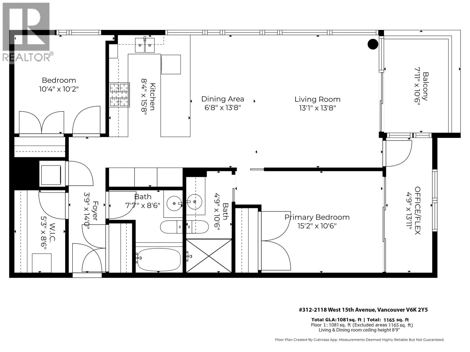
Welcome to THE RIDGE - a pet friendly building where luxury meets function in this lovely, air-conditioned SE CORNER 2 bdrm & den unit, 2-bath concrete home. Thoughtfully designed with zero wasted space, this residence showcases Cressey's renowned craftsmanship and attention to detail. Step into your chef's kitchen featuring Wolf & Sub-Zero appliances, marble/granite countertops and backsplash, and sleek European cabinetry. The 2 spa-inspired bathrooms include heated marble floors, rain showers and elegant vanities. Having lovely floor-to-ceiling windows, and wide-plank eng hardwood throughout, the home feels bright, open, and sophisticated. Additional features include roller blinds, two side-by-side parking stalls, large storage locker & insuite storage too! Showings by appointment. (id:27476)

Property Highlights

MLS® Number
R3073201
Type
Single Family
Maintenance Fee
876.26
Ownership Type
Strata
Parking Space Total
2

Building

Building Type
Apartment
Square Footage
1081 sqft
Bathrooms Total
2
Bedrooms Total
2
Amenities
Exercise Centre, Laundry - In Suite Recreation, Shopping
Fireplace Present
No
Basement Type
Basement Features
Building Heating Type
Heat Pump
Heating Fuel
Building Cooling Type
Air Conditioned

Location

Street Spotlight - For sale