1620 Mclean Drive, Vancouver, British Columbia V5L 3P3

Listed for:
$1,584,000
6 beds
3 baths
Listed 49 days ago
House for rent: 1620 Mclean Drive, Vancouver, British Columbia V5L 3P3

View all 40 photos

About

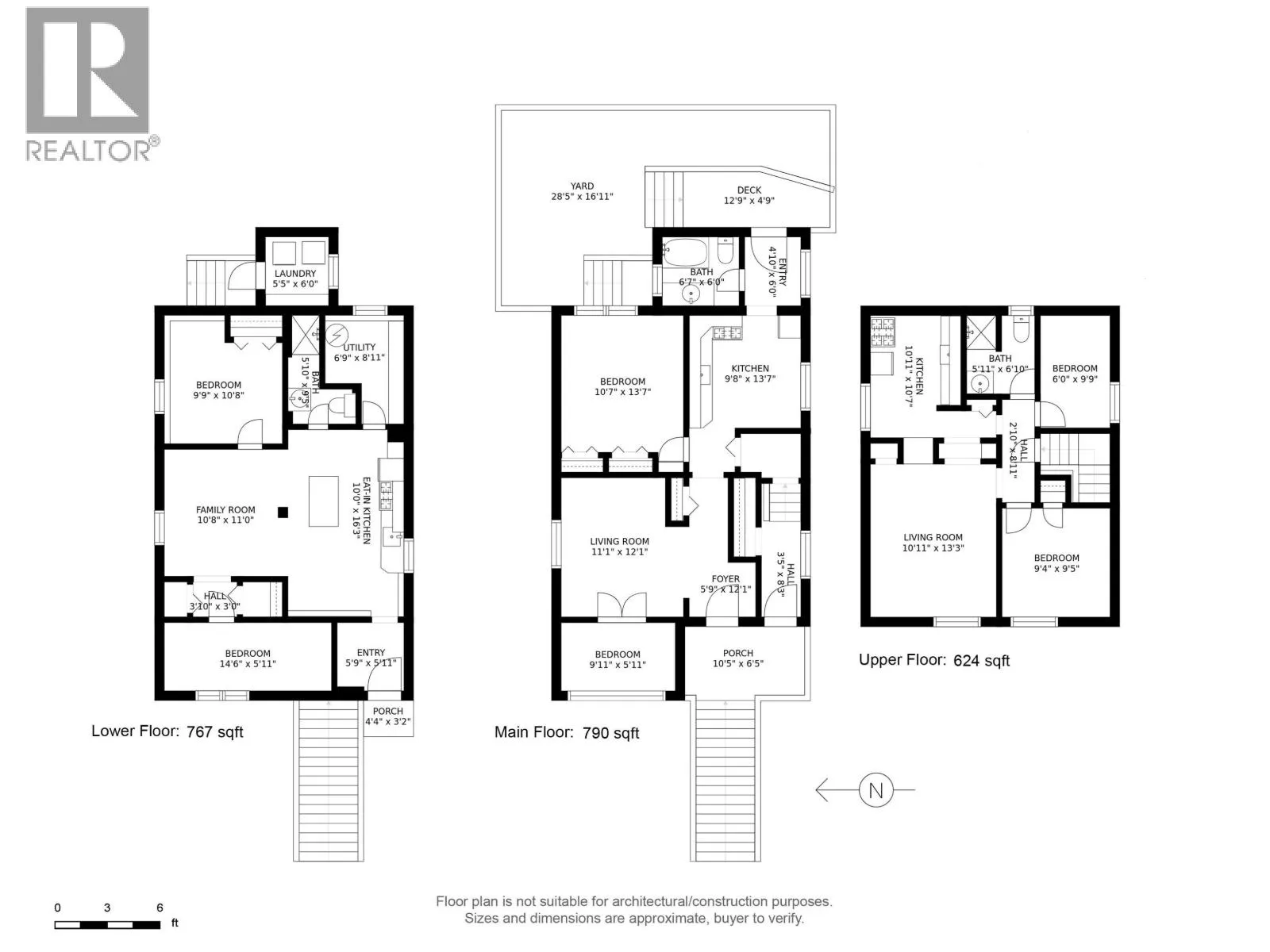
Fantastic opportunity to own, live, and earn at 1620 Mclean Drive in Grandview-Woodland (Commercial Drive). This heritage-style character home is fully renovated with modern finishes and three self-contained 2-bedroom suites-perfect for Airbnb or long-term rental income. Exceptional investment potential. Upgrades include new furnace (Nov 2025), new insulation, custom insulated windows, quartz countertops, new cabinetry, flooring, and fresh paint (2022). Private laundry, fully fenced backyard, and secure gated entry. Walk to cafés, shops, transit, SkyTrain, and East Van parks. SHOWING: Sat Feb 28, 2:45 - 3:00pm (id:27476)

Property Highlights

MLS® Number
R3090814
Type
Single Family
Ownership Type
Freehold
Land Size
1830 sqft

Building

Building Type
House
Square Footage
2181 sqft
Bathrooms Total
3
Bedrooms Total
6
Fireplace Present
No
Basement Type
Unknown (Finished)
Basement Features
Unknown
Building Heating Type
Forced air
Heating Fuel
Building Cooling Type

Location

Learn more about this property
Listing provided by:
Oakwyn Realty Ltd.
MLS® number:
R3090814
Agent:
Jacob Krause
*Indicates required field
Name is required
Email is required
Please enter a valid phone number (e.g., 416-111-1111).