2761 Guelph Street, Vancouver, British Columbia V5T 3P6

Listed for:
$1,299,990
3 beds
2 baths
Listed 37 days ago
Row / Townhouse for rent: 2761 Guelph Street, Vancouver, British Columbia V5T 3P6

View all 30 photos

About

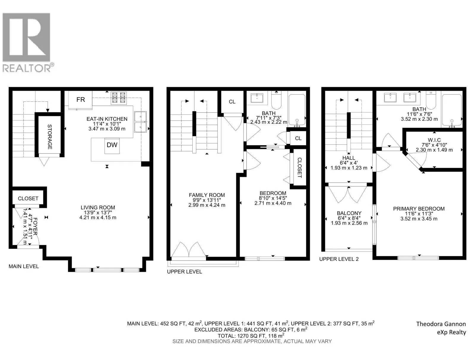
Welcome to The Block, a family-friendly community in the heart of Mt Pleasant-right across from Nightingale Elementary. This inviting & well-maintained 2 bedroom plus flex room townhome offers space to grow, with the flex room serving as a home office or easily converted to a 3rd bedroom. The open-concept main floor features a stylish kitchen with S/S appliances, gas range & granite counters. Upstairs is a bedroom plus flex, and the top floor hosts the serene primary suite with W/I closet & balcony. Quiet and secure, facing the inner courtyard, this home includes 2 parking & a locker. The highlight? An INCREDIBLE rooftop deck with amazing city & mountain views-perfect for relaxing or entertaining. Steps to Main St shops, restaurants, buses & future Skytrain. OPEN SAT, APR 4, 2-4 PM. (id:27476)

Property Highlights

MLS® Number
R3092973
Type
Single Family
Maintenance Fee
497.80
Ownership Type
Strata
Parking Space Total
2

Building

Building Type
Row / Townhouse
Square Footage
1270 sqft
Bathrooms Total
2
Bedrooms Total
3
Amenities
Laundry - In Suite
Fireplace Present
No
Basement Type
Basement Features
Building Heating Type
Baseboard heaters
Heating Fuel
Electric
Building Cooling Type

Location

Learn more about this property
Listing provided by:
eXp Realty
MLS® number:
R3092973
Agent:
Theodora Gannon
*Indicates required field
Name is required
Email is required
Please enter a valid phone number (e.g., 416-111-1111).