804 4888 Nanaimo Street, Vancouver, British Columbia V5N 0B5

Listed for:
$588,000
1 beds
1 baths
Listed 20 days ago
Apartment for rent: 804 4888 Nanaimo Street, Vancouver, British Columbia V5N 0B5

View all 34 photos

About

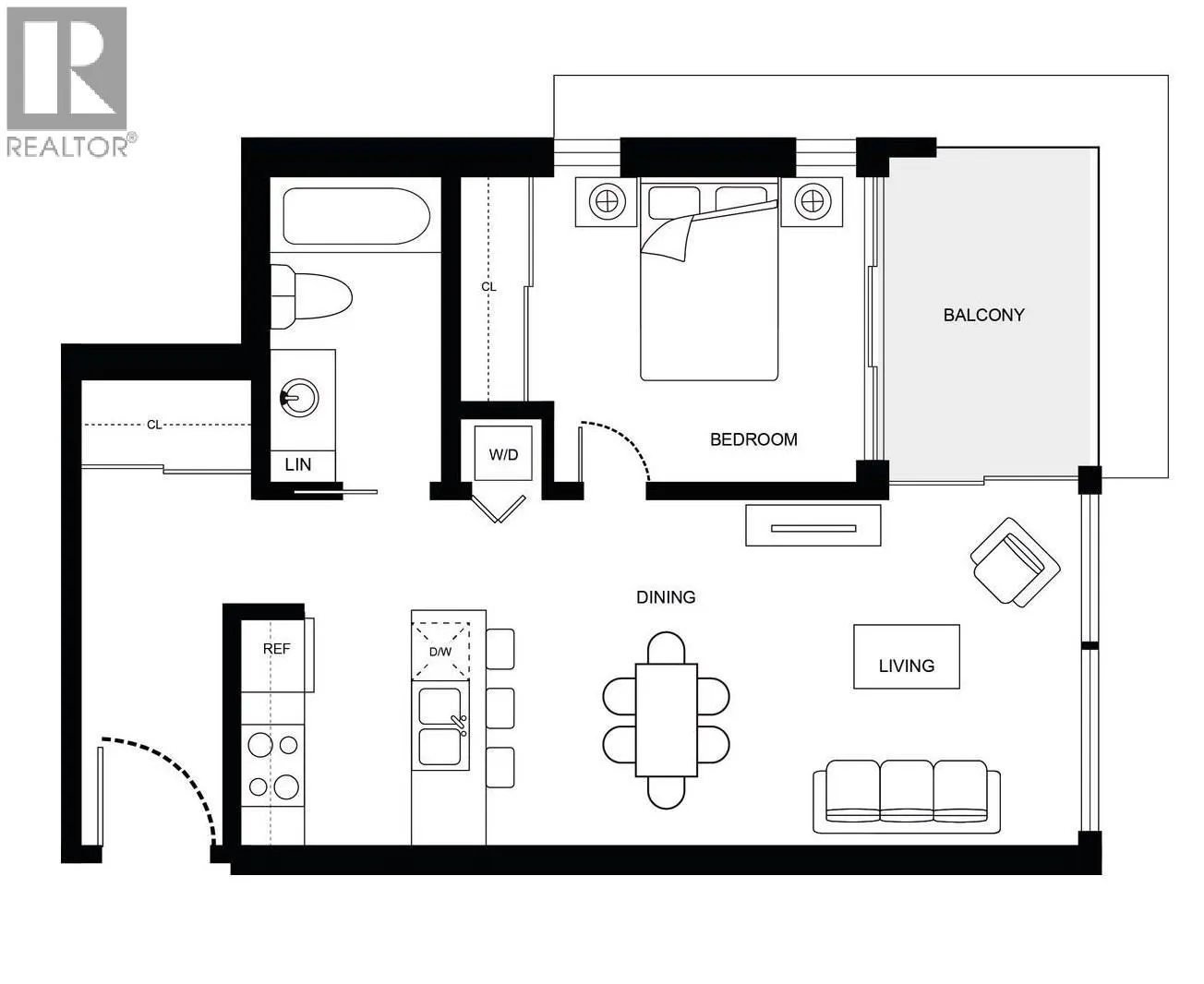
Bright CORNER unit in the coveted "Eldorado". Rarely does a 1-bed condo offer so much but this one checks ALL the boxes: 581 square ft spacious floorplan, open kitchen, S/S appliances, GAS stove. Bedroom with real windows; Bathroom has generous counterspace & soaker tub. Large covered balcony with private outlook onto city and trees. Concrete building, quiet side of building, 1 parking & 1 locker. Common bike room plus private bike lockers ($15/mo). Freshly painted, professionally cleaned, immaculate, & move-in ready. Pet-friendly. Check and compare - this one has it all. Super location, too. Walk Score of 82: Close to shopping, T&T, restaurants, parks, & skytrain. Incredible lifestyle. Be Quick! (id:27476)

Property Highlights

MLS® Number
R3099438
Type
Single Family
Maintenance Fee
388.49
Ownership Type
Strata
Parking Space Total
1

Building

Building Type
Apartment
Square Footage
581 sqft
Bathrooms Total
1
Bedrooms Total
1
Amenities
Laundry - In Suite Shopping
Fireplace Present
No
Basement Type
Basement Features
Building Heating Type
Baseboard heaters
Heating Fuel
Electric
Building Cooling Type

Location

Learn more about this property
Listing provided by:
Oakwyn Realty Encore
MLS® number:
R3099438
Agent:
Tracey Clermont
*Indicates required field
Name is required
Email is required
Please enter a valid phone number (e.g., 416-111-1111).

Street Spotlight - For sale