109 817 W 28 Avenue, Vancouver, British Columbia V5Z 2H6

Listed for:
$749,900
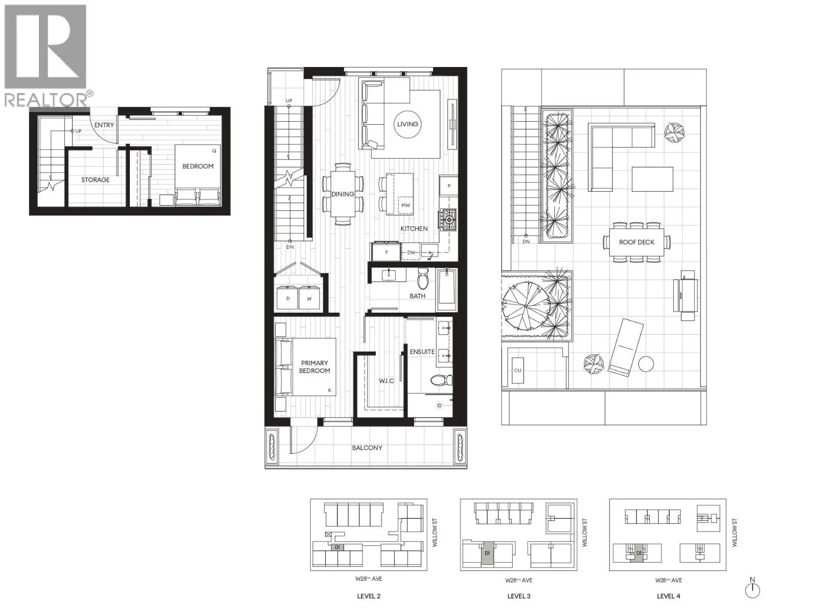
1 beds
1 baths
Listed 11 days ago
Row / Townhouse for rent: 109 817 W 28 Avenue, Vancouver, British Columbia V5Z 2H6

View all 13 photos

About

Experience elevated living in this impeccably crafted 1-bedroom + expansive den residence, where Italian-designed Aran Cucine cabinetry meets world-class Miele appliances. Defined by a rare 25 ft width and dramatic two-sided exposure, the home is flooded with natural light, creating an airy, open ambiance rarely found in condominium living. Perfectly positioned in one of the city´s most desirable locations, just steps from premier shopping, fine dining, parks, and transit. Open House Wed-Sun From 12 PM to 5 PM. The presentation Center is at 2963 Cambie Street-Vancouver. (id:27476)

Property Highlights

MLS® Number
R3107175
Type
Single Family
Maintenance Fee
225.70
Ownership Type
Strata
Parking Space Total
1

Building

Building Type
Row / Townhouse
Square Footage
610 sqft
Bathrooms Total
1
Bedrooms Total
1
Amenities
Laundry - In Suite Playground
Fireplace Present
No
Basement Type
Unknown (Finished)
Basement Features
Unknown
Building Heating Type
Heat Pump
Heating Fuel
Building Cooling Type
Air Conditioned

Location

Learn more about this property
Listing provided by:
Salus Realty Inc
MLS® number:
R3107175
Agent:
Farzin Ahmadi
*Indicates required field
Name is required
Email is required
Please enter a valid phone number (e.g., 416-111-1111).