6924 / 6926 Old Kamloops Road, Vernon, British Columbia V1H 1W1

Listed for:
$2,449,000
0 beds
0 baths
Listed 88 days ago
Residential Commercial Mix for rent: 6924 / 6926 Old Kamloops Road, Vernon, British Columbia V1H 1W1

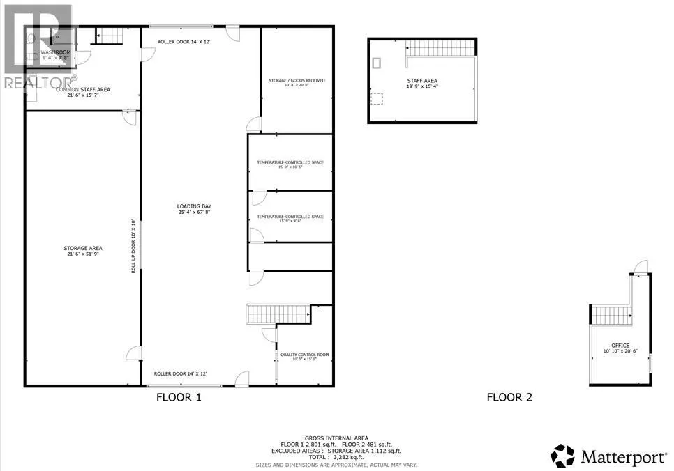
View all 52 photos

About

A truly unique opportunity in the North Okanagan! Just minutes from downtown Vernon, this 23-acre property spans two separately titled parcels perched above Swan Lake, surrounded by estate homes and rolling farmland. Enjoy panoramic valley and lake views, exceptional privacy, and the flexibility to bring your rural vision to life. Located within the Agricultural Land Reserve (ALR), this property offers endless possibilities from a custom country estate or equestrian setup to a thriving farm, orchard, or Agri-tourism venture. No building scheme means you have the freedom to design and build as you wish. The property is well-serviced with municipal agricultural water, domestic water available at the lot line, a new 1,000-gallon septic system, and 600-amp electrical service ready to support intensive agricultural, commercial, or residential uses. At the heart of the acreage sits a beautifully renovated 4,500+ sq.ft. building, ideal for business operations, event space, or agricultural processing. A separate 1,250 sq.ft. custom-built production facility (constructed from four 40-ft high cubes) provides secure, temperature-controlled space perfect for microgreens, specialty crops, or food production. This is a rare combination of prime location, established infrastructure, and development flexibility all just five minutes from Vernon’s shops, schools, and amenities. Vacant and available for quick possession, this property is ready for your next chapter to take root. (id:27476)

Property Highlights

MLS® Number
10366349
Type
Other
Ownership Type
Freehold
Land Size
23 ac|10 - 50 acres
Parking Space Total
20

Building

Building Type
Residential Commercial Mix
Square Footage
4500 sqft
Amenities
Golf Nearby, Park, Recreation, Schools, Shopping, Ski area
Exterior Finish
Metal
Fireplace Present
No
Basement Type
Basement Features
Building Heating Type
Forced air, Other, See remarks
Heating Fuel
Building Cooling Type
Wall unit

Utilities

Water
Municipal water

Location

Learn more about this property
Listing provided by:
Royal LePage Downtown Realty
MLS® number:
10366349
Agent:
Thea Mclaughlin
*Indicates required field
Name is required
Email is required
Please enter a valid phone number (e.g., 416-111-1111).