1000 Mt. Robson Place Unit# 18, Vernon, British Columbia V1B 4G2

Listed for:
$749,000
3 beds
3 baths
Listed 81 days ago
Row / Townhouse for rent: 1000 Mt. Robson Place Unit# 18, Vernon, British Columbia V1B 4G2

View all 50 photos

About

Fantastic newer 3 bedroom 3 bathroom townhouse with nice views has so much to offer! Oversized double garage for all the toys plus 2 parking spaces out front. Main living floor has an open concept kitchen and living room area leading to the large covered deck to soak in the views and Okanagan weather. Main floor also has a spare bedroom with access to the backyard area. Top floor features the master bedroom with large ensuite, closet, and another deck to see down to the lake. Top floor also has second bedroom also with own ensuite. Great Middleton Mountain location near parks, trails, beaches, and all of Vernon's amenities! Pet By-Laws are 2 dogs (30"" to shoulder) or 2 cats or 1 of each. Quick possession possible! (id:27476)

Property Highlights

MLS® Number
10372464
Type
Single Family
Community Name
Infinity
Maintenance Fee
376.24
Ownership Type
Strata
Land Size
under 1 acre
Parking Space Total
4

Building

Building Type
Row / Townhouse
Storeys
3.00
Square Footage
1755 sqft
Bathrooms Total
3
Bedrooms Total
3
Exterior Finish
Brick, Other
Fireplace Present
Yes
Basement Type
Full
Basement Features
Building Heating Type
Forced air, See remarks
Heating Fuel
Building Cooling Type
Central air conditioning

Utilities

Water
Municipal water
Utility Sewer
Municipal sewage system

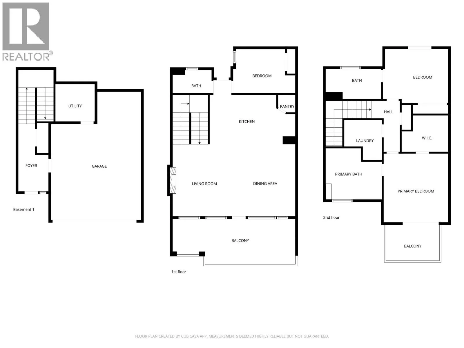
Room Layout

Living room
Second level
15' x 14'
Other
Second level
26' x 8'
Full bathroom
Second level
Measurements not available
Bedroom
Second level
10'6'' x 9'6''
Dining room
Second level
10'2'' x 14'
Kitchen
Second level
13'2'' x 9'6''
5pc Ensuite bath
Third level
11' x 6'1''
Bedroom
Third level
12'11'' x 11'
5pc Ensuite bath
Third level
9'2'' x 11'6''
Primary Bedroom
Third level
14'2'' x 13'5''
Other
Main level
18'11'' x 27'

Location

Learn more about this property
Listing provided by:
3 Percent Realty Inc.
MLS® number:
10372464
Agent:
Justin Vanderham
*Indicates required field
Name is required
Email is required
Please enter a valid phone number (e.g., 416-111-1111).

Street Spotlight - For sale