6 Conkor Hts, View Royal, British Columbia V9B 1T9

Listed for:
$1,849,900
3 beds
3 baths
Listed 156 days ago
House for rent: 6 Conkor Hts, View Royal, British Columbia V9B 1T9

View all 46 photos

Learn more about this property
Listing provided by:
RE/MAX Generation
MLS® number:
1000006
Agent:
Alex Burns
*Indicates required field
Name is required
Email is required
Please enter a valid phone number (e.g., 416-111-1111).

About

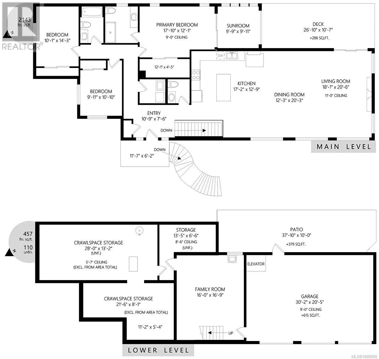
OPEN HOUSE SAT JUNE 14TH 1:30-3! Sophisticated Coastal Living with Water Views. Perched on a quiet cul-de-sac in one of View Royal’s most coveted neighbourhoods, this elegant residence offers the perfect blend of privacy, luxury, and location. Set on an expansive 11,000+ sq ft lot with tranquil water views, this custom-designed home is just minutes from downtown Victoria, the Westshore, and world-class amenities. The main level boasts soaring ceilings, rich hardwood floors, a stylish powder room, and a sunlit living space that opens onto a view deck—ideal for refined indoor-outdoor living. The primary suite is a true retreat with a spa-inspired ensuite and walk-in closet, complemented by two additional bedrooms and a full bath. Downstairs, enjoy a spacious rec room, abundant storage, and a triple car garage with elevator access. A covered outdoor patio invites year-round entertaining. Surrounded by scenic parks, beaches, and coastal trails—this is luxury West Coast living at its finest. (id:27476)

Property Highlights

MLS® Number
1000006
Type
Single Family
Maintenance Fee
0.00
Ownership Type
Strata
Land Size
11086 sqft
Parking Space Total
8

Building

Building Type
House
Square Footage
3325 sqft
Bathrooms Total
3
Bedrooms Total
3
Fireplace Present
Yes
Basement Type
Basement Features
Building Heating Type
Heat Pump
Heating Fuel
Building Cooling Type
Air Conditioned

Location