3758 Davidson Court Lot# Trails 66, West Kelowna, British Columbia V4T 0B1

Listed for:
$1,299,900
4 beds
4 baths
Listed 8 days ago
House for rent: 3758 Davidson Court Lot# Trails 66, West Kelowna, British Columbia V4T 0B1

View all 41 photos

About

Enjoy the stunning lake and city views from the deck of the Auburn Plan; this 4-bedroom plus den, two-storey home offers exceptional outdoor living. Enjoy a front deck ready for your hot tub AND an expansive rear deck, partly covered for shaded dining and partly open for lounging in the sun. Inside, the home offers an open design with lots of windows and very good storage areas like a walk through pantry and spacious mud/laundry room off the garage. Upstairs, you’ll find three spacious bedrooms and a loft area perfect as a bonus space. The main floor includes a versatile den ideal for a home office. The walkout lower level features a legal 1-bedroom suite with its own laundry and an additional family room belonging to the main house. Outside, the pool-sized backyard offers room for a custom pool, lounge area, or outdoor kitchen. With two parks nearby and schools within walking distance, this is a family-friendly location that balances convenience with natural beauty. Eligible for CMHC’s Eco Plus program, buyers can receive a 25% refund on mortgage insurance premiums for choosing an energy-efficient home. Price +GST. (id:27476)

Property Highlights

MLS® Number
10379524
Type
Single Family
Ownership Type
Freehold
Land Size
0.16 ac|under 1 acre
Parking Space Total
4

Building

Building Type
House
Storeys
2.00
Square Footage
3359 sqft
Bathrooms Total
4
Bedrooms Total
4
Amenities
Park, Recreation, Schools, Shopping
Exterior Finish
Stucco, Other
Fireplace Present
Yes
Basement Type
Full
Basement Features
Building Heating Type
Forced air, See remarks
Heating Fuel
Building Cooling Type
Central air conditioning

Utilities

Water
Municipal water
Utility Sewer
Municipal sewage system

Room Layout

4pc Bathroom
Second level
Measurements not available
Loft
Second level
9'0'' x 8'10''
Bedroom
Second level
10'10'' x 11'0''
Bedroom
Second level
10'11'' x 12'0''
4pc Ensuite bath
Second level
Measurements not available
Primary Bedroom
Second level
15'3'' x 11'11''
Other
Second level
20'3'' x 15'7''
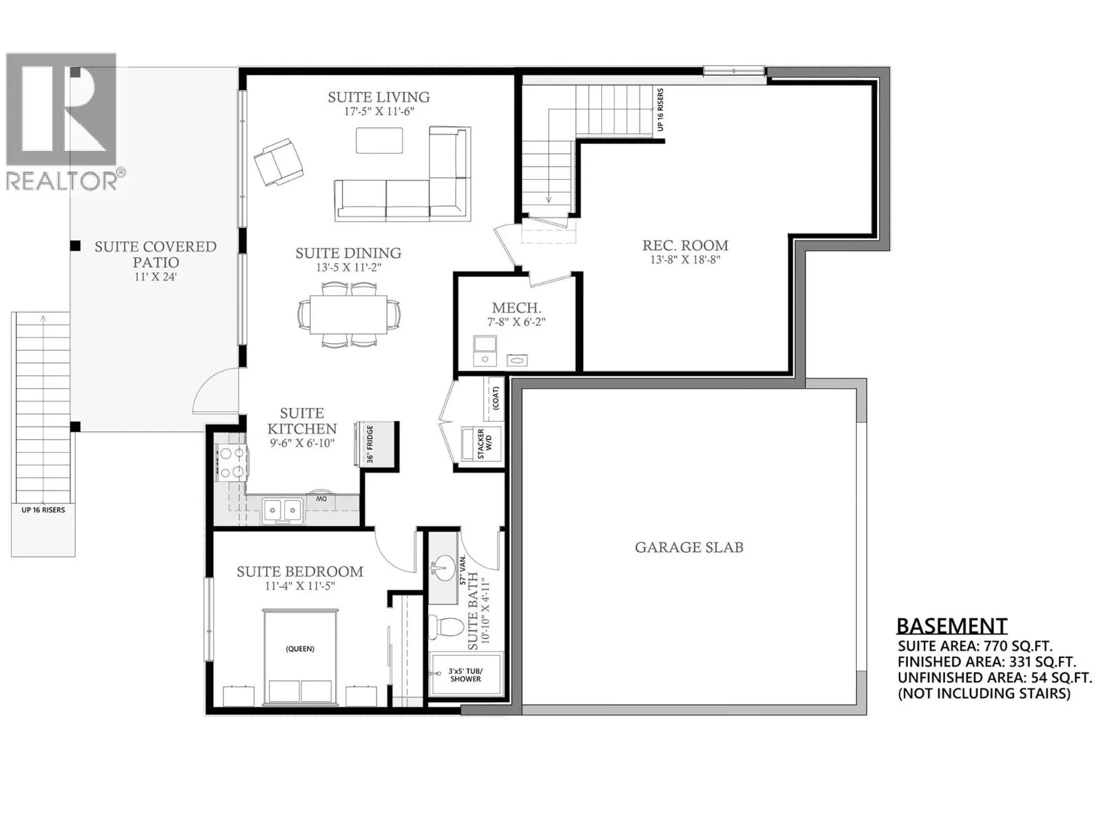
Family room
Basement
18'8'' x 13'8''
Living room
Basement
11'6'' x 17'5''
Dining room
Basement
9'4'' x 13'5''
Kitchen
Basement
8'8'' x 11'9''
3pc Bathroom
Basement
Measurements not available
Bedroom
Basement
11'5'' x 11'4''
Den
Main level
10'11'' x 10'3''
2pc Bathroom
Main level
Measurements not available
Great room
Main level
11'2'' x 17'5''
Dining room
Main level
10'1'' x 17'10''
Other
Main level
20'11'' x 21'11''
Laundry room
Main level
7'5'' x 14'0''
Kitchen
Main level
12'0'' x 19'8''
Pantry
Main level
7'7'' x 5'3''

Location

Learn more about this property
Listing provided by:
REMAX Kelowna
MLS® number:
10379524
Agent:
Keith Watts
*Indicates required field
Name is required
Email is required
Please enter a valid phone number (e.g., 416-111-1111).

Street Spotlight - For sale