14056 North Bluff Road, White Rock, British Columbia V4B 3C3

Listed for:
$1,498,000
3 beds
1 baths
Listed 108 days ago
House for rent: 14056 North Bluff Road, White Rock, British Columbia V4B 3C3

View all 5 photos

About

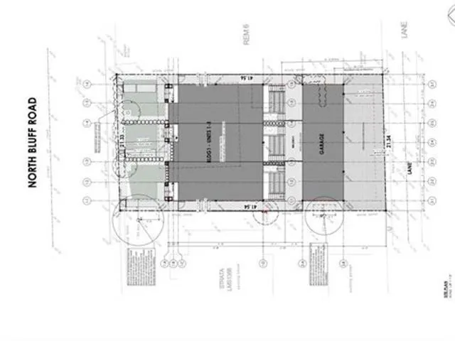
HOUSEPLEX Development Opportunity with up to 4 UNITS in White Rock! Situated on a rare lot allowing up to 4 units, this property features back lane access and a rooftop deck. Triplex plans have already been APPROVED by the City of White Rock. This prime development is just minutes from the iconic White Rock Pier and offers convenient access to transit. Additionally, it is located within the highly sought-after school catchment areas of Bayridge Elementary and Semiahmoo Secondary. Don't miss this exceptional investment opportunity! (id:27476)

Property Highlights

MLS® Number
R3084487
Type
Single Family
Ownership Type
Freehold
Land Size
9520 sqft
Parking Space Total
4

Building

Building Type
House
Square Footage
1230 sqft
Bathrooms Total
1
Bedrooms Total
3
Fireplace Present
No
Basement Type
None (Unknown)
Basement Features
Unknown
Building Heating Type
Forced air
Heating Fuel
Natural gas
Building Cooling Type

Utilities

Water
Municipal water
Utility Sewer
Sanitary sewer

Location

Learn more about this property
Listing provided by:
RE/MAX Colonial Pacific Realty
MLS® number:
R3084487
Agent:
Lena Xu
Phone:
*Indicates required field
Name is required
Email is required
Please enter a valid phone number (e.g., 416-111-1111).

Street Spotlight - For sale