119 Rosebank Crescent, Riverview, New Brunswick E1B 0R5

Listed for:
$460,000
2 beds
2 baths
Listed 213 days ago
House for rent: 119 Rosebank Crescent, Riverview, New Brunswick E1B 0R5

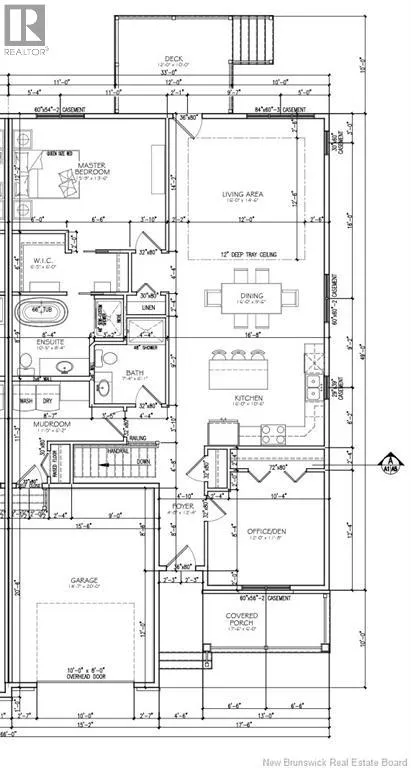
View all 8 photos

About

Pinewood Rd to Rosebank Cres When Viewing This Property on Realtor.ca Please Click on the Multimedia or Virtual Tour Link for More Property Info. Welcome to The Village at the Fairways, Riverview!! High Quality, executive semidetached homes. This is an exclusive community for Atlantic Canadas award-winning custom homebuilder. This is the closest residential development to Downtown Moncton!!!! Our pricing includes Very energy efficient units, with mini split heat pumps, Tray ceiling with crown molding, aluminum railings, Landscaped lawn and paved driveway, attached garage, 10 Year New Home Warranty. we also have a maintenance agreement in place so that all the lawn cutting, and snow removal happens at the same time, keeping the community beautiful! The main floor is perfect for entertaining with an open concept kitchen with island, dining room and living room, master bedroom with walk-in closet and en-suite bath, second bedroom, second full bathroom, mud room off the garage with laundry. This house plans is much larger than most at 1362 Square Feet and options are fully customizable for each customer. We also have options in this development for 2 car garages and fully customized floor plans. (id:27476)

Property Highlights

MLS® Number
NB128605
Type
Single Family
Maintenance Fee
130.00
Ownership Type
Freehold

Building

Building Type
House
Storeys
1.00
Square Footage
1362 sqft
Bathrooms Total
2
Bedrooms Above Ground
2
Bedrooms Total
2
Exterior Finish
Stone, Vinyl
Fireplace Present
No
Basement Type
Basement Features
Building Heating Type
Baseboard heaters, Heat Pump
Heating Fuel
Electric
Building Cooling Type
Air Conditioned, Heat Pump

Utilities

Water
Municipal water
Utility Sewer
Municipal sewage system

Room Layout

4pc Bathroom
Main level
12'0'' x 8'0''
Bedroom
Main level
19'0'' x 13'0''
Primary Bedroom
Main level
12'0'' x 8'0''
Dining room
Main level
15'0'' x 10'0''
Kitchen
Main level
15'0'' x 10'0''
Living room
Main level
15'0'' x 15'0''

Location

Learn more about this property
Listing provided by:
PG Direct Realty Ltd.
MLS® number:
NB128605
Agent:
Jonathan David
*Indicates required field
Name is required
Email is required
Please enter a valid phone number (e.g., 416-111-1111).