82 Germain Street Unit# A1, Saint John, New Brunswick E2L 2E7

Listed for:
$25
0 beds
0 baths
Listed 183 days ago
82 Germain Street Unit# A1, Saint John, New Brunswick E2L 2E7

View all 27 photos

Learn more about this property
Listing provided by:
MLS® number:
NB118906
Agent:
Bob Mcvicar
*Indicates required field
Name is required
Email is required
Please enter a valid phone number (e.g., 416-111-1111).

About

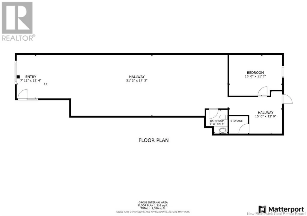
3 doors up Germain from King. LEASE this high profile storefront unit on Saint John's most recognized street. Located next to some of Trinity Royal's Uptown's MOST successful and enduring shops and restaurants. 1176 sq. ft with bright west facing clear glass storefront windows, 2 washrooms, a back storage room and back receiving door. This is an almost perfect retail/office/food service space. 16 feet wide with high ceilings and modern lighting. Monthly rent of $2450. Includes heat, you pay the electricity bill, all other building operating expenses like property taxes are the landlords responsibility. This is a very high traffic block. Theres still time to be open for the successful Uptown holiday, summer, and cruise ship seasons. Landlord expects a 5 year lease. Call today for your personal tour. (id:27476)

Property Highlights

MLS® Number
NB118906
Type
Retail
Ownership Type
Freehold

Building

Square Footage
1176 sqft
Fireplace Present
No
Basement Type
Basement Features
Building Heating Type
Baseboard heaters, Hot Water
Heating Fuel
Building Cooling Type

Location